← Back to Hull City Council

Status

Application Permitted Commercial
Received
06 Aug 2025
New dwellings
0

Full Proposal

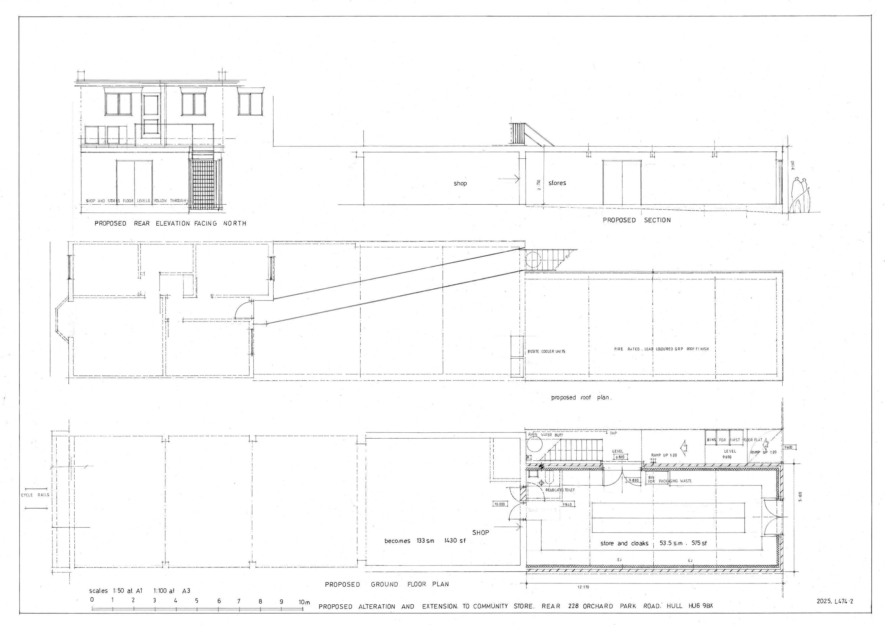
1. Alterations to extend retail area into store 2. Erection of single storey extension to rear to provide new store (12.17m long x 5.1m wide x max 3.16m high) 3. Relocate cooler units to flat roof of existing single storey rear offshoot.

Documents

228 ORCHARD PARK ROAD
Application Form
Not archived · Council Link
APPLICATION CHECKLIST
Officer Notes
Not archived · Council Link
COVERING EMAIL 25 09 2025 11.42
Correspondence
Not archived · Council Link
DECISION NOTICE
Decision
Not archived · Council Link
ELEVATIONS
Drawing
Not archived · Council Link
EMAIL
Correspondence
Not archived · Council Link
EMAIL 11 09 2025 14.56
Correspondence
Not archived · Council Link
EMAIL 13 10 2025 16.31
Correspondence
Not archived · Council Link
EMAILS TO AGENT 20/08/2025
Correspondence
Not archived · Council Link
ENVIRONMENTAL PROTECTION COMMENTS
Correspondence
Not archived · Council Link
EXISTING AND PROPOSED ELEVATIONS FOR EAST AND WEST
Drawing
Not archived · Council Link
EXISTING AND PROPOSED ELEVATIONS FOR EAST AND WEST
Drawing
Not archived · Council Link
EXISTING BLOCK PLAN
Drawing
Not archived · Council Link
EXISTING GROUND FLOOR AND FIRST FLOOR AND REAR ELEVATION FACING NORTH AND SECTIO
Drawing
Not archived · Council Link
FEE LETTER
Correspondence
Not archived · Council Link
FLOOD RISK ASSESSMENT
Report
Not archived · Council Link
HIGHWAYS COMMENTS
Correspondence
Not archived · Council Link
INVALID LETTER
BackGround Papers
Not archived · Council Link
INVALID LETTER
BackGround Papers
Not archived · Council Link
INVALID LETTER
BackGround Papers
Not archived · Council Link
INVALID LETTER
BackGround Papers
Not archived · Council Link
INVALID LETTER
BackGround Papers
Not archived · Council Link
NF200DGM SCROLL CONDENSING UNIT
Other
Not archived · Council Link
OFFICERS DELEGATED REPORT
Report
Not archived · Council Link
OS PLAN
OS Extract
Not archived · Council Link
PROPOSED BLOCK PLANS
Drawing
Not archived · Council Link
PROPOSED GROUND FLOOR PLAN, ROOF PLAN, REAR ELEVATION FACING NORTH AND SECTION
Drawing
Not archived · Council Link
PROPOSED GROUND FLOOR PLAN, ROOF PLAN, REAR ELEVATION FACING NORTH AND SECTION
Drawing
Not archived · Council Link
PROPOSED GROUND FLOOR PLAN, ROOF PLAN, REAR ELEVATION FACING NORTH AND SECTION
Drawing
Not archived · Council Link
Drawing
Archived · Council Link
RETAIL DATA POLICY RESPONSE
Correspondence
Not archived · Council Link
Drawing
Archived · Council Link

Take Action

Make your voice heard. Authorities need to hear from people who support new homes.

✉️ Write Email in Support View on Council Portal