← Back to Hull City Council

Status

Pending Consideration New housing
Received
22 Sep 2025
New dwellings
1

Full Proposal

Erection of 1 x detached dwelling house (Class C3)

Documents

A SUMMARY OF THE ATTACHMENTS IN THE PROPOSAL
BackGround Papers
Not archived · Council Link
APPLICATION FORM - WITHOUT PERSONAL DATA
Application Form
Not archived · Council Link
BLOCK PLAN OF THE SITE
Drawing
Not archived · Council Link
BUILDING FOR A HEALTHY LIFE STATEMENT
Other
Not archived · Council Link
BUILDING FOR A HEALTHY LIFE STATEMENT
Other
Not archived · Council Link
CHECKSHEET
Other
Not archived · Council Link
CIL INFORMATION
Other
Not archived · Council Link
DRAINAGE STRATEGY
BackGround Papers
Not archived · Council Link
DRAINAGE STRATEGY
BackGround Papers
Not archived · Council Link
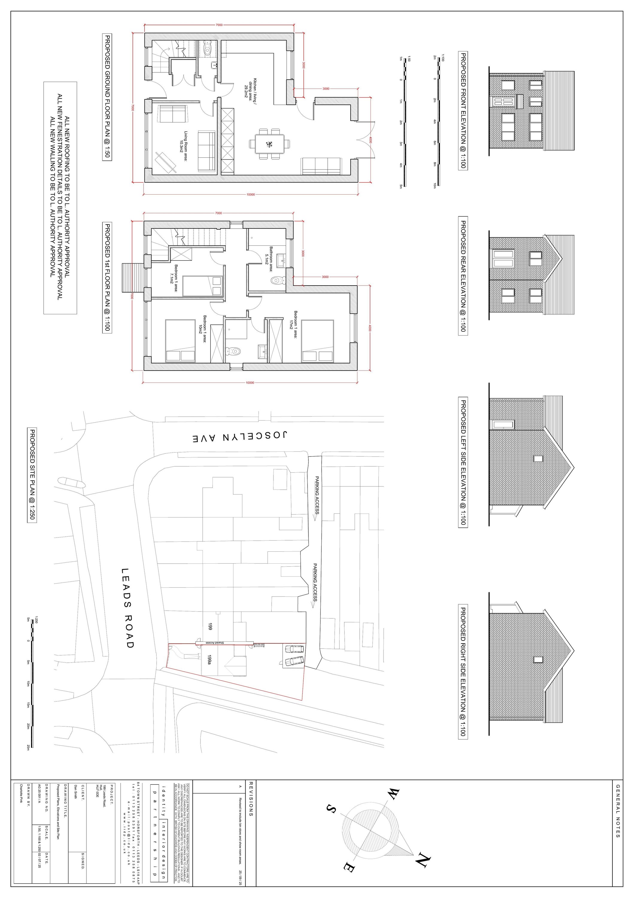
ELEVATION (FRONT) - PROPOSED
Other
Not archived · Council Link
ELEVATION (REAR) - PROPOSED
Other
Not archived · Council Link
ELEVATION (SIDE) - PROPOSED
Other
Not archived · Council Link
EMAIL 25 09 2025
Other
Not archived · Council Link
EMAIL THREAD FROM 25 09 2025 10.30
Other
Not archived · Council Link
ENVIRONMENTAL HEALTH COMMENTS
Correspondence
Not archived · Council Link
EXISTING AND PROPOSED SITE BLOCK PLAN.
Drawing
Not archived · Council Link
EXISTING STREET SCENE CONTEXT PLAN
Photo
Not archived · Council Link
FLOOD RISK ASSESSMENT
BackGround Papers
Not archived · Council Link
FLOOD RISK ASSESSMENT
BackGround Papers
Not archived · Council Link
FLOOR PLAN
Other
Not archived · Council Link
FORM 7 SELF BUILD EXEMPTION CLAIM
Other
Not archived · Council Link
HIGHWAYS DC COMMENTS
Correspondence
Not archived · Council Link
LAYOUT PLAN
Drawing
Not archived · Council Link
LAYOUT PLAN - PROPOSED
Other
Not archived · Council Link
OPEN SPACE REQUIREMENTS
Correspondence
Not archived · Council Link
PHOTO
Photo
Not archived · Council Link
PHOTO
Photo
Not archived · Council Link
PHOTO WINDOW
Photo
Not archived · Council Link
PHOTO WINDOW BATHROOM
Photo
Not archived · Council Link
PHOTO WINDOW BEDROOM
Photo
Not archived · Council Link
PHOTO WINDOW HALLWAY
Photo
Not archived · Council Link
PLAN
Drawing
Not archived · Council Link
PUBLIC COMMENT
Public Comment
Not archived · Council Link
PUBLIC COMMENT
Correspondence
Not archived · Council Link
PUBLIC COMMENT
Public Comment
Not archived · Council Link
RECYCLING OFFICER COMMENTS
Correspondence
Not archived · Council Link
SECTION AND FLOOD INFO
Drawing
Not archived · Council Link
STREET SCENE/CONTEXT PLAN - EXISTING
Other
Not archived · Council Link
STREET SCENE/CONTEXT PLAN - PROPOSED
Other
Not archived · Council Link
THE LOCATION PLAN
OS Extract
Not archived · Council Link
URBAN DESIGN COMMENTS
Correspondence
Not archived · Council Link

Take Action

Make your voice heard. Authorities need to hear from people who support new homes.

✉️ Write Email in Support View on Council Portal