← Back to Hull City Council

Status

Unknown House extension
Received
24 Oct 2025
New dwellings
0

Full Proposal

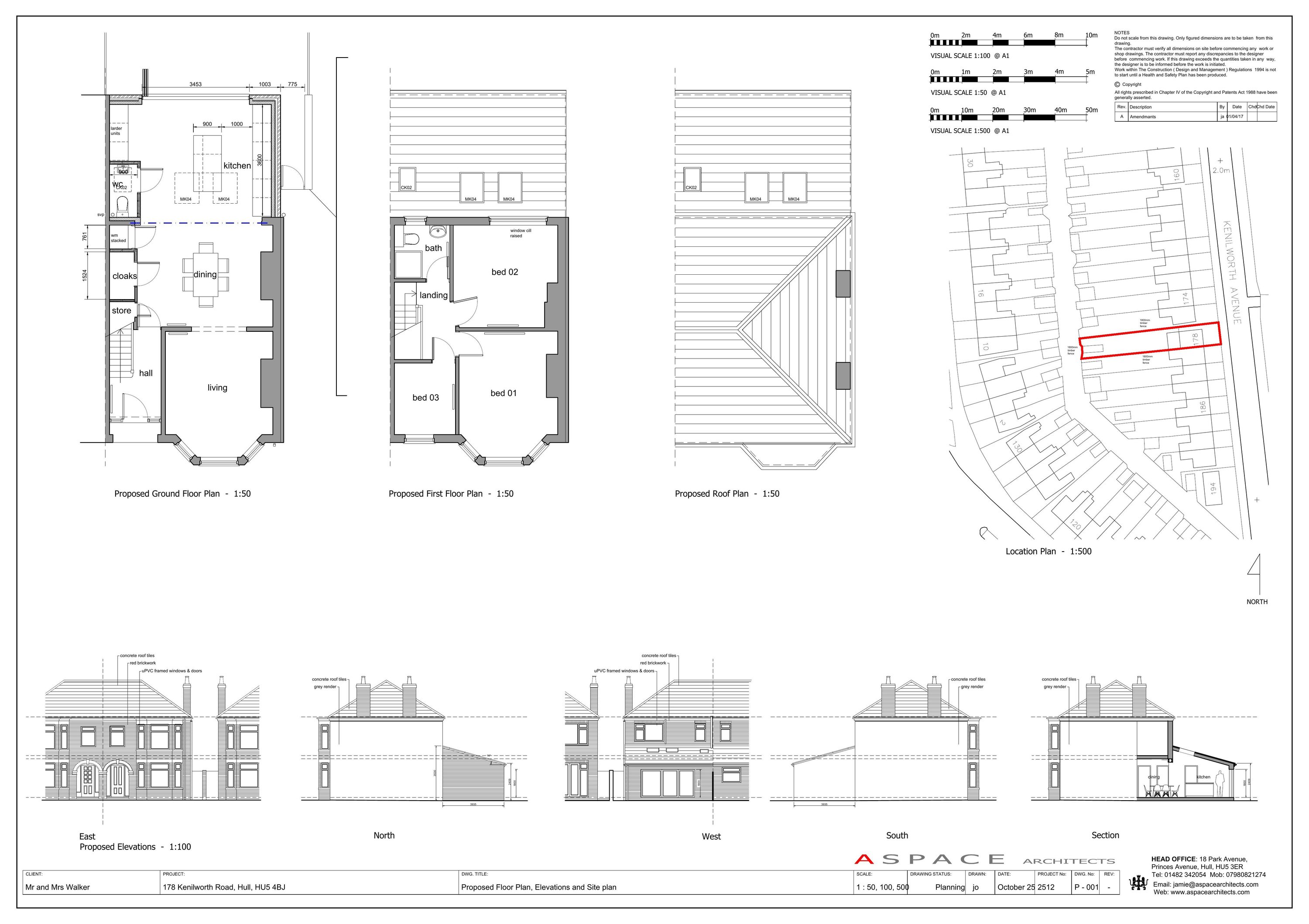
Erection of: A single storey rear extension (3.9m long x 5.5m wide x 2.4m eaves x 3.5m height) (Application to determine whether prior approval for development within the curtilage of a dwellinghouse is required for a rear extension)

Documents

178 KENILWORTH AVENUE
Application Form
Not archived · Council Link
DECISION NOTICE
Decision
Not archived · Council Link
HOUSEHOLDER PRIOR APPROVAL - CHECKLIST
Officer Notes
Not archived · Council Link
OFFICERS DELEGATED REPORT
Report
Not archived · Council Link

Take Action

Make your voice heard. Authorities need to hear from people who support new homes.

✉️ Write Email in Support View on Council Portal