← Back to Hull City Council

Status

Pending Consideration Change of use
Received
24 Nov 2025
New dwellings
1

Full Proposal

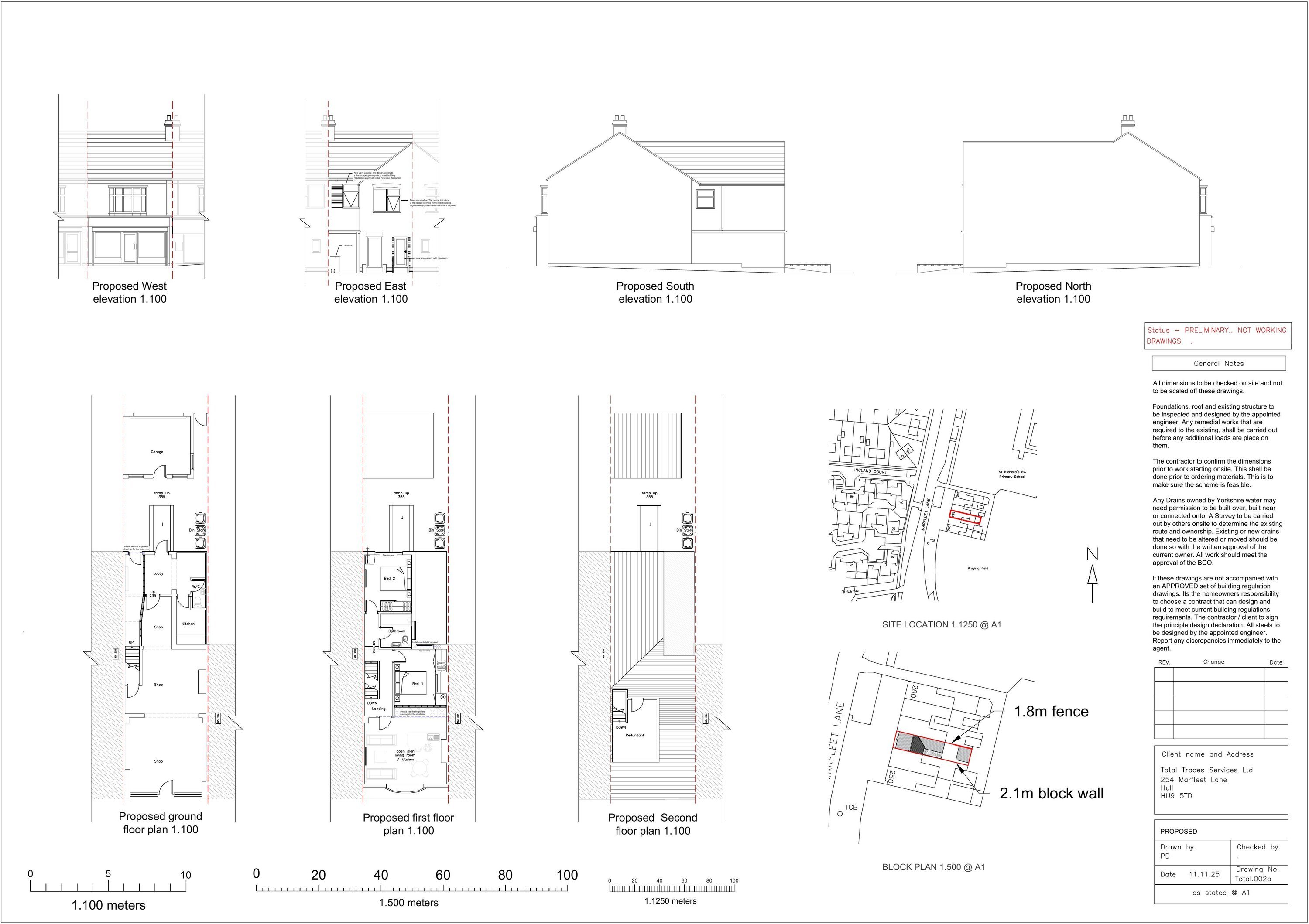
Change of use from shop to shop with a 2 bedroom flat above.

Documents

254 MARFLEET LANE
Decision
Not archived · Council Link
FEE CALCULATION AND ATTACHMENT SUMMARY
BackGround Papers
Not archived · Council Link
FEE CALCULATION AND ATTACHMENT SUMMARY
BackGround Papers
Not archived · Council Link
REVISED PLAN
Drawing
Not archived · Council Link
REVISED PLAN
Drawing
Not archived · Council Link

Take Action

Make your voice heard. Authorities need to hear from people who support new homes.

✉️ Write Email in Support View on Council Portal