← Back to Huntingdonshire District Council

Status

Withdrawn New housing
Received
17 Jan 2025
New dwellings
5

Summary

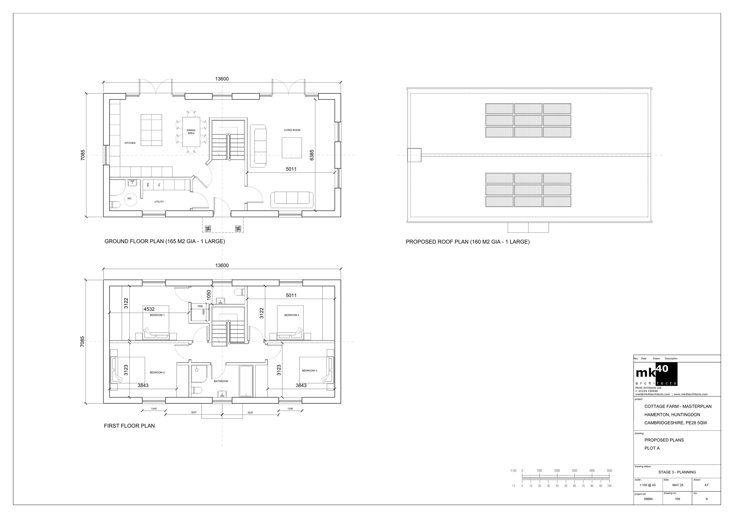
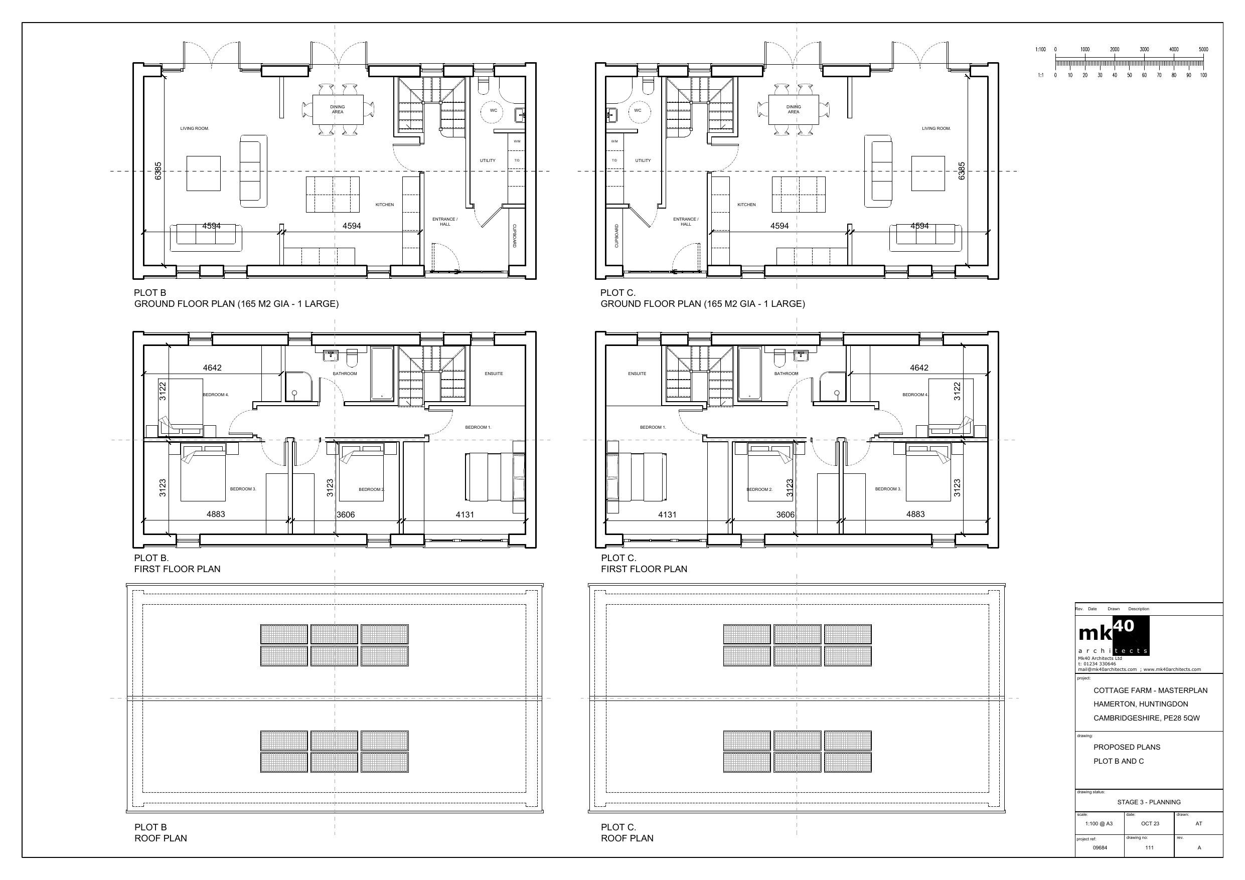
Demolish agricultural barn and silos and erect five dwellings with parking, gardens and landscaping.

Full Proposal

Demolition of existing agricultural barn and associated concrete silo bases and to erection 5 residential dwellings with associated parking, private gardens and soft and hard landscaping.

Documents

Application Form Redacted
Application Form Public Access
Not archived · Council Link
Biodiversity Checklist
General Document Public Access
Not archived · Council Link
Biodiversity Net Gain
General Document Public Access
Not archived · Council Link
CIL Form 1
CIL Additional Questions Form 1
Not archived · Council Link
Consultee Comment - Cambridgeshire Fire and Rescue
Consultee Comment
Not archived · Council Link
Consultee Comment - CC Archaeology
Consultee Comment
Not archived · Council Link
Consultee Comment - CC Highways
Consultee Comment
Not archived · Council Link
Consultee Comment - CCC Highways
Consultee Comment
Not archived · Council Link
Consultee Comment - Environmental Health
Consultee Comment
Not archived · Council Link
Consultee Comments - Arboricultural Officer
Consultee Comment
Not archived · Council Link
Consultee Comments - Arboricultural Officer
Consultee Comment
Not archived · Council Link
Consultee Comments - Definitive Map Officer
Consultee Comment
Not archived · Council Link
Consultee Comments - Rights of Way Officer
Consultee Comment
Not archived · Council Link
Consultee Response - CC Highways
Consultee Comment
Not archived · Council Link
Consultee Response - CFS/Hydrants (Redacted)
Consultee Comment
Not archived · Council Link
Consultee Response - Environmental Health
Consultee Comment
Not archived · Council Link
Consultee Response - Environmental Health
Consultee Comment
Not archived · Council Link
Consultee Response - Trees
Consultee Comment
Not archived · Council Link
DECISION
Decision Notice Public Access
Not archived · Council Link
Design And Access Statement
General Document Public Access
Not archived · Council Link
Existing Arrangement
Plan Public Access
Not archived · Council Link
Existing Elevations
Plan Public Access
Not archived · Council Link
Existing Elevations
Plan Public Access
Not archived · Council Link
Existing Plans
Plan Public Access
Not archived · Council Link
Existing Plans
Plan Public Access
Not archived · Council Link
Highways Technical Note
General Document Public Access
Not archived · Council Link
Keepers Cottage
Neighbour Comment
Not archived · Council Link
Keepers Cottage
Neighbour Comment
Not archived · Council Link
Location Plan
Plan Public Access
Not archived · Council Link
Location Plan
Plan Public Access
Not archived · Council Link
Long & Short Stay (Plot A) Bike - Store
Plan Public Access
Not archived · Council Link
Long And Short Stay Bike Storage
Plan Public Access
Not archived · Council Link
Long And Short Stay Bike Store
Plan Public Access
Not archived · Council Link
Policy Guidance Checklist
General Document Public Access
Not archived · Council Link
Preliminary Ecological Assessment
General Document Public Access
Not archived · Council Link
Proposed Arrangement
Plan Public Access
Not archived · Council Link
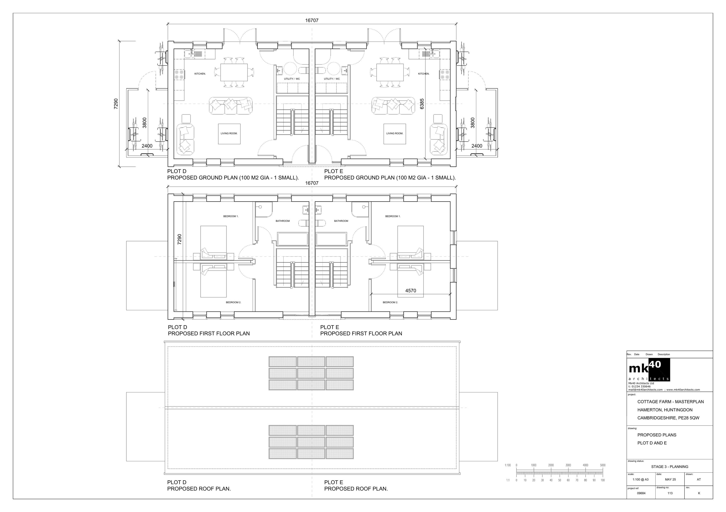
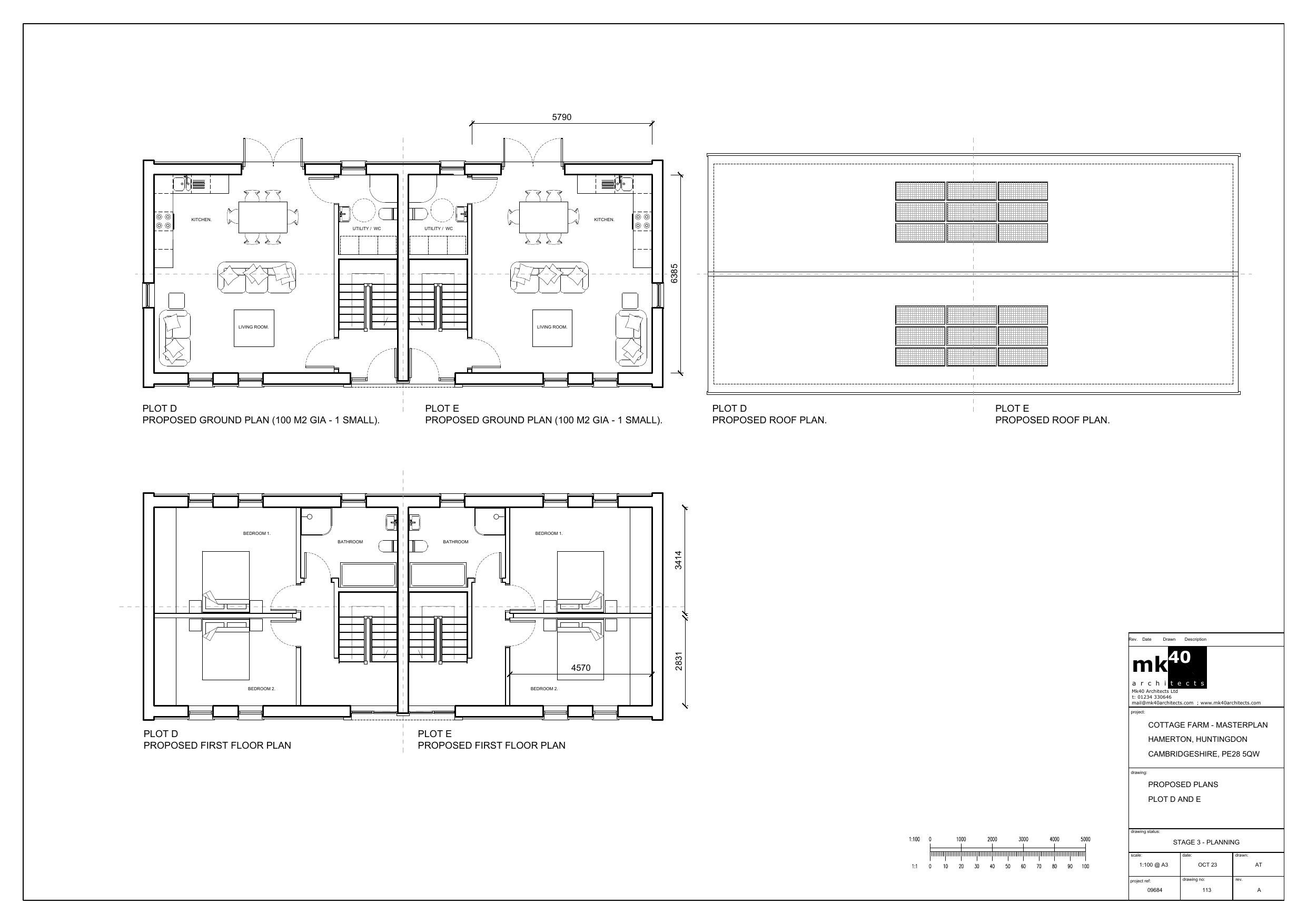
Proposed Elevations Plots D And E
Plan Public Access
Not archived · Council Link
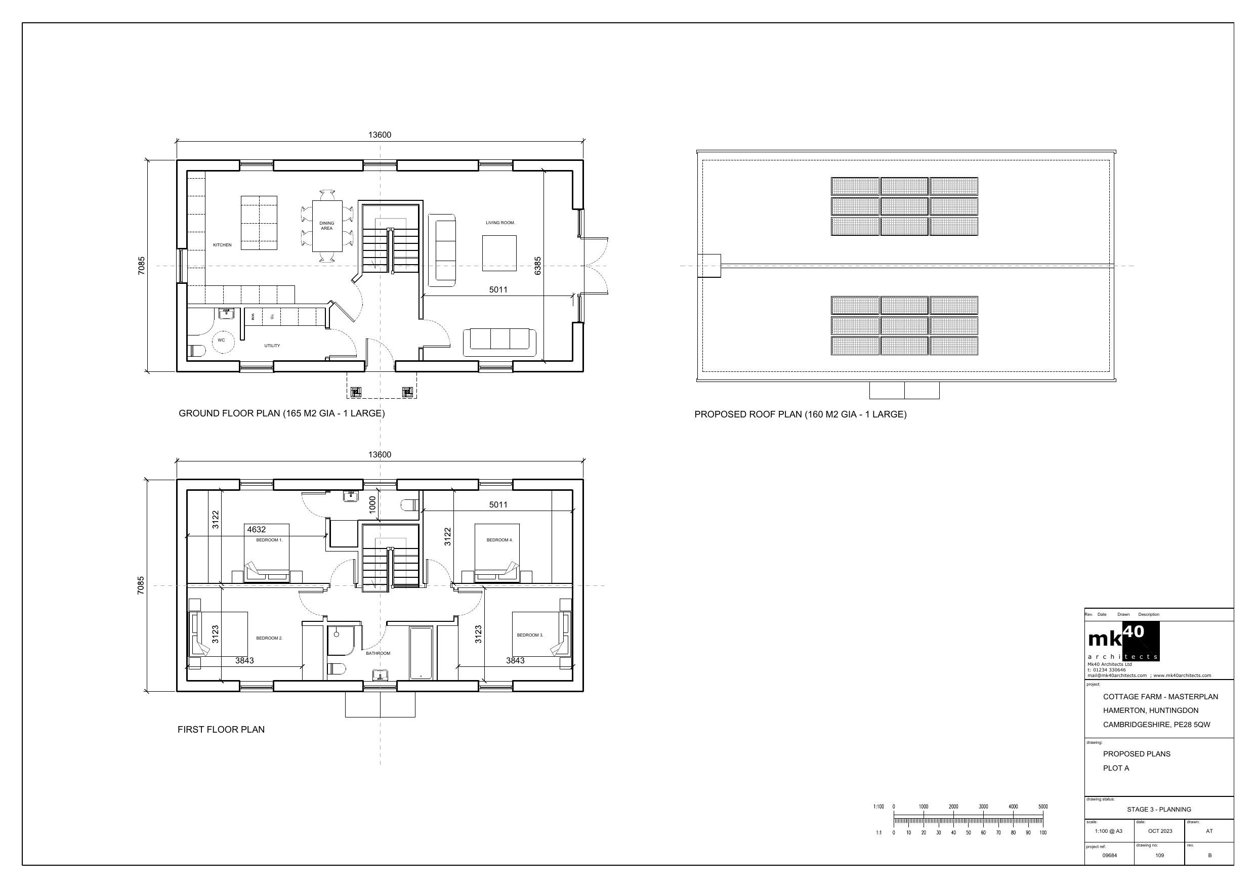
Proposed Elevations Plot A
Plan Public Access
Not archived · Council Link
Proposed Elevations Plot A
Plan Public Access
Not archived · Council Link
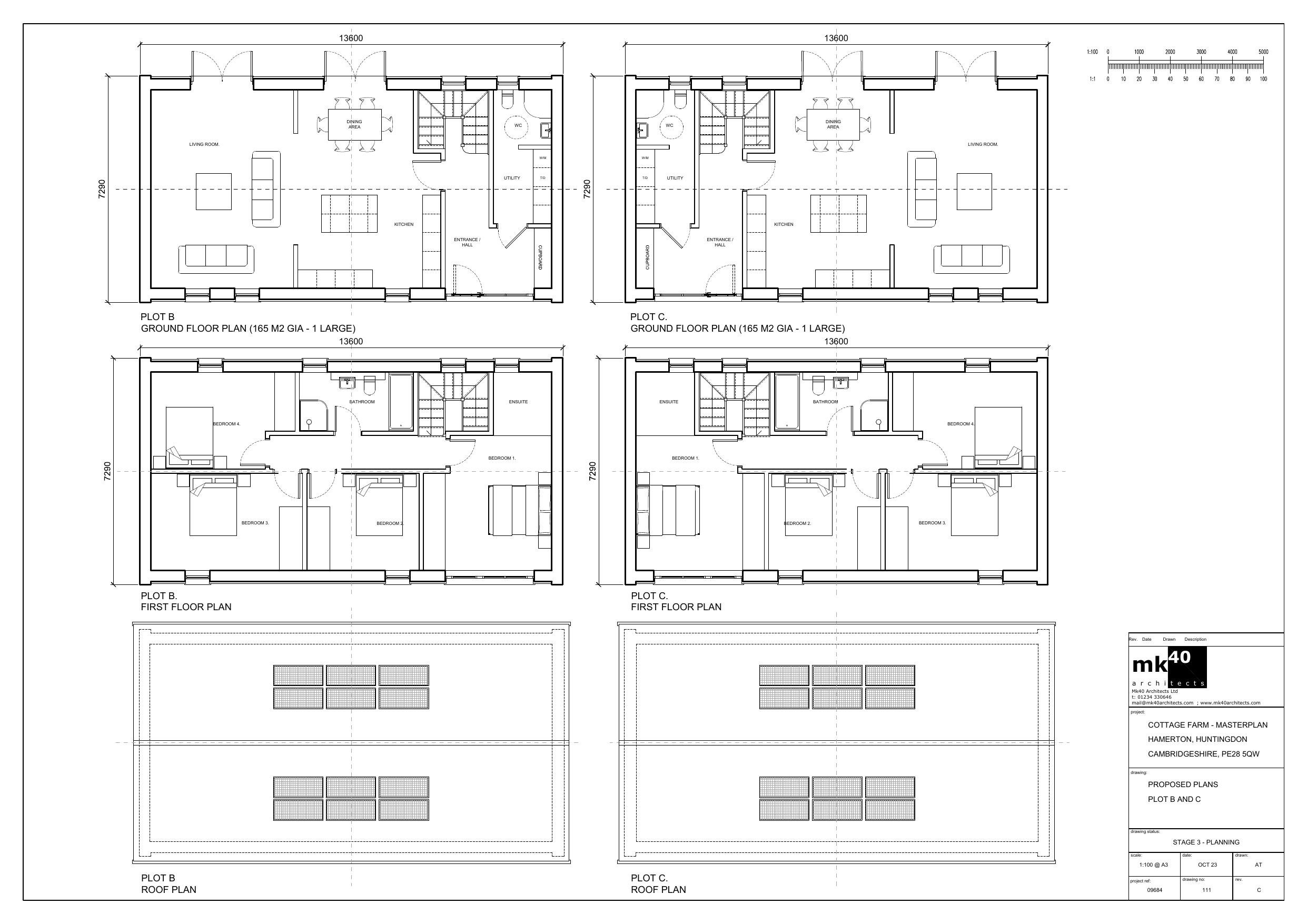
Proposed Elevations Plot B and C
Plan Public Access
Not archived · Council Link
Proposed Elevations Plot D and E
Plan Public Access
Not archived · Council Link
Proposed Elevations Plots B And C
Plan Public Access
Not archived · Council Link
Plan Public Access
Archived · Council Link
Plan Public Access
Archived · Council Link
Plan Public Access
Archived · Council Link
Plan Public Access
Archived · Council Link
Plan Public Access
Archived · Council Link
Plan Public Access
Archived · Council Link
REDACTED 09684 Issue Sheet
General Document Public Access
Not archived · Council Link
REDACTED Arboricultural Assessment
General Document Public Access
Not archived · Council Link
REDACTED Archaeological Desk Based Assessment
General Document Public Access
Not archived · Council Link
REDACTED BNG Feasibility Standpoint
General Document Public Access
Not archived · Council Link
REDACTED BNG Feasibility Statement
General Document Public Access
Not archived · Council Link
REDACTED Covering letter
General Document Public Access
Not archived · Council Link
REDACTED Planning Statement
General Document Public Access
Not archived · Council Link
REDACTED RDM Environmental Geotechnical
General Document Public Access
Not archived · Council Link
Revised Elevations Plot A
Plan Public Access
Not archived · Council Link
Revised Proposed Elevations Plot B And C
Plan Public Access
Not archived · Council Link
Revised Proposed Elevations Plot D And E
Plan Public Access
Not archived · Council Link
Plan Public Access
Archived · Council Link
Plan Public Access
Archived · Council Link
Plan Public Access
Archived · Council Link
Plan Public Access
Archived · Council Link
Stage 1 Barn Owl Habitat Survey
General Document Public Access
Not archived · Council Link
Swept Path Analysis Proposed Arrangement
Plan Public Access
Not archived · Council Link
Swept Path Analysis Tractor And Trailer Proposed Arrangement
Plan Public Access
Not archived · Council Link
Tree Constraints Plan
Plan Public Access
Not archived · Council Link
Tree Protection Plan
Plan Public Access
Not archived · Council Link
Unilateral Undertaking
General Document Public Access
Not archived · Council Link
Validation Checklist And Guidance
General Document Public Access
Not archived · Council Link

Take Action

Make your voice heard. Authorities need to hear from people who support new homes.

✉️ Write Email in Support View on Council Portal