← Back to Huntingdonshire District Council

Status

Approved Change of use
Received
05 Feb 2025
New dwellings
1

Summary

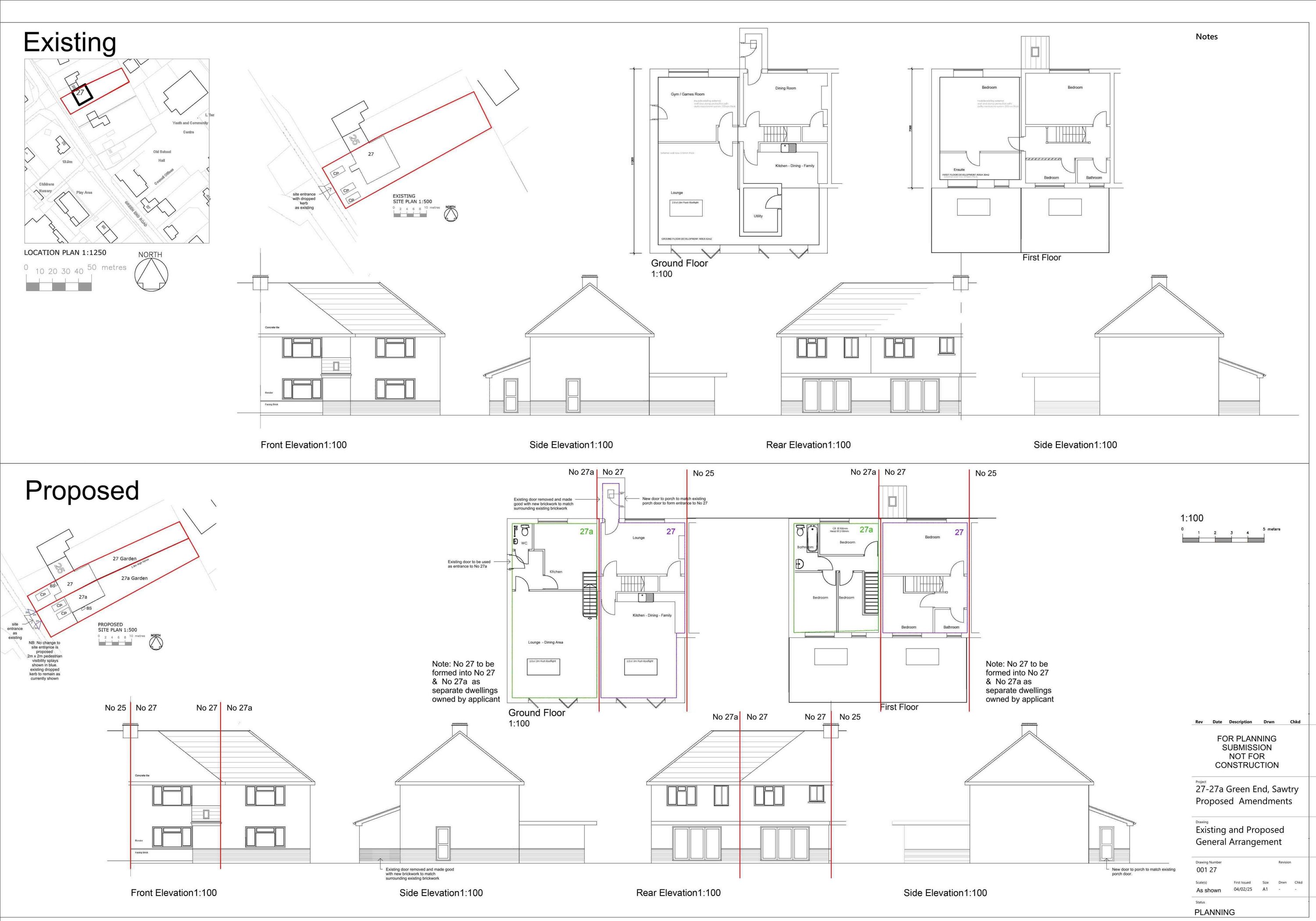
Convert existing dwelling into two separate residential units.

Full Proposal

Conversion of dwelling into two separate dwellings.

Documents

32 Green End Road
Neighbour Comment
Not archived · Council Link
AMENDED Location, Block, Floor and Elevation Plans
Plan Public Access
Not archived · Council Link
ApplicationFormRedacted
Application Form Public Access
Not archived · Council Link
Biodiversity Checklist
General Document Public Access
Not archived · Council Link
Consultee Comment - CC Highways
Consultee Comment
Not archived · Council Link
Consultee Comment - CC Highways
Consultee Comment
Not archived · Council Link
Consultee Comment - Highways
Consultee Comment
Not archived · Council Link
DECISION
Decision Notice Public Access
Not archived · Council Link
Heritage Statement
General Document Public Access
Not archived · Council Link
Officer Report
Officer Report
Not archived · Council Link
Parish Comment
Consultee Comment
Not archived · Council Link
Plan Public Access
Archived · Council Link
Unilateral Undertaking
General Document Public Access
Not archived · Council Link

Take Action

Make your voice heard. Authorities need to hear from people who support new homes.

✉️ Write Email in Support View on Council Portal