← Back to Huntingdonshire District Council

Status

Approved Change of use
Received
05 Mar 2025
New dwellings
1

Summary

Convert church parish hall into one residential dwelling with annexe.

Full Proposal

Conversion of existing church parish hall into a single residential dwellinghouse with annexe

Documents

1 Church Terrace
Neighbour Comment
Not archived · Council Link
14 River Place
Neighbour Comment
Not archived · Council Link
17 The Mallards,St Ives
Neighbour Comment
Not archived · Council Link
Application Form Redacted
Application Form Public Access
Not archived · Council Link
Biodiversity Checklist
General Document Public Access
Not archived · Council Link
Biodiversity Net Gain (Metric)
General Document Public Access
Not archived · Council Link
Biodiversity Net Gain Baseline Map
General Document Public Access
Not archived · Council Link
Biodiversity Net Gain Plan
General Document Public Access
Not archived · Council Link
CIL - Liability Notice
CIL Liability Notice Public Access
Not archived · Council Link
Consultee Comment - Cadent Gas
Consultee Comment
Not archived · Council Link
Consultee Comment - CC Highways
Consultee Comment
Not archived · Council Link
Consultee Comment - CC Highways
Consultee Comment
Not archived · Council Link
Consultee Comment - Emergency Planning
Consultee Comment
Not archived · Council Link
Consultee Comment - Emergency Planning
Consultee Comment
Not archived · Council Link
Consultee Comment - Environment Agency
Consultee Comment
Not archived · Council Link
Consultee Comment - Historic England
Consultee Comment
Not archived · Council Link
Consultee comments - HDC Conservation
Consultee Comment
Not archived · Council Link
DECISION
Decision Notice Public Access
Not archived · Council Link
Design and Access Statement
General Document Public Access
Not archived · Council Link
Existing And Proposed north Elevations (Towards Garden/Courtyard)
Plan Public Access
Not archived · Council Link
Existing and Proposed south Elevations (showing external southern elevation)
Plan Public Access
Not archived · Council Link
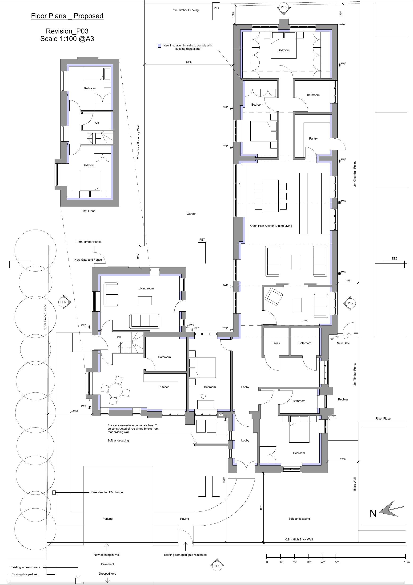
Existing Floor Plans
Plan Public Access
Not archived · Council Link
Existing Ground Floor Plan
Plan Public Access
Not archived · Council Link
Plan Public Access
Archived · Council Link
Flood Risk Assessment
General Document Public Access
Not archived · Council Link
Heritage Statement
General Document Public Access
Not archived · Council Link
Location Plan
Plan Public Access
Not archived · Council Link
Parish Comment
Consultee Comment
Not archived · Council Link
Photos of Site
Photograph Public Access
Not archived · Council Link
Policy Checklist
General Document Public Access
Not archived · Council Link
Preliminary Ecological Appraisal
General Document Public Access
Not archived · Council Link
Preliminary Ecological Appraisal Validation Letter
General Document Public Access
Not archived · Council Link
Response to Emergency Planning comments
General Document Public Access
Not archived · Council Link
Revised Emergency Planning Comments
Consultee Comment
Not archived · Council Link
Revised existing and proposed east (rear) elevations
Plan Public Access
Not archived · Council Link
Revised existing and proposed north (schoolhouse) and east (rear) elevations
Plan Public Access
Not archived · Council Link
Revised existing and proposed south (side) elevation showing garden entrance
Plan Public Access
Not archived · Council Link
Revised existing and proposed west (front) elevations
Plan Public Access
Not archived · Council Link
SUPERSEDED Existing And Proposed Elevations South - (Towards Garden/Courtyard)
Plan Public Access
Not archived · Council Link
SUPERSEDED Existing And Proposed Rear West Elevations
Plan Public Access
Not archived · Council Link
SUPERSEDED Existing And Proposed South Side and West Rear Elevations
Plan Public Access
Not archived · Council Link
SUPERSEDED Existing And Proposed West Elevations
Plan Public Access
Not archived · Council Link
SUPERSEDED Proposed Floor Plan
Plan Public Access
Not archived · Council Link
Plan Public Access
Archived · Council Link
Validation Checklist
General Document Public Access
Not archived · Council Link
Validation Checklist And Guidance
General Document Public Access
Not archived · Council Link

Take Action

Make your voice heard. Authorities need to hear from people who support new homes.

✉️ Write Email in Support View on Council Portal