← Back to Huntingdonshire District Council

Status

Disposed Change of use
Received
02 Apr 2025
New dwellings
0

Summary

Alter elevations to combine units 1 and 6 into a single dwelling, reducing unit count by one.

Full Proposal

Changes to elevations to facilitate conversion of units 1 & 6 into a single dwelling

Documents

Application Form Redacted
Application Form Public Access
Not archived · Council Link
Biodiversity Checklist
General Document Public Access
Not archived · Council Link
Consultee Comment - CC Highways
Consultee Comment
Not archived · Council Link
Consultee Comment - Environmental Health
Consultee Comment
Not archived · Council Link
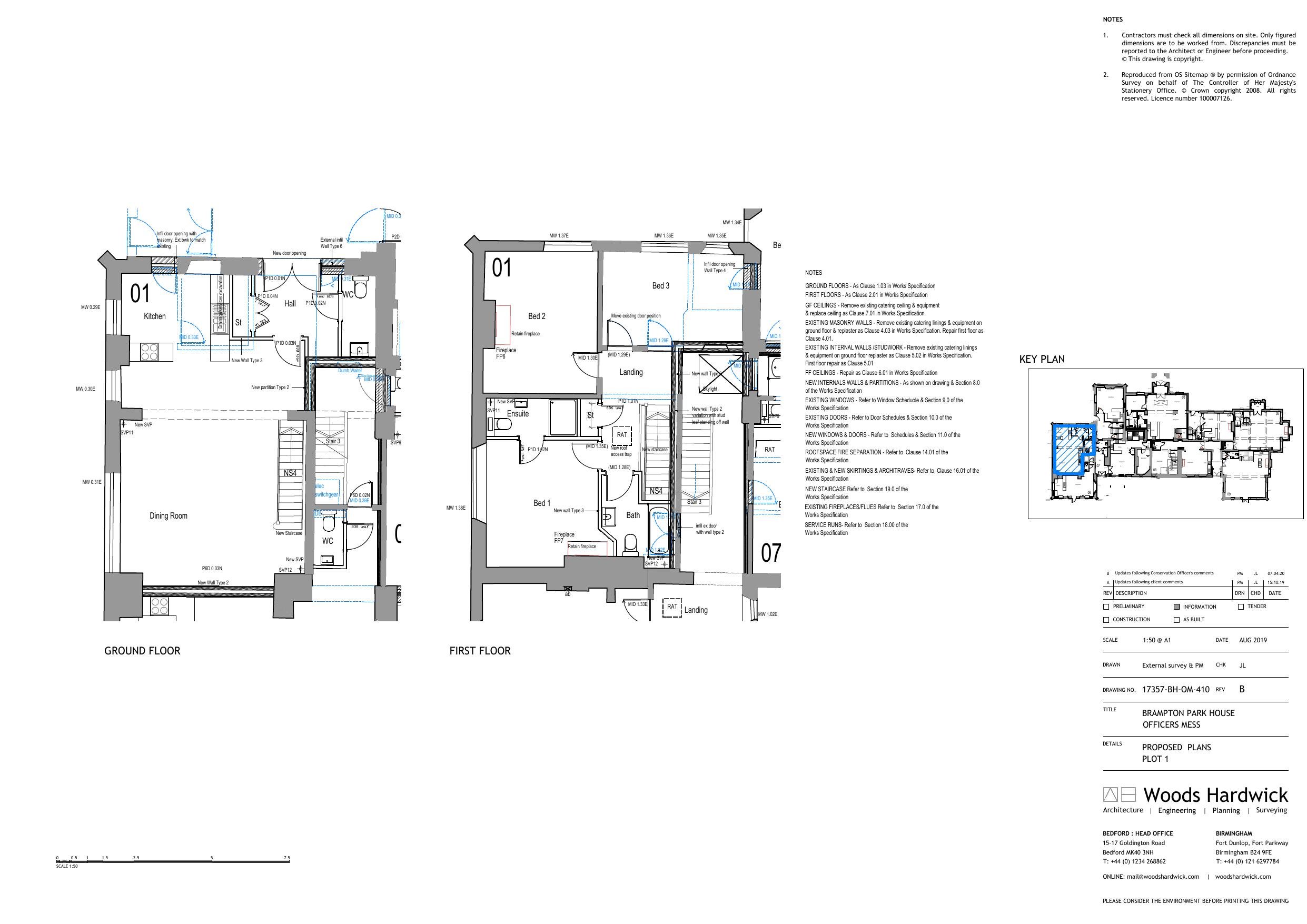
Elevation Setting Out (Plot 1 & 6)
Plan Public Access
Not archived · Council Link
Existing First Floor Plan
Plan Public Access
Not archived · Council Link
Existing Ground Floor Plan
Plan Public Access
Not archived · Council Link
FDOLET
Finally Disposed Of Letter
Not archived · Council Link
First Floor (Internal Survey)
Plan Public Access
Not archived · Council Link
General Arrangement Elevations (Plot 1 & 6)
Plan Public Access
Not archived · Council Link
General Arrangement Plan (Plot 1 & 6)
Plan Public Access
Not archived · Council Link
General Arrangement Plans (Former Plot 1 and 6)
Plan Public Access
Not archived · Council Link
Ground Floor (Internal Survey)
Plan Public Access
Not archived · Council Link
Heritage Statement
General Document Public Access
Not archived · Council Link
Location Plan
Plan Public Access
Not archived · Council Link
New Skirting/Architrave/Dado Rail/Picture Rail/Cornice Types
Plan Public Access
Not archived · Council Link
Parish Comment
Consultee Comment
Not archived · Council Link
Planning Layout
Plan Public Access
Not archived · Council Link
Planning, Design and Access Statement
General Document Public Access
Not archived · Council Link
Plot 1 and 6 Entrance Door Detail
Plan Public Access
Not archived · Council Link
Policy Checklist
General Document Public Access
Not archived · Council Link
Proposed Elevations (North and West)
Plan Public Access
Not archived · Council Link
Plan Public Access
Archived · Council Link
Plan Public Access
Archived · Council Link
Proposed Roof Plan
Plan Public Access
Not archived · Council Link
SUPERSEDED Planning Layout
Internal document
Not archived · Council Link

Take Action

Make your voice heard. Authorities need to hear from people who support new homes.

✉️ Write Email in Support View on Council Portal