← Back to Huntingdonshire District Council

Status

In progress New housing
Received
14 Jul 2025
New dwellings
43

Summary

Provision of 43 affordable dwellings with associated infrastructure and open space.

Full Proposal

43 affordable dwellings of mixed size and tenure along with associated infrastructure and open space

Documents

117 Station Road
Neighbour Comment
Not archived · Council Link
127 Station Road
Neighbour Comment
Not archived · Council Link
127 Station Road
Neighbour Comment
Not archived · Council Link
41 Popes Lane
Neighbour Comment
Not archived · Council Link
55 Station Road
Neighbour Comment
Not archived · Council Link
8 Padgetts Close
Neighbour Comment
Not archived · Council Link
8 Padgetts Close
Neighbour Comment
Not archived · Council Link
8 Padgetts Close Warboys
Neighbour Comment
Not archived · Council Link
8 Padgetts Close, Warboys 2
Neighbour Comment
Not archived · Council Link
86 Station Road
Neighbour Comment
Not archived · Council Link
86 Station Road
Neighbour Comment
Not archived · Council Link
Application Form Redacted
Application Form Public Access
Not archived · Council Link
Arboricultural Impact Assessment
Plan Public Access
Not archived · Council Link
Arboricultural Method Statement
General Document Public Access
Not archived · Council Link
Arboricultural Survey
General Document Public Access
Not archived · Council Link
AVRs
General Document Public Access
Not archived · Council Link
Biodiversity Checklist
General Document Public Access
Not archived · Council Link
Biodiversity Net Gain Assessment
General Document Public Access
Not archived · Council Link
BNG Metric Tool
General Document Public Access
Not archived · Council Link
Cllr Ross Martin
Consultee Comment
Not archived · Council Link
Consultee Comment - Active Lifestyles
Consultee Comment
Not archived · Council Link
Consultee Comment - Arboricultural Officer
Consultee Comment
Not archived · Council Link
Consultee Comment - Archaeology
Consultee Comment
Not archived · Council Link
Consultee Comment - Cambridgeshire Constabulary
Consultee Comment
Not archived · Council Link
Consultee Comment - CC Highways
Consultee Comment
Not archived · Council Link
Consultee Comment - CC Highways
Consultee Comment
Not archived · Council Link
Consultee Comment - Ecology
Consultee Comment
Not archived · Council Link
Consultee Comment - Landscape Officer
Consultee Comment
Not archived · Council Link
Consultee Comment - LLFA
Consultee Comment
Not archived · Council Link
Consultee Comment - Natural England
Consultee Comment
Not archived · Council Link
Consultee Comments - Anglian Water
Consultee Comment
Not archived · Council Link
Consultee Comments - Cambridge Fire & Rescue
Consultee Comment
Not archived · Council Link
Consultee Comments - Environmental Health
Consultee Comment
Not archived · Council Link
CRIME REDUCTION STATEMENT
General Document Public Access
Not archived · Council Link
CYCLE STORAGE
General Document Public Access
Not archived · Council Link
DESIGN AND ACCESS STATEMENT
General Document Public Access
Not archived · Council Link
Ecological Impact Assessment
General Document Public Access
Not archived · Council Link
Plan Public Access
Archived · Council Link
Flood Risk Assessment & Surface Water Drainage Strategy
General Document Public Access
Not archived · Council Link
Geometry and Indicative Outline Level Design Sheet
Plan Public Access
Not archived · Council Link
HARD LANDSCAPE PLAN
Plan Public Access
Not archived · Council Link
Hard Landscape Plan
Plan Public Access
Not archived · Council Link
Hard Landscape Plan
General Document Public Access
Not archived · Council Link
Highways Statement
General Document Public Access
Not archived · Council Link
HOUSE TYPE A: PLANS & ELEVATIONS
Plan Public Access
Not archived · Council Link
HOUSE TYPE B: PLANS & ELEVATIONS (TRADITIONAL)
Plan Public Access
Not archived · Council Link
HOUSE TYPE B: PLANS/ELEVATIONS (CONTEMPORARY)
Plan Public Access
Not archived · Council Link
HOUSE TYPE C: PLANS & ELEVATIONS (TRADITIONAL)
Plan Public Access
Not archived · Council Link
HOUSE TYPE C: PLANS/ELEVATIONS (CONTEMPORARY)
Plan Public Access
Not archived · Council Link
HOUSE TYPE E: PLANS & ELEVATIONS (Plot 20,21,29)
Plan Public Access
Not archived · Council Link
HOUSE TYPE E: PLANS & ELEVATIONS (PLOT 35)
Plan Public Access
Not archived · Council Link
HOUSE TYPE F: PLANS & ELEVATIONS
Plan Public Access
Not archived · Council Link
HOUSE TYPE G: PLANS & ELEVATIONS
Plan Public Access
Not archived · Council Link
HOUSE TYPE G: PLANS & ELEVATIONS (PLOT 13 & 34)
Plan Public Access
Not archived · Council Link
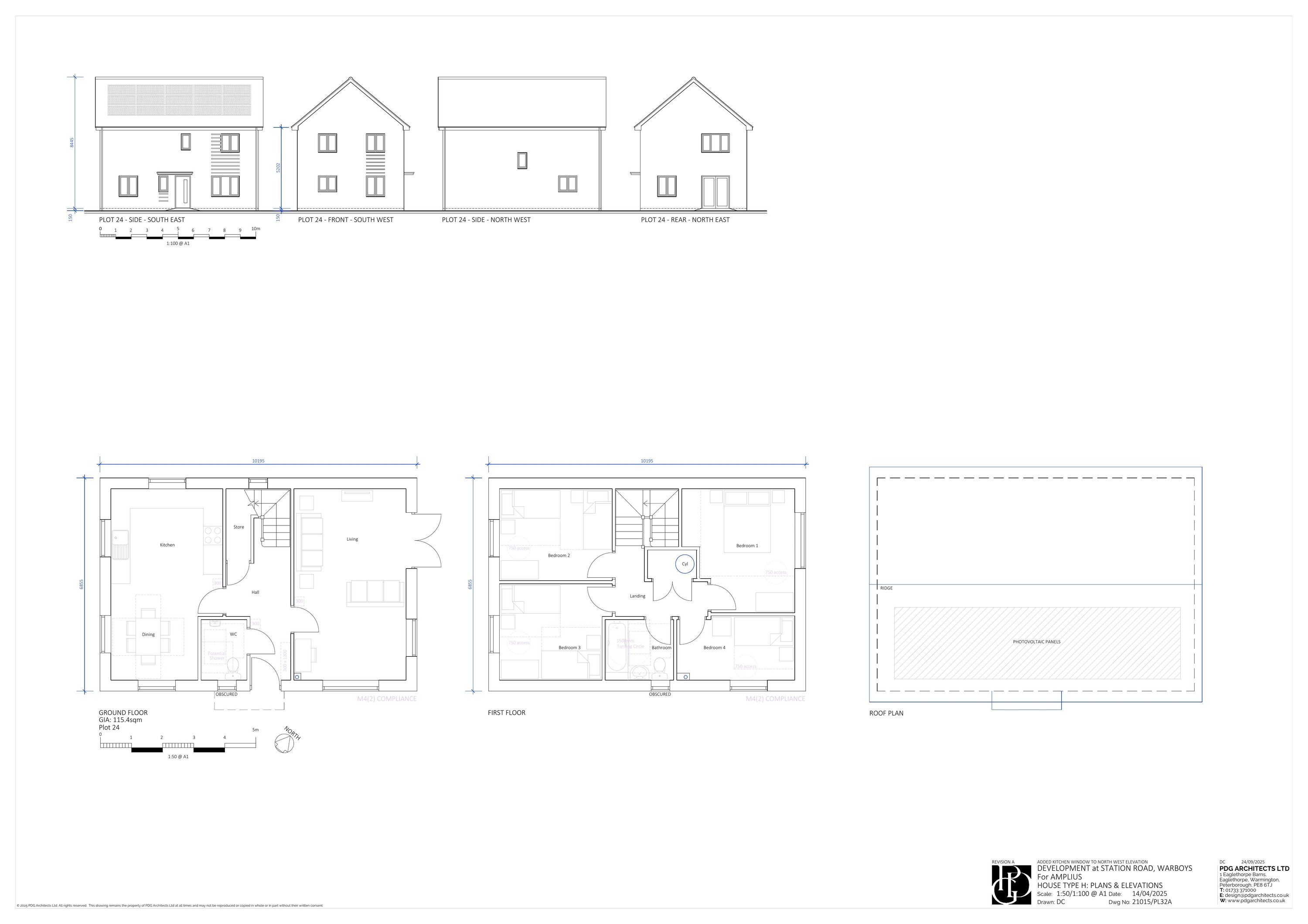
HOUSE TYPE H: PLANS & ELEVATIONS
Plan Public Access
Not archived · Council Link
HOUSE TYPE I: PLANS & ELEVATIONS
Plan Public Access
Not archived · Council Link
HOUSE TYPE J: PLANS & ELEVATIONS
Plan Public Access
Not archived · Council Link
HOUSE TYPE K: PLANS & ELEVATIONS
Plan Public Access
Not archived · Council Link
Landscape Palette Sheets
General Document Public Access
Not archived · Council Link
Landscape Visual Appraisal Addendum
General Document Public Access
Not archived · Council Link
MTC Response
General Document Public Access
Not archived · Council Link
Neighbour Letters received 11 Sep 2025
Neighbour Comment
Not archived · Council Link
Parish Comment
Consultee Comment
Not archived · Council Link
PDG Response to Consultee Comments
General Document Public Access
Not archived · Council Link
Petition of Objections - 1 of 4
Neighbour Comment
Not archived · Council Link
Phase I & II Geo-Environmental Assessment
General Document Public Access
Not archived · Council Link
PLANNING STATEMENT
General Document Public Access
Not archived · Council Link
Policy Guidance Checklist
General Document Public Access
Not archived · Council Link
Plan Public Access
Archived · Council Link
Proposed Ownership Responsibility
Plan Public Access
Not archived · Council Link
Proposed Site Layout
General Document Public Access
Not archived · Council Link
Proposed Streetscenes/Sections
Plan Public Access
Not archived · Council Link
Reptile Survey
General Document Public Access
Not archived · Council Link
Residential Noise Assessment
General Document Public Access
Not archived · Council Link
Schedule of Documents
General Document Public Access
Not archived · Council Link
Plan Public Access
Archived · Council Link
Soft Landscape Palette Sheet
General Document Public Access
Not archived · Council Link
SOFT LANDSCAPE PLAN
Plan Public Access
Not archived · Council Link
Soft Landscape Plan
Plan Public Access
Not archived · Council Link
Soft Landscape Plan
Plan Public Access
Not archived · Council Link
Supplementary Ground Investigation Report
General Document Public Access
Not archived · Council Link
SUSTAINABILITY STATEMENT
General Document Public Access
Not archived · Council Link
Tree Protection Plan
Plan Public Access
Not archived · Council Link
Validation Checklist
General Document Public Access
Not archived · Council Link
Warboys Parish Council correspondence
Comment for Public Access
Not archived · Council Link

Take Action

Make your voice heard. Authorities need to hear from people who support new homes.

✉️ Write Email in Support View on Council Portal