← Back to Huntingdonshire District Council

Status

In progress New housing
Received
16 Jul 2025
New dwellings
4

Summary

Erection of site manager's dwelling; retention of 14 touring pitches, toilet/shower block and three holiday lodges.

Full Proposal

Erection of Owner/site mangers dwelling to serve existing caravan site and the retention of 14 No. existing touring caravan pitches, toilet shower block and 3No. holiday lodges

Documents

Application Form Redacted
Application Form Public Access
Not archived · Council Link
Biodiversity Checklist
General Document Public Access
Not archived · Council Link
BNG Metric
General Document Public Access
Not archived · Council Link
Consultee Comment - CC Highways
Consultee Comment
Not archived · Council Link
Consultee Comment - Environment Agency
Consultee Comment
Not archived · Council Link
Consultee Comment - Parish Council
Consultee Comment
Not archived · Council Link
Flood Risk Assessment
General Document Public Access
Not archived · Council Link
Flood Risk Assessment
General Document Public Access
Not archived · Council Link
Location Plan
Plan Public Access
Not archived · Council Link
Metric Condition Assessments
General Document Public Access
Not archived · Council Link
Policy Checklist
General Document Public Access
Not archived · Council Link
Preliminary Ecological Appraisal with BNG
General Document Public Access
Not archived · Council Link
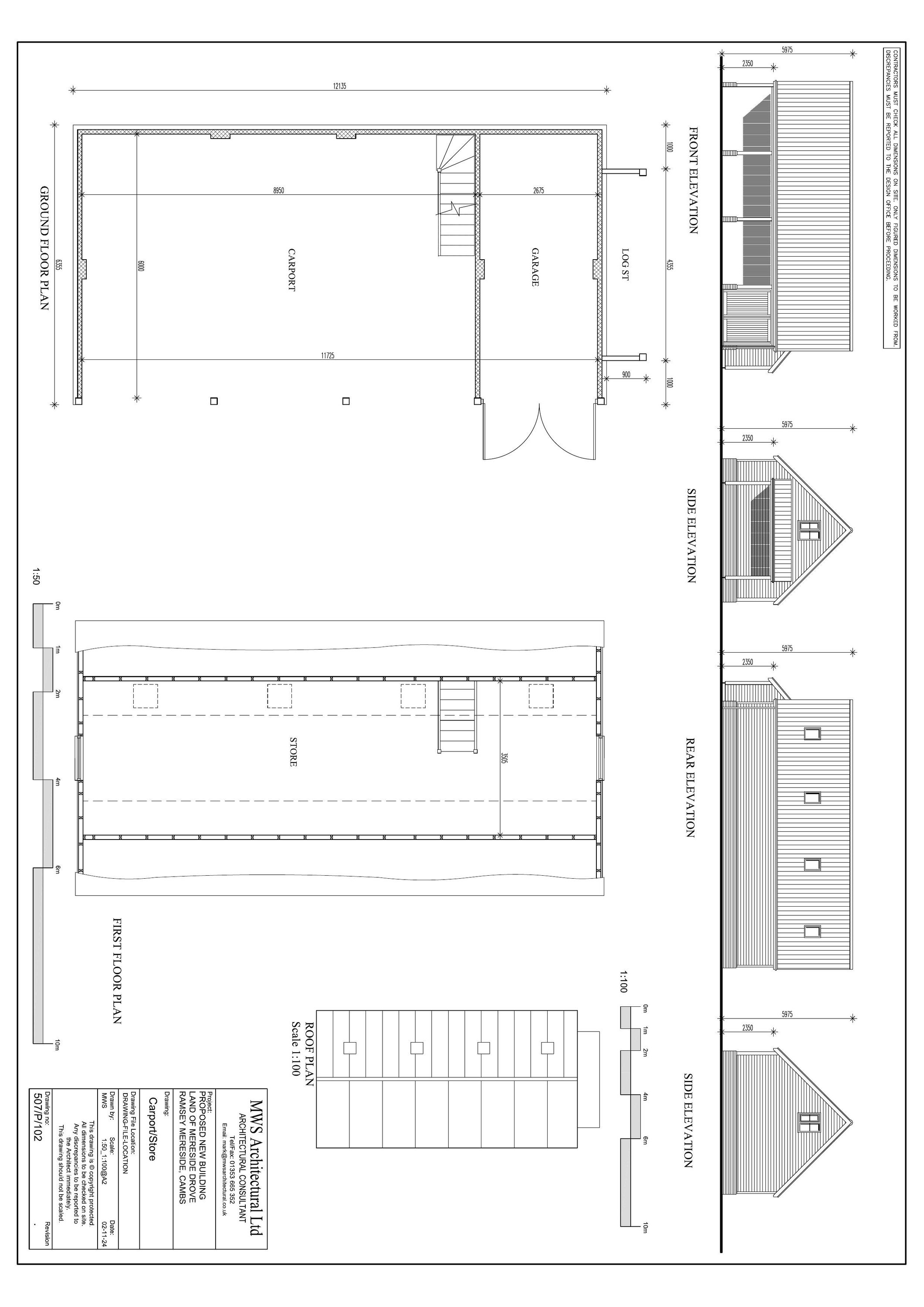
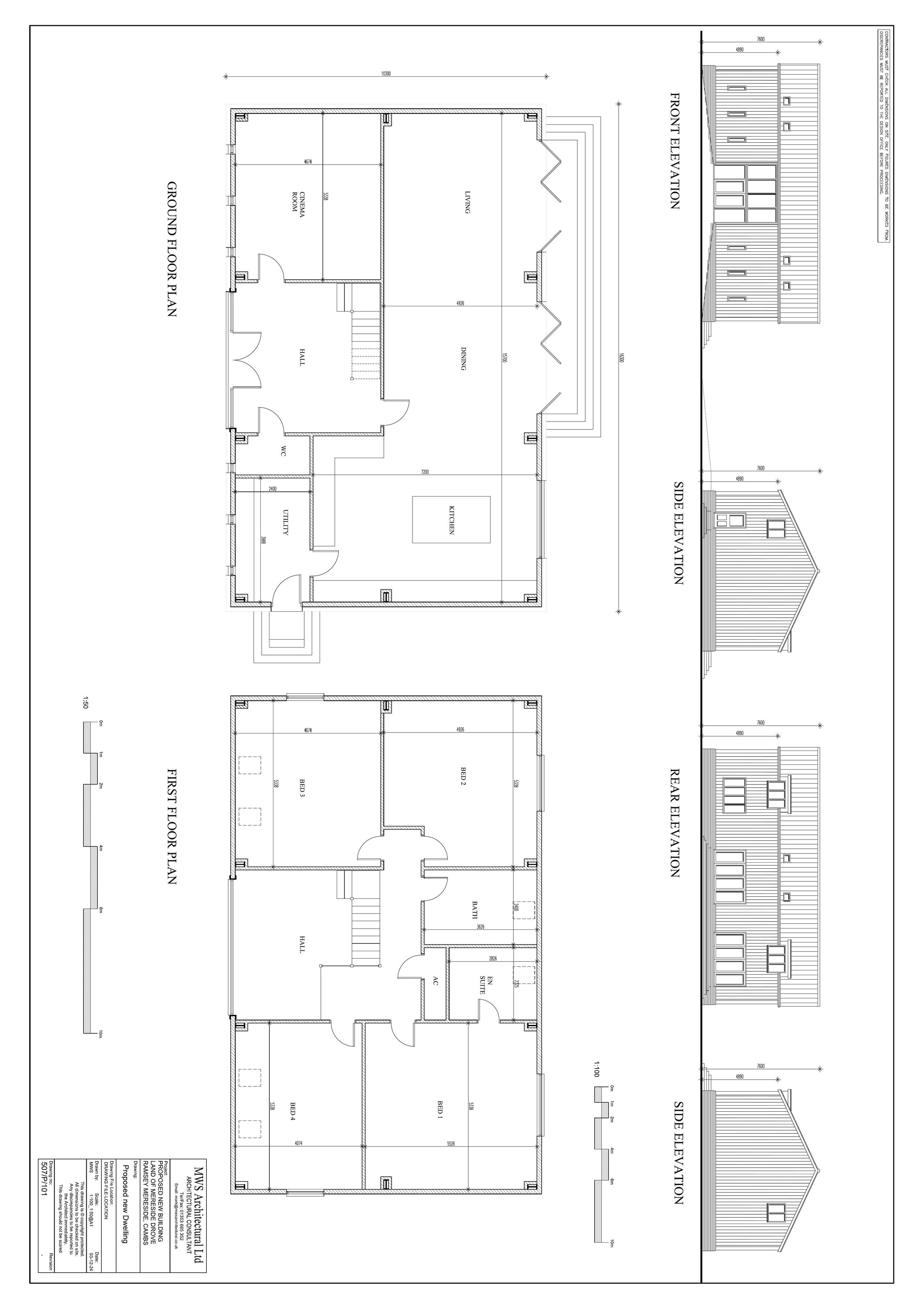
Proposed Dwelling Roof Plan
Plan Public Access
Not archived · Council Link
Plan Public Access
Archived · Council Link
Plan Public Access
Archived · Council Link
Supporting Planning Statement
General Document Public Access
Not archived · Council Link
Supporting Statement
General Document Public Access
Not archived · Council Link

Take Action

Make your voice heard. Authorities need to hear from people who support new homes.

✉️ Write Email in Support View on Council Portal