← Back to Huntingdonshire District Council

Status

Refused Change of use
Received
26 Aug 2025
New dwellings
3

Summary

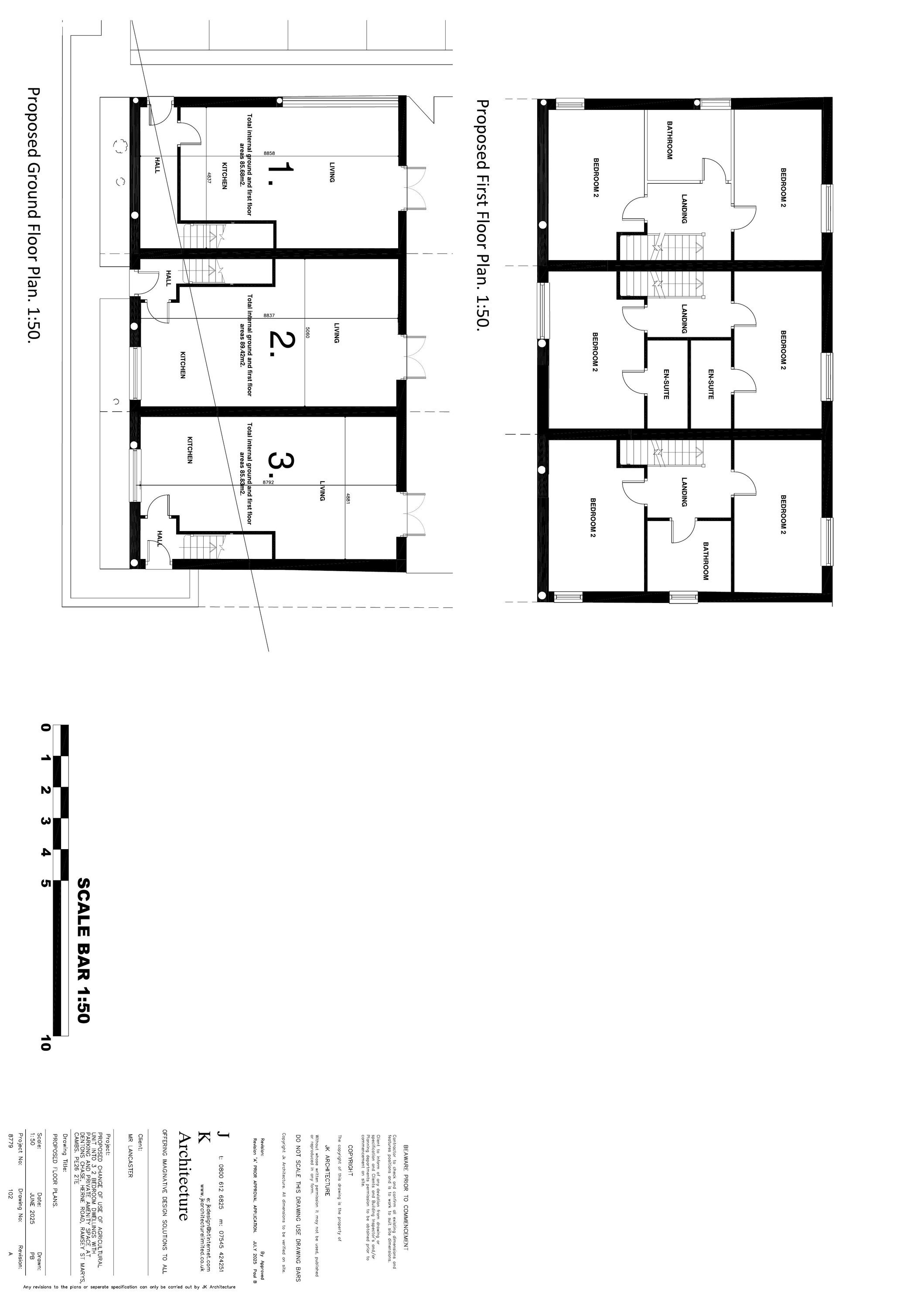
Change of use of agricultural building to three dwellings (C3) with associated works.

Full Proposal

Change of use from agricultural building to 3No. dwellings (Use Class C3) and associated operational development

Documents

2 The Old Barn
Neighbour Comment
Not archived · Council Link
2 The Old Barn (1)
Neighbour Comment
Not archived · Council Link
2 The Old Barn (2)
Neighbour Comment
Not archived · Council Link
2 The Old Barn (3)
Neighbour Comment
Not archived · Council Link
Application Form Redacted
Application Form Public Access
Not archived · Council Link
Consultee Comment - Cadent Gas
Consultee Comment
Not archived · Council Link
Consultee Comment - Cadent Gas
Consultee Comment
Not archived · Council Link
Consultee Comment - Cadent Gas
Consultee Comment
Not archived · Council Link
Consultee Comment - CC Highways
Consultee Comment
Not archived · Council Link
Consultee Comment - Environmental Health
Consultee Comment
Not archived · Council Link
DECISION
Decision Notice Public Access
Not archived · Council Link
Existing Elevations
Plan Public Access
Not archived · Council Link
Existing Floor Plan
Plan Public Access
Not archived · Council Link
Flood Risk Asessment
General Document Public Access
Not archived · Council Link
Location Plan
Plan Public Access
Not archived · Council Link
Officer Report.
Officer Report
Not archived · Council Link
Plan Public Access
Archived · Council Link
Proposed North and West Elevations
Plan Public Access
Not archived · Council Link
Plan Public Access
Archived · Council Link
Proposed South and East Elevations
Plan Public Access
Not archived · Council Link
Structural Report
General Document Public Access
Not archived · Council Link

Take Action

Make your voice heard. Authorities need to hear from people who support new homes.

✉️ Write Email in Support View on Council Portal