← Back to Huntingdonshire District Council

Status

In progress Change of use
Received
18 Sep 2025
New dwellings
0

Full Proposal

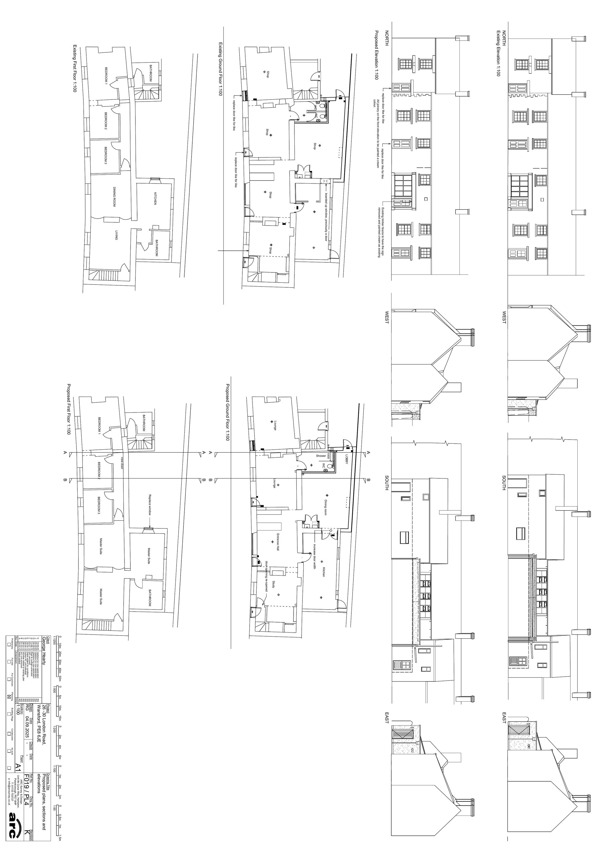
Change of use of ground floor Class E unit (wedding shop) to Class C3 use to create a dwelling incorporating the existing first floor flat.

Documents

ApplicationFormRedacted
Application Form Public Access
Not archived · Council Link
Biodiversity Checklist
General Document Public Access
Not archived · Council Link
Consultee Comment - CC Highways
Consultee Comment
Not archived · Council Link
Consultee Comment - Parish
Consultee Comment
Not archived · Council Link
Consultee Comment - Peterborough City Council
Consultee Comment
Not archived · Council Link
Existing and proposed floor and elevatiion plans
Plan Public Access
Not archived · Council Link
Heritage Statement and Impact Assessment
General Document Public Access
Not archived · Council Link
Heritage Statement and Impact Assessment
General Document Public Access
Not archived · Council Link
Location Plan
Plan Public Access
Not archived · Council Link
Planning design and access statement
General Document Public Access
Not archived · Council Link
Proposed block plan
Plan Public Access
Not archived · Council Link
Plan Public Access
Archived · Council Link

Take Action

Make your voice heard. Authorities need to hear from people who support new homes.

✉️ Write Email in Support View on Council Portal