← Back to Huntingdonshire District Council

Status

In progress New housing
Received
25 Nov 2025
New dwellings
2

Summary

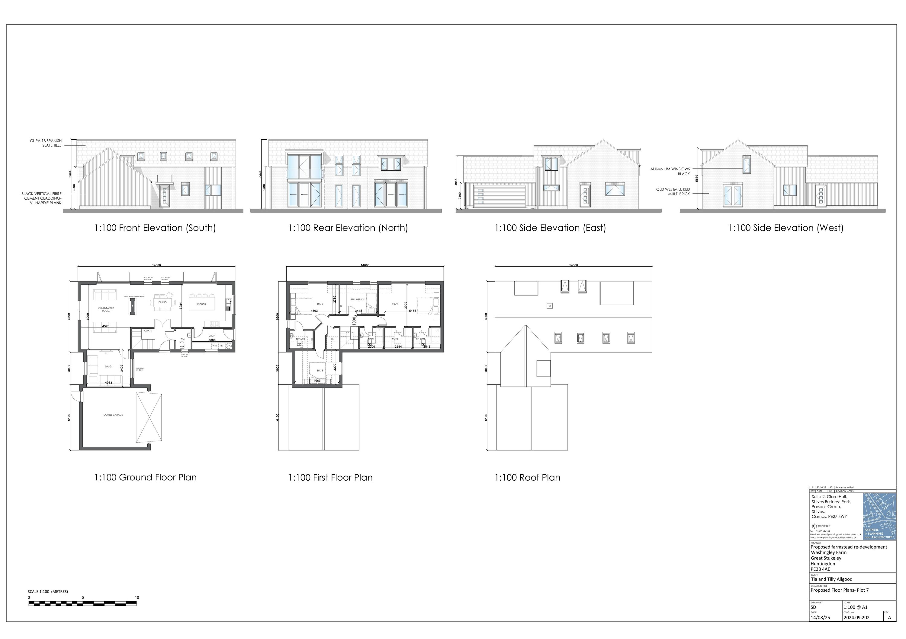
Erection of two self-build dwellings with garages.

Full Proposal

Erection of two self-build dwellings and garages pursuant to Permission in Principle Approval 25/01067/PIP.

Documents

50 Green End
Consultee Comment
Not archived · Council Link
ApplicationFormRedacted
Application Form Public Access
Not archived · Council Link
Consultee Comment - Rights of Way
Consultee Comment
Not archived · Council Link
Consultee Comments - Environmental Health
Consultee Comment
Not archived · Council Link
Consultee Commetns - CC Highways
Consultee Comment
Not archived · Council Link
Plan Public Access
Archived · Council Link
Parish Comments
Consultee Comment
Not archived · Council Link
Planning, Design and Access Statement
General Document Public Access
Not archived · Council Link
Preliminary Ecological Appraisal
General Document Public Access
Not archived · Council Link
Proposed Block Plan
Plan Public Access
Not archived · Council Link

Take Action

Make your voice heard. Authorities need to hear from people who support new homes.

✉️ Write Email in Support View on Council Portal