← Back to Huntingdonshire District Council

Status

In progress New housing
Received
05 Dec 2025
New dwellings
2

Summary

New build and conversion creating two 4-bed residential dwellings with parking and landscaping.

Full Proposal

Demolition of grain store and erection of 4-bed residential dwelling, conversion and part-reconstruction of existing agricultural building to create 4-bed residential dwelling and reconstruction of existing agricultural building to create ancillary residential storage as well as car and bicycle parking, together with associated landscaping (two dwellings total).

Documents

1 Causeway Road
Neighbour Comment
Not archived · Council Link
1 Causeway Road (2)
Neighbour Comment
Not archived · Council Link
Application Form Redacted
General Document Public Access
Not archived · Council Link
Arb Report
General Document Public Access
Not archived · Council Link
Plan Public Access
Archived · Council Link
Bat Emergence Survey
General Document Public Access
Not archived · Council Link
Biodiversity Checklist
General Document Public Access
Not archived · Council Link
BNG Report
General Document Public Access
Not archived · Council Link
Bull Cottage
Neighbour Comment
Not archived · Council Link
Consultee Comment - Environmental Health
Consultee Comment
Not archived · Council Link
Consultee Comment - Rights of Way Officer
Consultee Comment
Not archived · Council Link
Consultee Comments - Arboricultural Officer
Consultee Comment
Not archived · Council Link
Consultee Response - CCC Highways
Consultee Comment
Not archived · Council Link
DESIGN ACCESS STATEMENT
General Document Public Access
Not archived · Council Link
Ecology Report
General Document Public Access
Not archived · Council Link
EXISTING LOCATION PLAN
Plan Public Access
Not archived · Council Link
Plan Public Access
Archived · Council Link
Plan Public Access
Archived · Council Link
Heritage Impact Assessment
General Document Public Access
Not archived · Council Link
Lich Gate, Bridge Road
Neighbour Comment
Not archived · Council Link
Magnolia Cottage The Causeway
Neighbour Comment
Not archived · Council Link
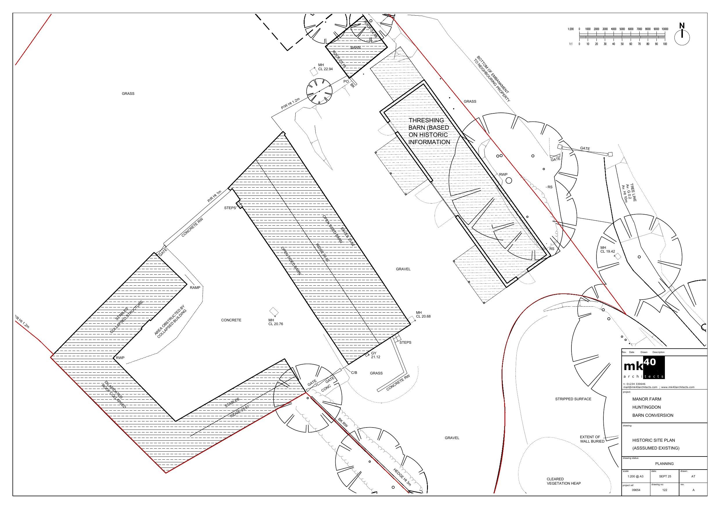
Manor Farm, Bull Lane
Neighbour Comment
Not archived · Council Link
Over Heating Report - Plot 1.
General Document Public Access
Not archived · Council Link
Parish Comment
Consultee Comment
Not archived · Council Link
Parish Comment
Consultee Comment
Not archived · Council Link
Planning Statement
General Document Public Access
Not archived · Council Link
PLOT 1 ASSUMED THRESHING BARN- ELEVATIONS
Plan Public Access
Not archived · Council Link
PLOT 1 ASSUMED THRESHING BARN- PLANS
Plan Public Access
Not archived · Council Link
PLOT 1 EXISTING ELEVATIONS
Plan Public Access
Not archived · Council Link
PLOT 1 EXISTING PLANS
Plan Public Access
Not archived · Council Link
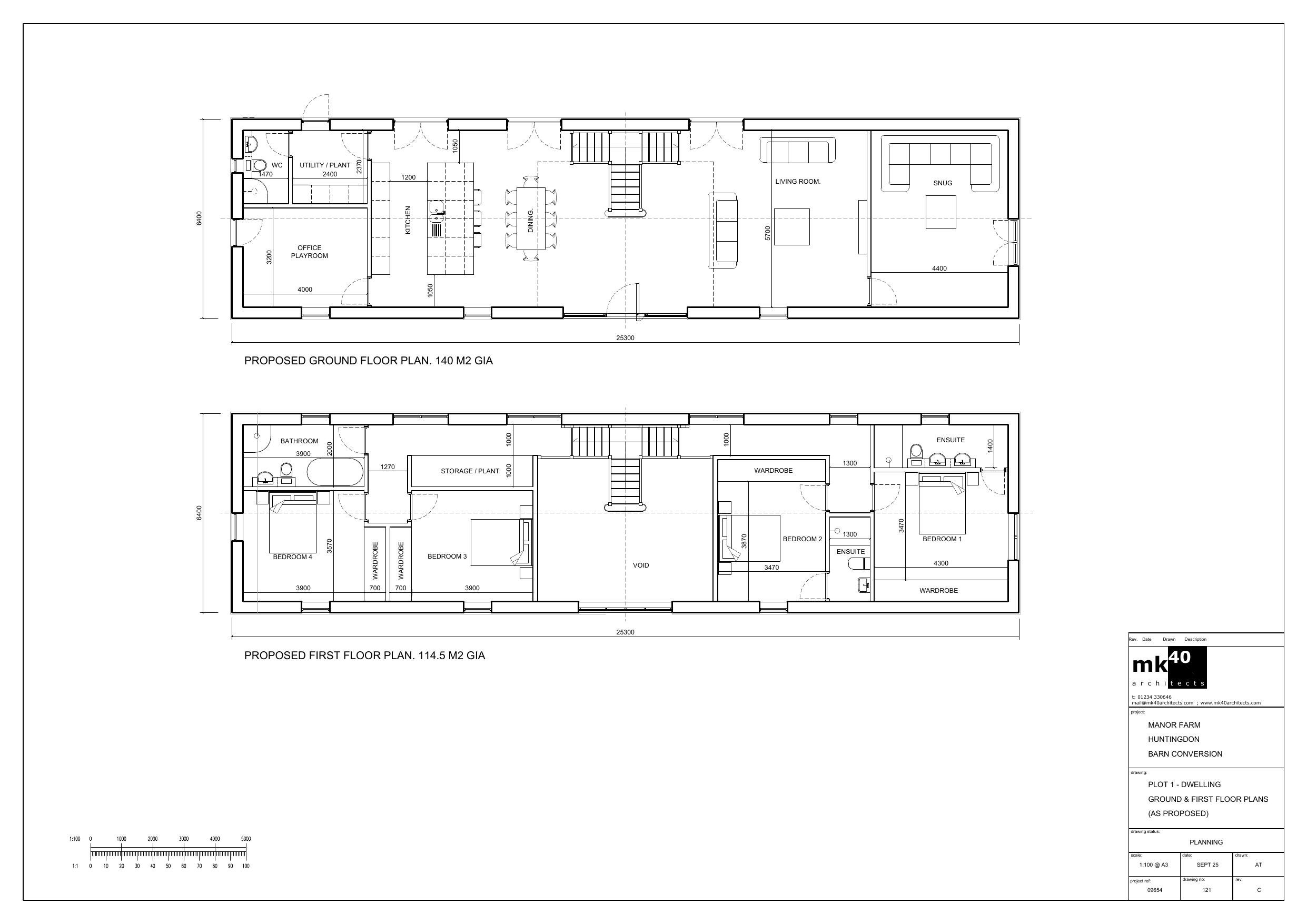
PLOT 1 PROPOSED ELEVATIONS
Plan Public Access
Not archived · Council Link
Plan Public Access
Archived · Council Link
Plan Public Access
Archived · Council Link
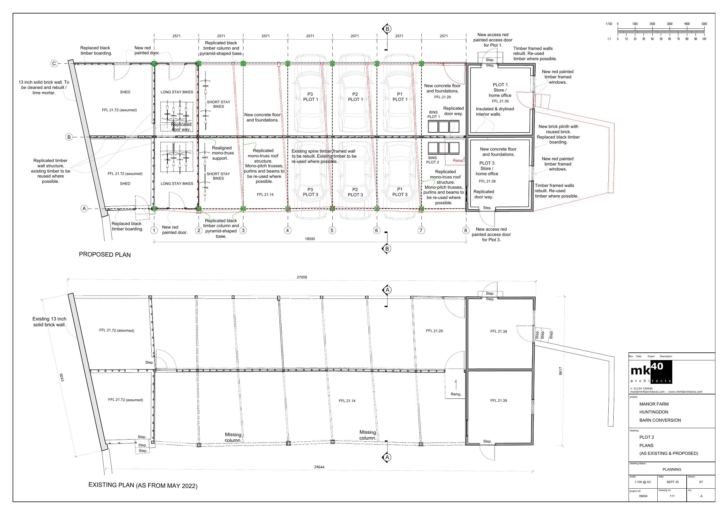
PLOT 2 PROPOSED ELEVATIONS
Plan Public Access
Not archived · Council Link
PLOT 2 PROPOSED ELEVATIONS SECTIONS
Plan Public Access
Not archived · Council Link
PLOT 3 EXISTING PLAN
Plan Public Access
Not archived · Council Link
PLOT 3 EXISTING PROPOSED ELVATIONS
Plan Public Access
Not archived · Council Link
PLOT 3 EXISTING PROPOSED ELVATIONS
Plan Public Access
Not archived · Council Link
PLOT 3 EXISTING PROPOSED ELVATIONS
Plan Public Access
Not archived · Council Link
PLOT 3 PROPOSED PLAN
Plan Public Access
Not archived · Council Link
Policy Guidance Checklist
General Document Public Access
Not archived · Council Link
Plan Public Access
Archived · Council Link
Plan Public Access
Archived · Council Link
Plan Public Access
Archived · Council Link
Structural Report
General Document Public Access
Not archived · Council Link
Torkington House
Neighbour Comment
Not archived · Council Link
Validation Checklist
General Document Public Access
Not archived · Council Link
White Hall Farm
Neighbour Comment
Not archived · Council Link

Take Action

Make your voice heard. Authorities need to hear from people who support new homes.

✉️ Write Email in Support View on Council Portal