← Back to Huntingdonshire District Council

Status

In progress Listed building
Received
05 Dec 2025
New dwellings
2

Summary

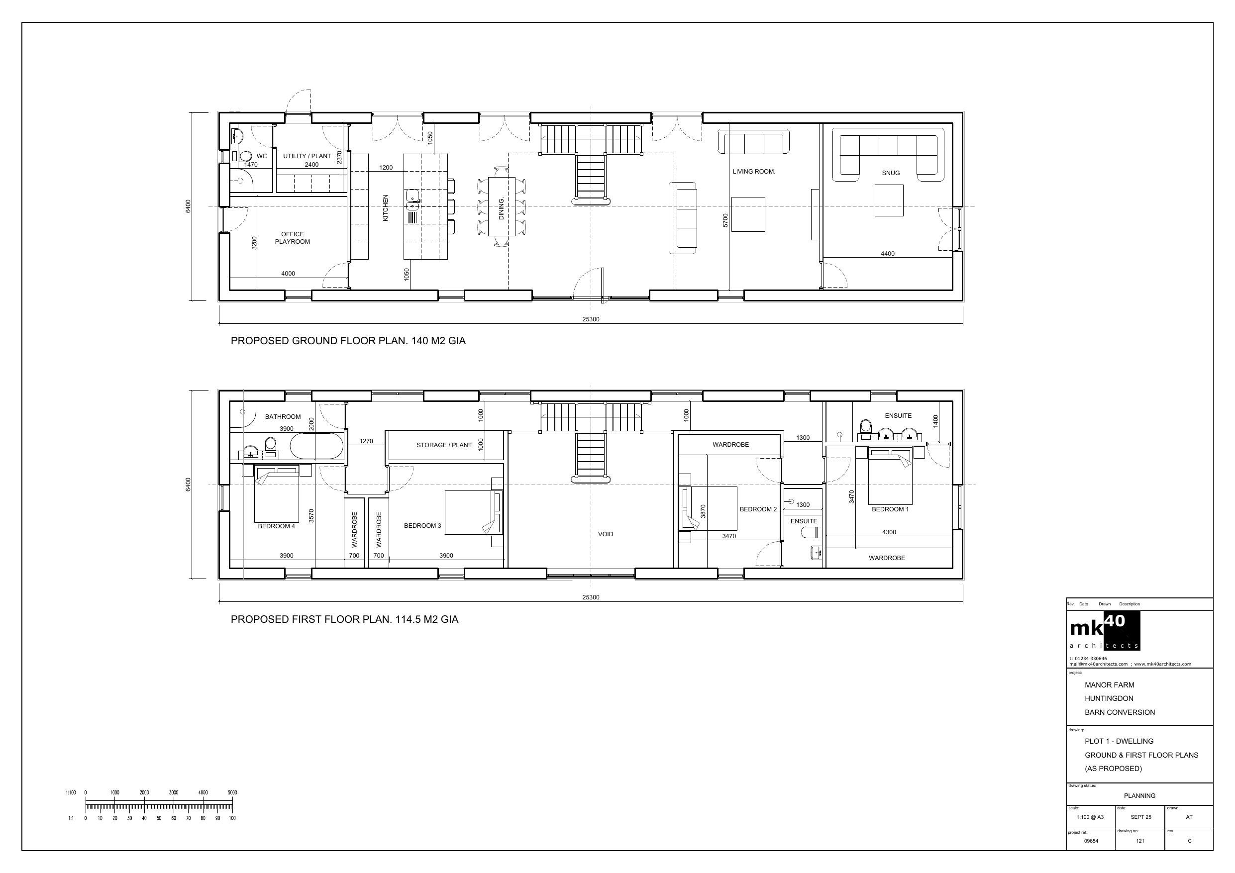
New build and conversion creating two 4-bed residential dwellings with parking and landscaping.

Full Proposal

Demolition of grain store and erection of 4-bed residential dwelling, conversion and part-reconstruction of existing agricultural building to create 4-bed residential dwelling and reconstruction of existing agricultural building to create ancillary residential storage as well as car and bicycle parking, together with associated landscaping (two dwellings total).

Documents

Application Form Redacted
General Document Public Access
Not archived · Council Link
Arb Report
General Document Public Access
Not archived · Council Link
Plan Public Access
Archived · Council Link
Bat Emergence Survey
General Document Public Access
Not archived · Council Link
Biodiversity Checklist
General Document Public Access
Not archived · Council Link
BNG Report
General Document Public Access
Not archived · Council Link
Bull Cottage
Neighbour Comment
Not archived · Council Link
DESIGN ACCESS STATEMENT
General Document Public Access
Not archived · Council Link
Ecology Report
General Document Public Access
Not archived · Council Link
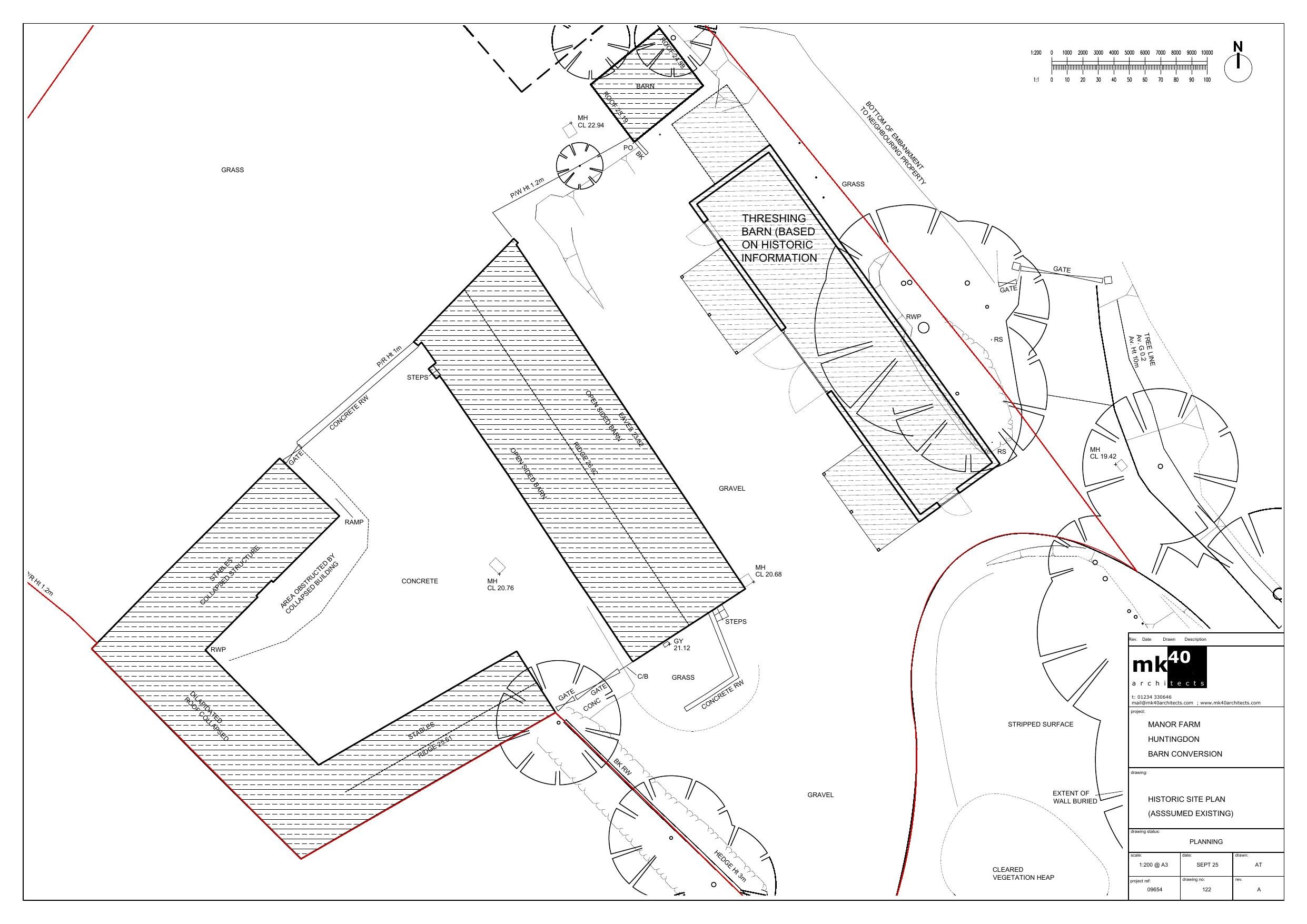
EXISTING LOCATION PLAN
Plan Public Access
Not archived · Council Link
Plan Public Access
Archived · Council Link
Plan Public Access
Archived · Council Link
Heritage Impact Assessment
General Document Public Access
Not archived · Council Link
Lich Gate, Bridge Road
Neighbour Comment
Not archived · Council Link
Manor Farm, Bull Lane
Neighbour Comment
Not archived · Council Link
Over Heating Report - Plot 1.
General Document Public Access
Not archived · Council Link
Parish Comment
Consultee Comment
Not archived · Council Link
Parish Comment
Consultee Comment
Not archived · Council Link
Planning Statement
General Document Public Access
Not archived · Council Link
PLOT 1 ASSUMED THRESHING BARN- ELEVATIONS
Plan Public Access
Not archived · Council Link
PLOT 1 ASSUMED THRESHING BARN- PLANS
Plan Public Access
Not archived · Council Link
PLOT 1 EXISTING ELEVATIONS
Plan Public Access
Not archived · Council Link
PLOT 1 EXISTING PLANS
Plan Public Access
Not archived · Council Link
PLOT 1 PROPOSED ELEVATIONS
Plan Public Access
Not archived · Council Link
Plan Public Access
Archived · Council Link
Plan Public Access
Archived · Council Link
PLOT 2 PROPOSED ELEVATIONS
Plan Public Access
Not archived · Council Link
PLOT 2 PROPOSED ELEVATIONS SECTIONS
Plan Public Access
Not archived · Council Link
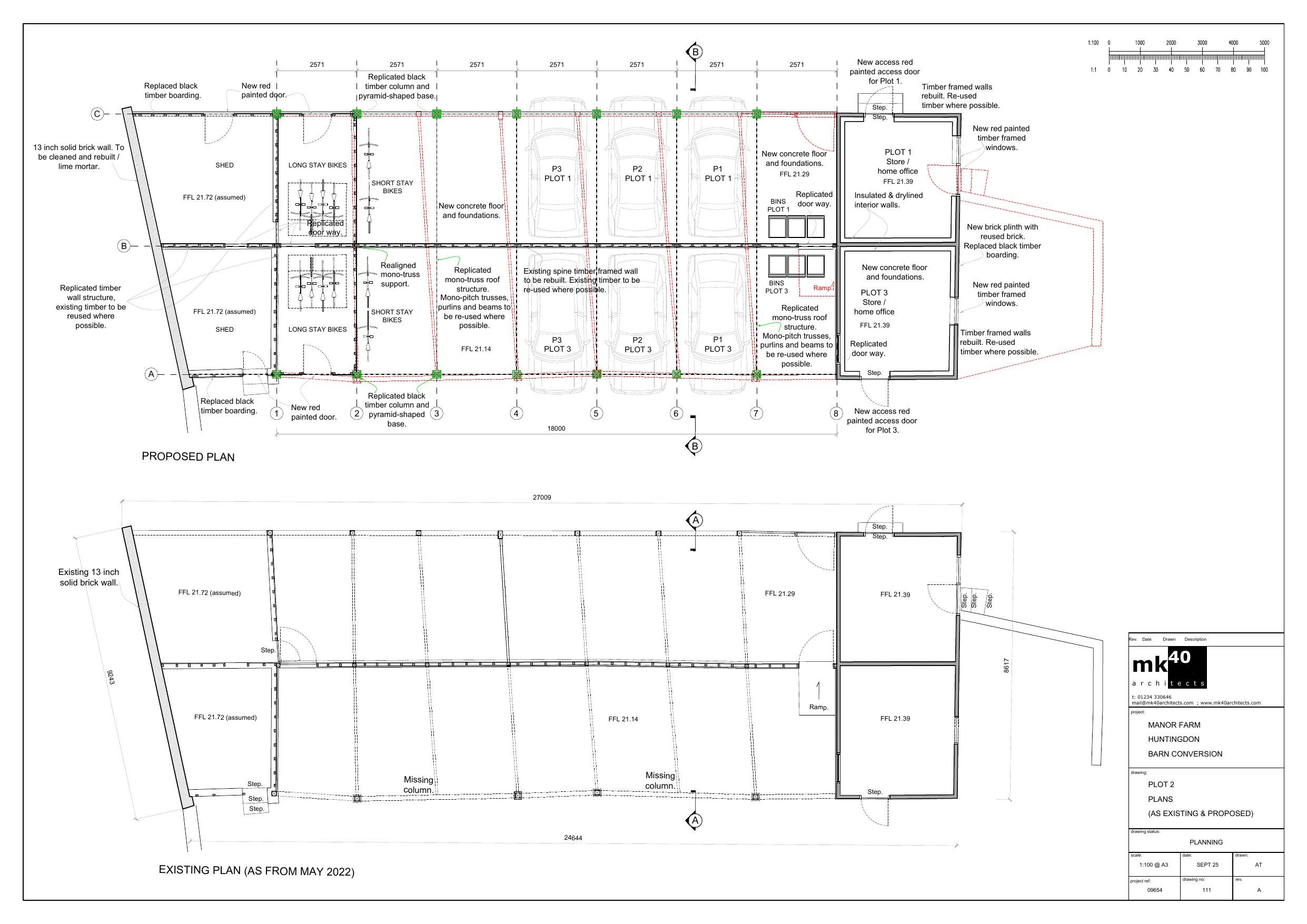
PLOT 3 EXISTING PLAN
Plan Public Access
Not archived · Council Link
PLOT 3 EXISTING PROPOSED ELVATIONS
Plan Public Access
Not archived · Council Link
PLOT 3 EXISTING PROPOSED ELVATIONS
Plan Public Access
Not archived · Council Link
PLOT 3 EXISTING PROPOSED ELVATIONS
Plan Public Access
Not archived · Council Link
PLOT 3 PROPOSED PLAN
Plan Public Access
Not archived · Council Link
Policy Guidance Checklist
General Document Public Access
Not archived · Council Link
Plan Public Access
Archived · Council Link
Plan Public Access
Archived · Council Link
Plan Public Access
Archived · Council Link
Structural Report
General Document Public Access
Not archived · Council Link
Torkington House, Bridge Road
Neighbour Comment
Not archived · Council Link
Validation Checklist
General Document Public Access
Not archived · Council Link
White Hall Farm
Neighbour Comment
Not archived · Council Link

Take Action

Make your voice heard. Authorities need to hear from people who support new homes.

✉️ Write Email in Support View on Council Portal