← Back to Huntingdonshire District Council

Status

In progress House extension
Received
Last month
New dwellings
0

Full Proposal

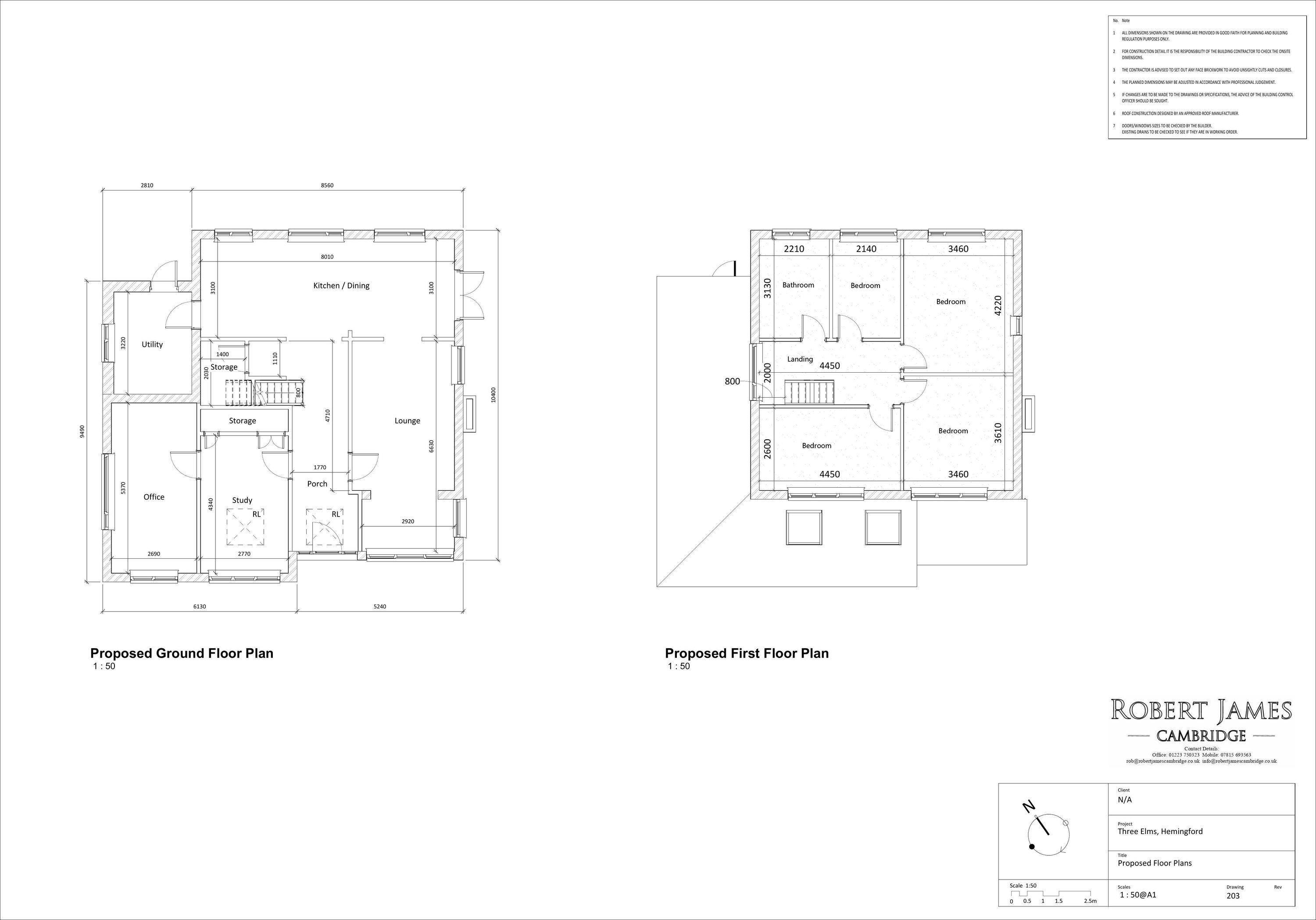
Construction of a side extension, change of existing lower single storey roof from a flat roof to a pitched roof, and conversion of existing garage into a habitable room.

Documents

Application Form
General Document Public Access
Not archived · Council Link
Biodiversity Checklist
General Document Public Access
Not archived · Council Link
Existing Elevations
Plan Public Access
Not archived · Council Link
Existing Floor Plans
Plan Public Access
Not archived · Council Link
Existing Roof Plan
Plan Public Access
Not archived · Council Link
Plan Public Access
Archived · Council Link
Flood Zone Checklist
General Document Public Access
Not archived · Council Link
Location Plan
Plan Public Access
Not archived · Council Link
Location Plan
Plan Public Access
Not archived · Council Link
Planning, Flood and Heritage Statement
General Document Public Access
Not archived · Council Link
Proposed Elevations
Plan Public Access
Not archived · Council Link
Plan Public Access
Archived · Council Link
Proposed Roof Plan
Plan Public Access
Not archived · Council Link
Plan Public Access
Archived · Council Link
Rendered Elevation
Plan Public Access
Not archived · Council Link

Take Action

Make your voice heard. Authorities need to hear from people who support new homes.

✉️ Write Email in Support View on Council Portal