← Back to Hyndburn Borough Council

Status

Unknown status New housing
Received
n/a
New dwellings
3

Full Proposal

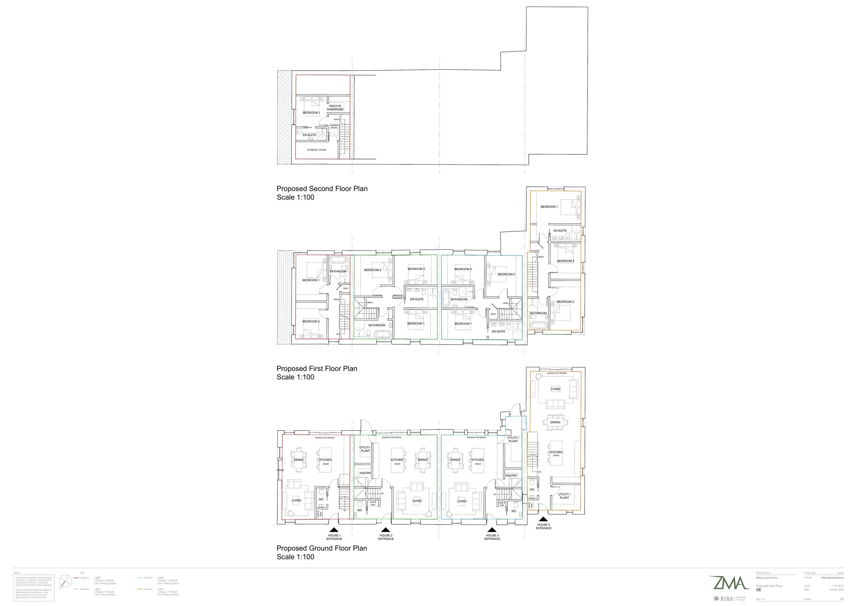
Blacklaw Farm, Wilpshire Road, Rishton, Lancashire, BB1 4AD | Full Planning Application | Full: The proposal includes various elevation changes to the existing dwelling; the conversion and extension of 2 attached barns to create 3 new dwellings with associated landscaping, parking and gard... | Application No: 11/25/0517 | Registered : 06 January 2026

Documents

01 LOCATION PLAN
Location Plan
Not archived · Council Link
CAD Drawing
Archived · Council Link
04 EXISTING FLOOR PLANS
CAD Drawing
Not archived · Council Link
05 EXISTING ELEVATIONS
CAD Drawing
Not archived · Council Link
CAD Drawing
Archived · Council Link
CAD Drawing
Archived · Council Link
09 PROPOSED ELEVATIONS
CAD Drawing
Not archived · Council Link
Application Form Redacted
Redacted Application Form
Not archived · Council Link
Black Law Farm BNG Metric
Background Papers
Not archived · Council Link
Black Law Farm - BNG Report PRELIMINARY ASSESSMENT OF BIODIVERSITY NET GAIN
Background paper needing redaction
Not archived · Council Link
Black Law Farm - Design and Access Statement
Background Papers
Not archived · Council Link
Black Law Farm - Ecology Report
Background paper needing redaction
Not archived · Council Link
Black Law Farm - Heritage Statement
Background Papers
Not archived · Council Link
Black Law Farm - Planning Statement
Background Papers
Not archived · Council Link
Black Law Farm - Structural Report
Background paper needing redaction
Not archived · Council Link
Constraints & History 11-25-0517
Background Papers
Not archived · Council Link
HBC ECOLOGY
Statutory Consultee Response
Not archived · Council Link
LCc Highways
Statutory Consultee Response
Not archived · Council Link
LCC Historic Environment Team
Statutory Consultee Response
Not archived · Council Link

Take Action

Make your voice heard. Authorities need to hear from people who support new homes.

✉️ Write Email in Support View on Council Portal