← Back to Isle of Wight Council

Status

Registered New housing
Received
18 Jul 2024
New dwellings
4

Full Proposal

Proposed four houses and garage (use class C3); formation of vehicular access and parking (revised plans) (revised description) (readvertised application)

Documents

4-2024 REV B BUCKBUY LANE LOCATION AND BLOCK PLAN AS EXISTING A1-1-500
Plan - Location
Not archived · Council Link
4-2024-1 REV A BUCKBUY LANE LOCATION AND BLOCK PROPOSED A1-1-500
Plan - Block
Not archived · Council Link
4-2024-3 BUCKBURY LANE TOPO A1-1-200
Plans - Other
Not archived · Council Link
4-2024-4 BUCKBURY LANE SECTIONS A1-1-200
Plans - Other
Not archived · Council Link
AND BLOCK PLAN AS EXISTING
Plan - Location
Not archived · Council Link
AND BLOCK PLAN AS PROPOSED
Plan - Location
Not archived · Council Link
APPLICATIONFORMREDACTED
Application Form - Public Copy
Not archived · Council Link
ATTACHMENTSUMMARY
Supporting Information
Not archived · Council Link
BUCKBURY LANE WORKING GROUP
Public Comment
Not archived · Council Link
CATHERINE KIRK
Public Comment
Not archived · Council Link
ECOLOGICAL REPORT - DORMOUSE SURVEY
Supporting Information
Not archived · Council Link
ECOLOGY UPDATE 02 DECEMBER 2024
Supporting Information
Not archived · Council Link
GROUND LEVEL TREE ASSESSEMENT (BATS)
Supporting Information
Not archived · Council Link
JANE CALDOW
Public Comment
Not archived · Council Link
MR & MRS LOVEJOY
Public Comment
Not archived · Council Link
MR ISLAND ROADS
Consultee Comment
Not archived · Council Link
MR ISLAND ROADS
Consultee Comment
Not archived · Council Link
MR JERRY WILLIS
Consultee Comment
Not archived · Council Link
MR MARK BLACKBURN-OBJECTS(FULL)
Public Comment
Not archived · Council Link
MR MARTIN PRITCHARD-OBJECTS(FULL)
Public Comment
Not archived · Council Link
MR MARTIN ROBERTS-SUPPORTS(FULL)
Public Comment
Not archived · Council Link
MR PETER DORSETT-OBJECTS(FULL)
Public Comment
Not archived · Council Link
MR STEPHEN REDDIHOUGH-OBJECTS(FULL)
Public Comment
Not archived · Council Link
MRS ARCHAEOLOGICAL OFFICER
Consultee Comment
Not archived · Council Link
MRS ARCHAEOLOGICAL OFFICER
Consultee Comment
Not archived · Council Link
MRS CAROLYN HERBERT
Consultee Comment
Not archived · Council Link
MRS CAROLYN HERBERT
Consultee Comment
Not archived · Council Link
PLANNING ECOLOGY OFFICER
Consultee Comment
Not archived · Council Link
REVISED - BNG ASSESSMENT (METRIC)
Supporting Information
Not archived · Council Link
REVISED - BNG HABITAT MANAGEMENT & MONITORING PLAN
Supporting Information
Not archived · Council Link
REVISED - LOCATION AND BLOCK PLAN
Plans - Revised
Not archived · Council Link
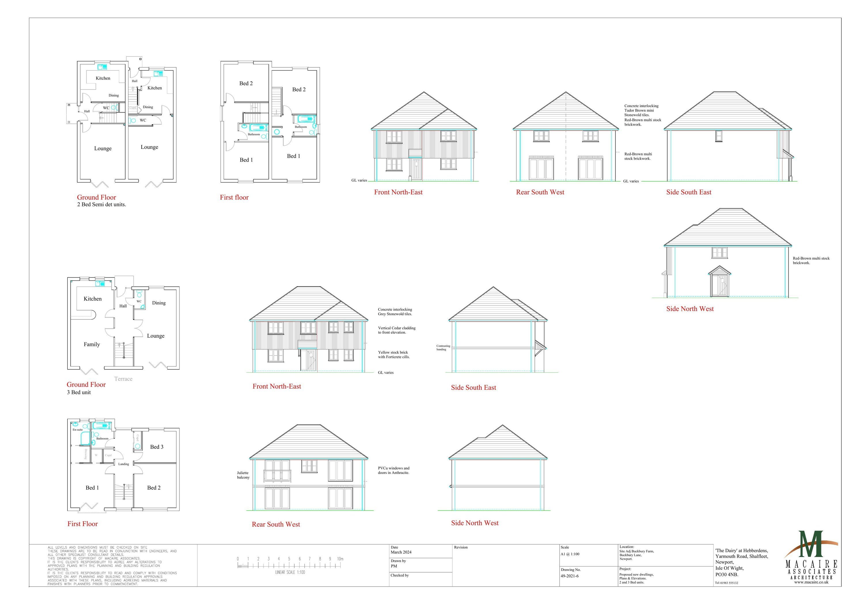
REVISED - PLANS & ELEVATIONS 4 BED UNIT + GARAGE
Plans - Revised
Not archived · Council Link
REVISED - PLANS & ELEVATIONS UNITS 3 & 4
Plans - Revised
Not archived · Council Link
REVISED - SECTIONS THROUGH SITE AA + BB
Plans - Revised
Not archived · Council Link
Plans - Revised
Archived · Council Link
REVISED - TOPO SURVEY & PROPOSED SITE OVERLAY
Plans - Revised
Not archived · Council Link
RIGHTS OF WAY
Consultee Comment
Not archived · Council Link
SECTIONS THROUGH SITE CC + DD
Plans - Other proposed
Not archived · Council Link
SITE NOTICE
Site Notice
Not archived · Council Link
SITE NOTICE
Site Notice
Not archived · Council Link
SITE NOTICE
Site Notice
Not archived · Council Link
SITE NOTICE
Site Notice
Not archived · Council Link
SOUTHERN WATER
Consultee Comment
Not archived · Council Link
SUPERSEDED - 4-2024-7 REV A BUCKBURY LANE TOPO WITH TREES OVERLAY AS PROPOSED A
Plans - Other
Not archived · Council Link
SUPERSEDED - BNG HABITAT MANAGEMENT & MONITORING PLAN
Supporting Information
Not archived · Council Link
SUPERSEDED - BUCKBURY LANE BIODIVERSITY NET GAIN ASSESSMENT
Supporting Information
Not archived · Council Link
SUPERSEDED - ECOLOGY REPORT
Supporting Information
Not archived · Council Link
SUPPORTING STATEMENTS
Supporting Information
Not archived · Council Link
TREE REPORT
Supporting Information
Not archived · Council Link
TREE REPORT APP.4
Supporting Information
Not archived · Council Link
TREE REPORT APP.4
Supporting Information
Not archived · Council Link
TREE REPORT APP.5
Supporting Information
Not archived · Council Link

Take Action

Make your voice heard. Authorities need to hear from people who support new homes.

✉️ Write Email in Support View on Council Portal