← Back to Isle of Wight Council

Status

Registered New housing
Received
Last month
New dwellings
8

Full Proposal

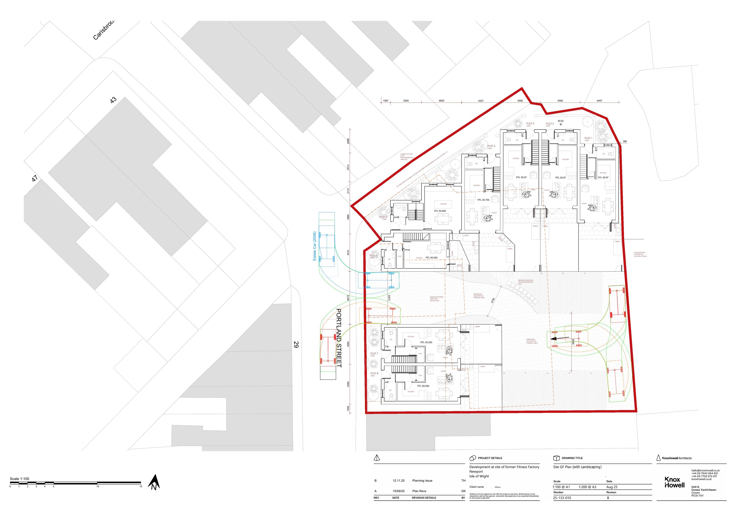
Demolition of existing buildings; Outline for one pair semi-detached dwellings and a terrace of six dwellings, new access to Portland Street and on-site parking, bin and cycle storage

Documents

APPLICATIONFORMREDACTED
Application Form - Public Copy
Not archived · Council Link
FITNESS FACTORY - LAND CONTAMINATION REPORT
Supporting Information
Not archived · Council Link
FITNESS FACTORY BLOCK PLAN PROPOSED
Plan - Block
Not archived · Council Link
Supporting Information
Archived · Council Link
FITNESS FACTORY DRG 002A EXISTING OUTLINE ELEVATIONS - STREET SCENES
Plans - Other
Not archived · Council Link
FITNESS FACTORY DRG 003A BLOCK AND LOCATION PLAN
Plan - Location
Not archived · Council Link
FITNESS FACTORY DRG 011A PROPOSED FF AND SF PLANS
Plans - Other
Not archived · Council Link
FITNESS FACTORY DRG 012A PROPOSED ROOF PLAN AND VISUALS
Plans - Other
Not archived · Council Link
FITNESS FACTORY DRG 020B PROPOSED ELEVATIONS
Plans - Other
Not archived · Council Link
FITNESS FACTORY DRG 2025_FF_01 ACCESS AND PARKING
Plans - Other
Not archived · Council Link
KATIE DAVIS
Public Comment
Not archived · Council Link
MISS NATASHA POINTING-OBJECTS(FULL)
Public Comment
Not archived · Council Link
MR ISLAND ROADS
Consultee Comment
Not archived · Council Link
PLANNING STATEMENT JAN 26 V3 REVISED - SUBMISSION
Supporting Information
Not archived · Council Link
SITE NOTICE
Site Notice
Not archived · Council Link
SOUTHERN WATER
Consultee Comment
Not archived · Council Link

Take Action

Make your voice heard. Authorities need to hear from people who support new homes.

✉️ Write Email in Support View on Council Portal