← Back to Islington Council

Status

VALIDATED Commercial
Received
Last month
New dwellings
0

Full Proposal

Alterations to the shopfront of the Chapel Market Frontage including new door and the installation of an On-Demand Grocery (ODG) hatch

Documents

Application Form - Without Personal Data
Application Form - Redacted
Not archived · Council Link
BNG exemption
Supporting Documentation
Not archived · Council Link
Community Infrastructure Levy - Completed form
Supporting Documentation
Not archived · Council Link
Design and Access Statement SUPERSEDED
Application Drawings - Superseded
Not archived · Council Link
existing elevations
Drawings - Existing
Not archived · Council Link
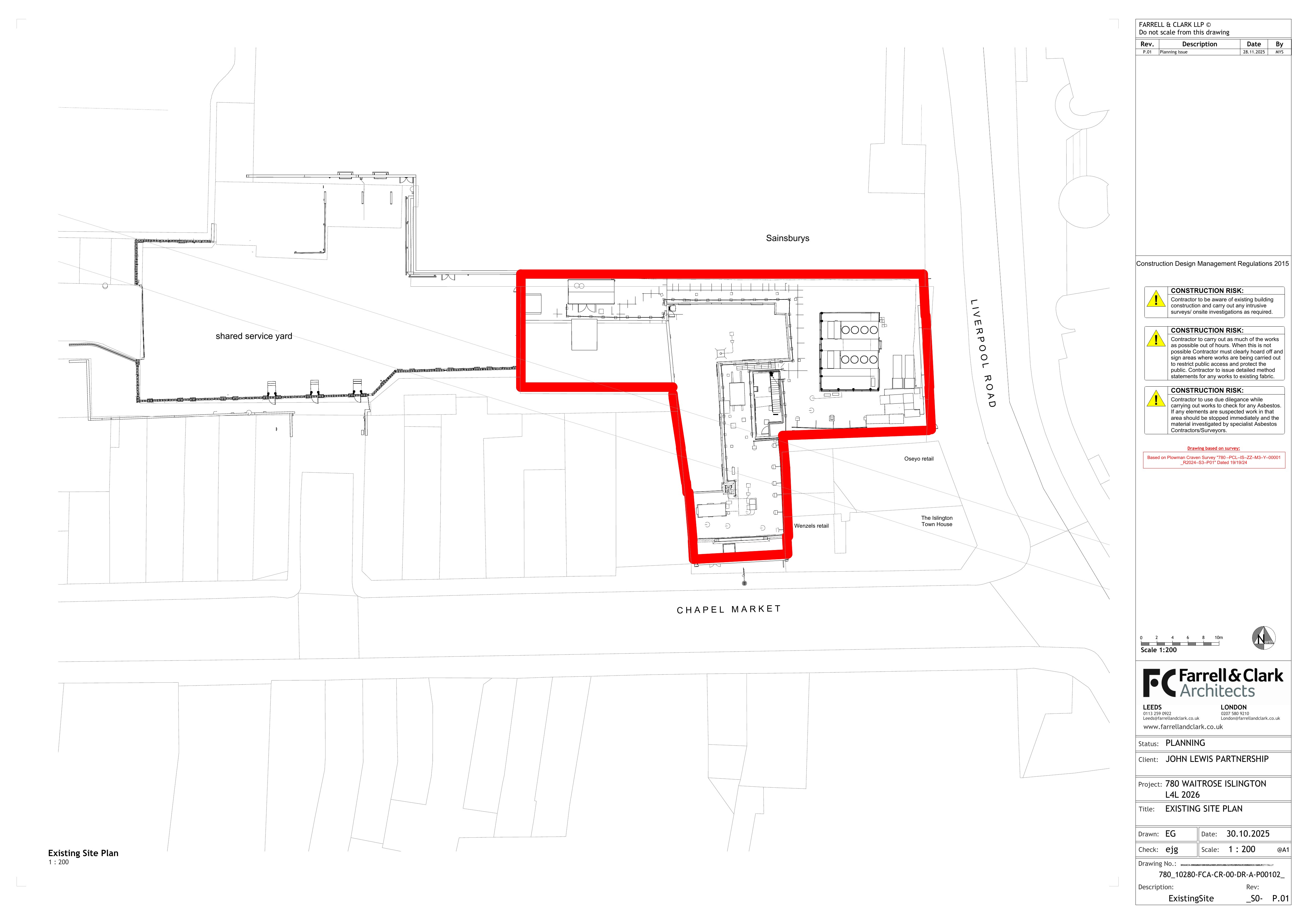
Existing ground floor plan
Drawings - Existing
Not archived · Council Link
Drawings - Existing
Archived · Council Link
Fire statement
Supporting Documentation
Not archived · Council Link
Location Plan
Location Plan
Not archived · Council Link
planning and heritage statement
Supporting Documentation
Not archived · Council Link
Planning Statement
Supporting Documentation
Not archived · Council Link
Proposed Chapel Market Elevation
Drawings - Proposed
Not archived · Council Link
Proposed elevations
Drawings - Proposed
Not archived · Council Link
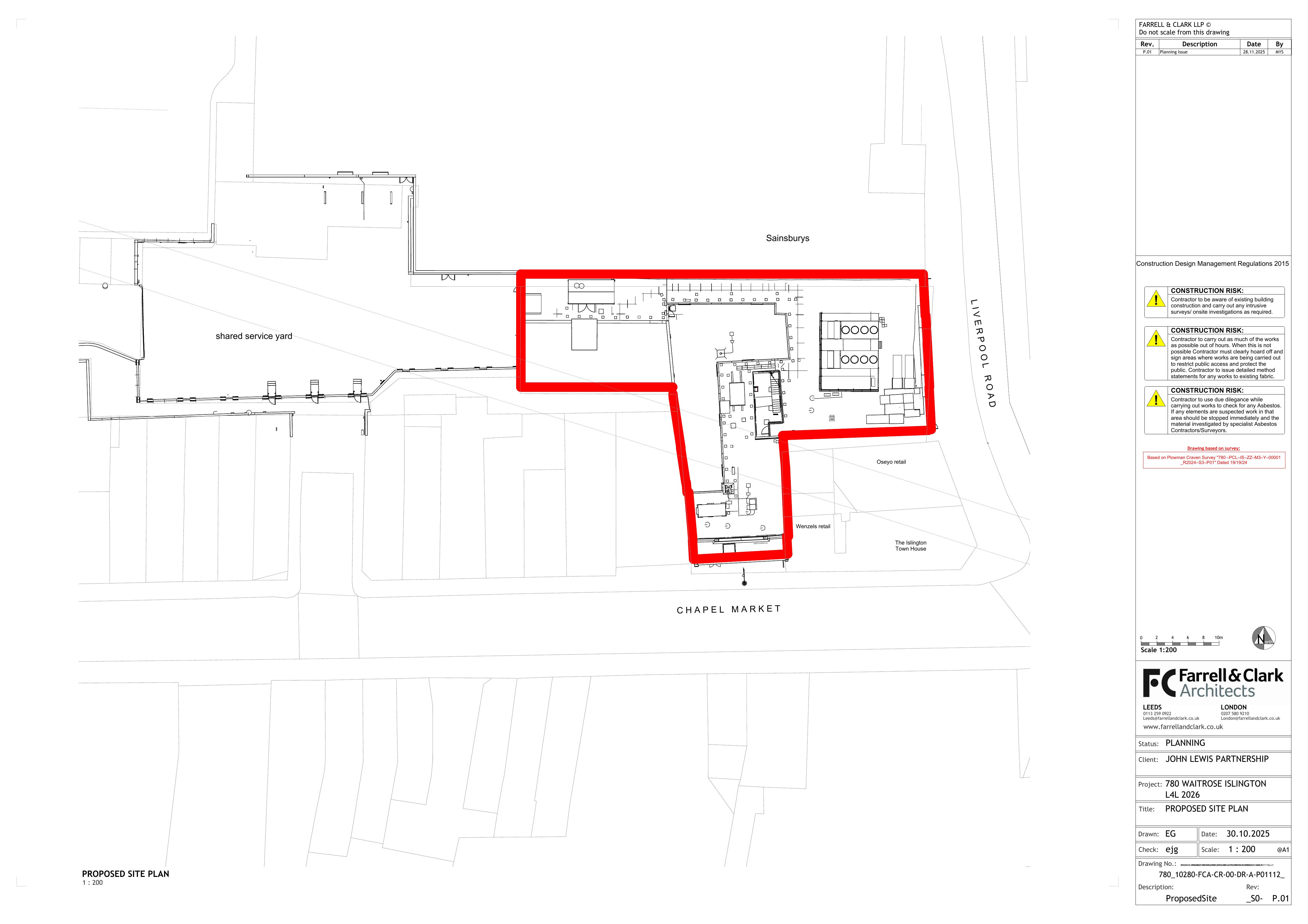
Proposed Ground floor plan
Drawings - Proposed
Not archived · Council Link
Drawings - Proposed
Archived · Council Link
Revised planning and hertiage statement
Supporting Documentation
Not archived · Council Link
SDCS
Supporting Documentation
Not archived · Council Link

Take Action

Make your voice heard. Authorities need to hear from people who support new homes.

✉️ Write Email in Support View on Council Portal