← Back to Islington Council

Status

VALIDATED House extension
Received
26 days ago
New dwellings
0

Full Proposal

Erection of single storey rear extension.

Documents

Application Form - Without Personal Data
Application Form - Redacted
Not archived · Council Link
Community Infrastructure Levy - Completed form
Supporting Documentation
Not archived · Council Link
Design and access statement
Design and Access Statement
Not archived · Council Link
Elevation - Existing
Elevations
Not archived · Council Link
Elevations Proposed
Elevations
Not archived · Council Link
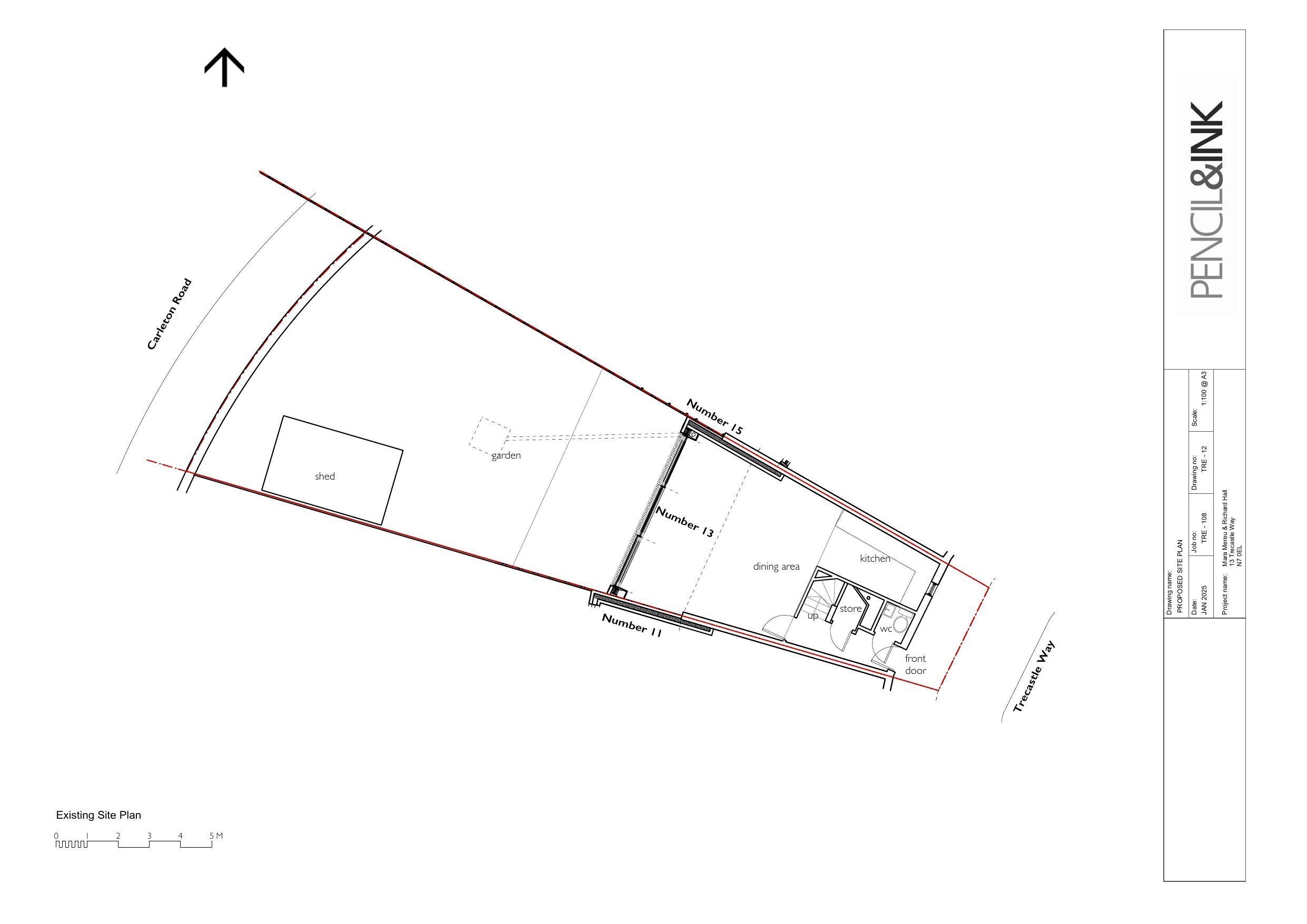
Site/Block Plan - Existing
Archived · Council Link
Existing upper Floor plans
Floor Plan - Existing
Not archived · Council Link
Ground Floor Plan - Existing
Floor Plan - Existing
Not archived · Council Link
Proposed 2F + Roof Plan
Floor plan
Not archived · Council Link
Proposed GF + FF Plan
Floor Plans
Not archived · Council Link
Section - Existing
Section - Existing
Not archived · Council Link
Section - Proposed
Section - Proposed
Not archived · Council Link
Site/Block Plan - Existing
Archived · Council Link
The location plan
Location Plan
Not archived · Council Link

Take Action

Make your voice heard. Authorities need to hear from people who support new homes.

✉️ Write Email in Support View on Council Portal