← Back to Islington Council

Status

VALIDATED Commercial
Received
16 days ago
New dwellings
0

Full Proposal

Installation of new rooftop AC plant in replace existing units. Replacement guard rail system, boiler room, and WC window.

Documents

Application Form - Without Personal Data
Application Form - Redacted
Not archived · Council Link
Community Infrastructure Levy - Completed form
Supporting Documentation
Not archived · Council Link
Design, access & sustainability statement
Design and Access Statement
Not archived · Council Link
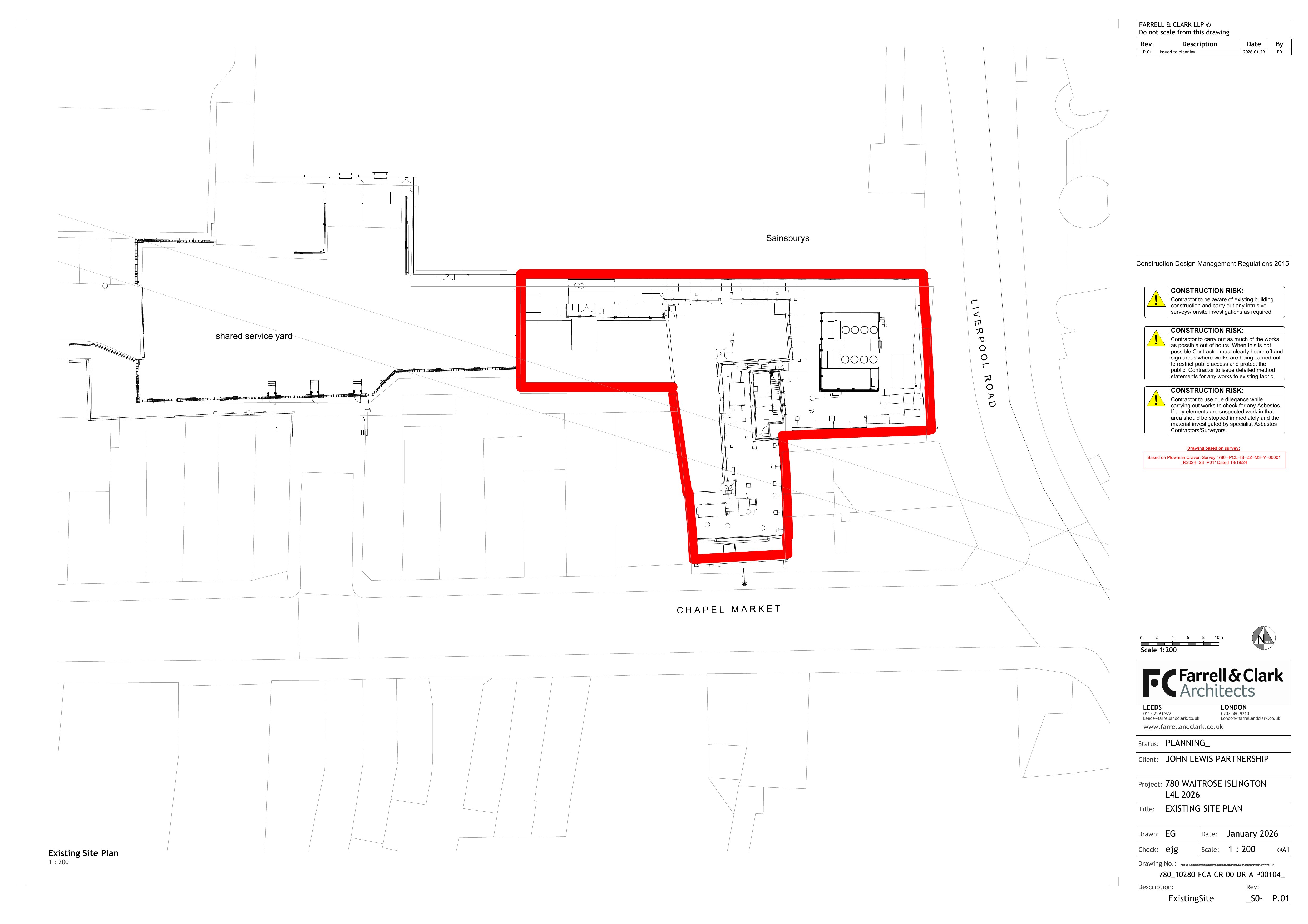
Elevations - Existing
Drawings - Existing
Not archived · Council Link
Elevations - Proposed
Drawings - Proposed
Not archived · Council Link
First Floor Plan - Existing
Drawings - Existing
Not archived · Council Link
First Floor Plan - Proposed
Drawings - Proposed
Not archived · Council Link
Ground Floor Plan - Existing
Drawings - Existing
Not archived · Council Link
Ground Floor Plan - Proposed
Drawings - Proposed
Not archived · Council Link
Noise impact assessment
Supporting Documentation
Not archived · Council Link
Roof Plan - Existing
Drawings - Existing
Not archived · Council Link
Roof Plan - Proposed
Drawings - Proposed
Not archived · Council Link
Drawings - Existing
Archived · Council Link
Drawings - Proposed
Archived · Council Link
The Location Plan - Existing
Drawings - Existing
Not archived · Council Link
The Location Plan - Proposed
Drawings - Proposed
Not archived · Council Link

Take Action

Make your voice heard. Authorities need to hear from people who support new homes.

✉️ Write Email in Support View on Council Portal