← Back to Borough Council of King's Lynn & West Norfolk

Status

Application Permitted Listed building
Received
16 Jan 2025
New dwellings
0

Full Proposal

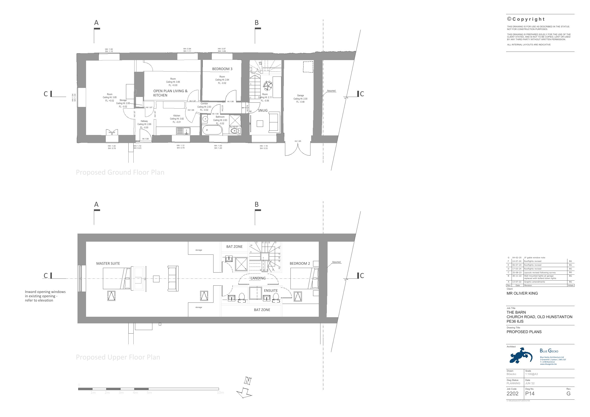
Listed Building: The proposals are for internal and external alterations - including the use of the upper floor as additional residential use, new roof lights and a new window in the existing opening in the eastern gable.

Documents

AGENT CORRESPONDENCE
Correspondence
Not archived · Council Link
AGENT CORRESPONDENCE
Correspondence
Not archived · Council Link
AGENT RESPONSE
Correspondence
Not archived · Council Link
APPLICATION FORM
Application Form
Not archived · Council Link
ASSISTANT CONSERVATION OFFICER CORRESPONDENCE
Correspondence
Not archived · Council Link
ASSISTANT CONSERVATION OFFICER RESPONSE
Correspondence
Not archived · Council Link
BAT EMERGENCE AND RE-ENTRY SURVEYS
Report
Not archived · Council Link
BLOCK PLAN
Drawing
Not archived · Council Link
CASEWORK SUPPORT OFFICER EMAIL
Correspondence
Not archived · Council Link
CONSERVATION OFFICER CORRESPONDENCE
Correspondence
Not archived · Council Link
CONSERVATION OFFICER CORRESPONDENCE
Correspondence
Not archived · Council Link
CONSERVATION OFFICER CORRESPONDENCE
Correspondence
Not archived · Council Link
CONSERVATION OFFICER RESPONSE
Correspondence
Not archived · Council Link
CONSERVATION OFFICER RESPONSE
Correspondence
Not archived · Council Link
DECISION
Decision
Not archived · Council Link
DESIGN AND ACCESS STATEMENT
Report
Not archived · Council Link
ECOLOGY OFFICER - CLAIRE WIGGS
Consultee Comment
Not archived · Council Link
ENGINEERING REPORT
Report
Not archived · Council Link
ENGINEERING REPORT DETAILS
Report
Not archived · Council Link
EOT AGREED
Correspondence
Not archived · Council Link
EOT AGREED
Correspondence
Not archived · Council Link
EOT REQUEST
Correspondence
Not archived · Council Link
EXISTING AND PROPOSED REFLECTED CEILING PLAN
Drawing
Not archived · Council Link
EXISTING AND PROPOSED ROOF PLANS
Drawing
Not archived · Council Link
EXISTING BACK ELEVATIONS
Drawing
Not archived · Council Link
EXISTING ELEVATIONS
Drawing
Not archived · Council Link
EXISTING GROUND AND FIRST FLOORS
Drawing
Not archived · Council Link
EXISTING LOFT PLAN
Drawing
Not archived · Council Link
EXISTING SECTIONS
Drawing
Not archived · Council Link
HERITAGE ASSET STATEMENT AND IMPACT ASSESSMENT
Report
Not archived · Council Link
HISTORIC ENGLAND RESPONSE
Consultee Comment
Not archived · Council Link
HISTORIC ENGLAND RESPONSE
Consultee Comment
Not archived · Council Link
HISTORIC ENVIRONMENT SERVICES COMMENTS
Consultee Comment
Not archived · Council Link
OFFICER REPORT
Report
Not archived · Council Link
PLANNING ADMIN CORRESPONDENCE
Correspondence
Not archived · Council Link
PROPOSED ELEVATIONS
Drawing
Not archived · Council Link
Drawing
Archived · Council Link
Drawing
Archived · Council Link
PROPOSED SECTIONS
Drawing
Not archived · Council Link
RESPONSE TO CONSERVATION OFFICER
Correspondence
Not archived · Council Link
RESPONSE TO CONSERVATION OFFICER
Correspondence
Not archived · Council Link
RESPONSE TO CONSERVATION OFFICER
Correspondence
Not archived · Council Link
Drawing
Archived · Council Link
Drawing
Archived · Council Link
SPAB COMMENTS
Consultee Comment
Not archived · Council Link
TECHNICAL SUPPORT OFFICER EMAIL
Correspondence
Not archived · Council Link

Take Action

Make your voice heard. Authorities need to hear from people who support new homes.

✉️ Write Email in Support View on Council Portal