← Back to Borough Council of King's Lynn & West Norfolk

Status

Application Permitted House extension
Received
24 Jan 2025
New dwellings
0

Full Proposal

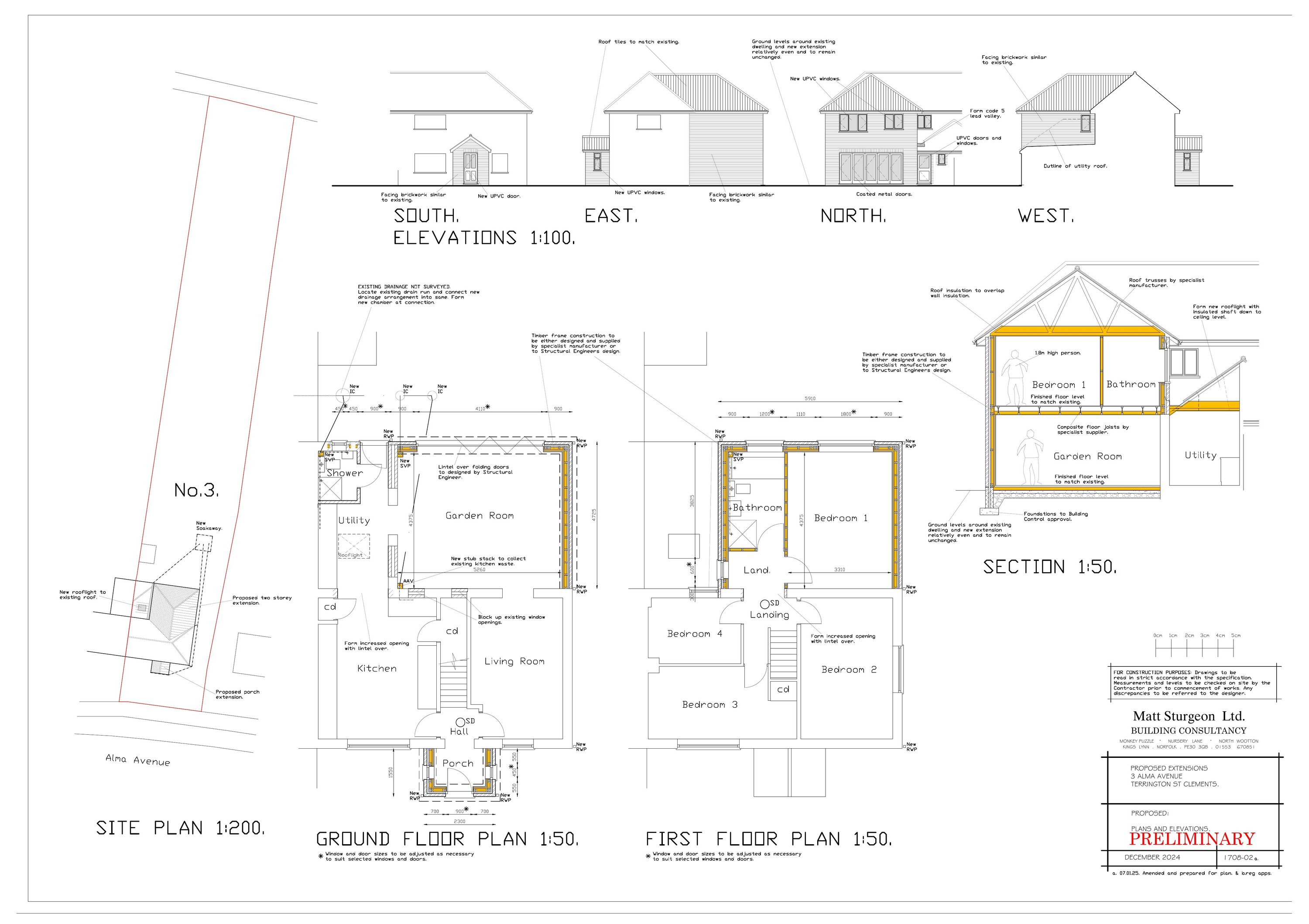
HOUSEHOLDER: Porch Extension and Rear Extension.

Documents

AGENT CORRESPONDENCE
Correspondence
Not archived · Council Link
APPLICATION FORM
Application Form
Not archived · Council Link
DECISION
Decision
Not archived · Council Link
EMERGENCY PLANNING - KEVIN KENT
Consultee Comment
Not archived · Council Link
EXISTING PLANS AND ELEVATIONS
Revised Drawing
Not archived · Council Link
EXISTING PLANS AND ELEVATIONS
Drawing
Not archived · Council Link
FLOOD RISK PROFORMA
Correspondence
Not archived · Council Link
OFFICER REPORT
Report
Not archived · Council Link
PARISH COUNCIL COMMENTS
Consultee Comment
Not archived · Council Link
Revised Drawing
Archived · Council Link
TECHNICAL SUPPORT OFFICER EMAIL
Correspondence
Not archived · Council Link

Take Action

Make your voice heard. Authorities need to hear from people who support new homes.

✉️ Write Email in Support View on Council Portal