← Back to Borough Council of King's Lynn & West Norfolk

Status

Application Permitted House extension
Received
10 Feb 2025
New dwellings
0

Full Proposal

HOUSEHOLDER -Extensions.

Documents

APPLICATION FORM
Application Form
Not archived · Council Link
APPLICATION FORM
Application Form
Not archived · Council Link
ARBORICULTURAL OFFICER - BRIAN OGDEN
Consultee Comment
Not archived · Council Link
DECISION
Decision
Not archived · Council Link
EXISTING FLOOR PLAN
Drawing
Not archived · Council Link
EXISTING FLOOR PLANS
Drawing
Not archived · Council Link
FEE CALCULATION
Correspondence
Not archived · Council Link
PARISH COUNCIL COMMENTS
Consultee Comment
Not archived · Council Link
PLANNING OFFICER REPORT
Report
Not archived · Council Link
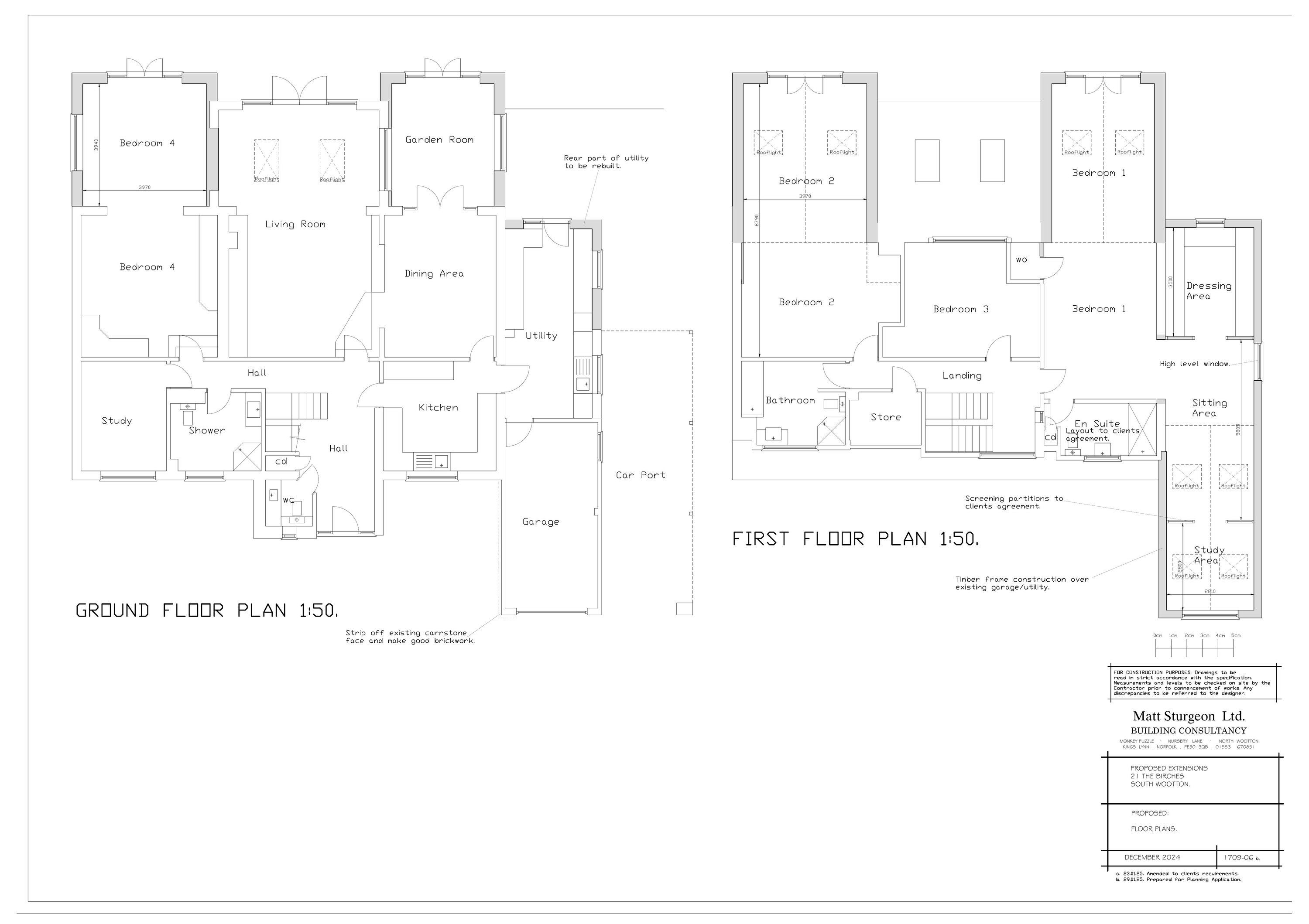
PROPOSED FLOOR PLAN
Drawing
Not archived · Council Link
Drawing
Archived · Council Link

Take Action

Make your voice heard. Authorities need to hear from people who support new homes.

✉️ Write Email in Support View on Council Portal