← Back to Borough Council of King's Lynn & West Norfolk
Status
Application Permitted
Change of use
Summary
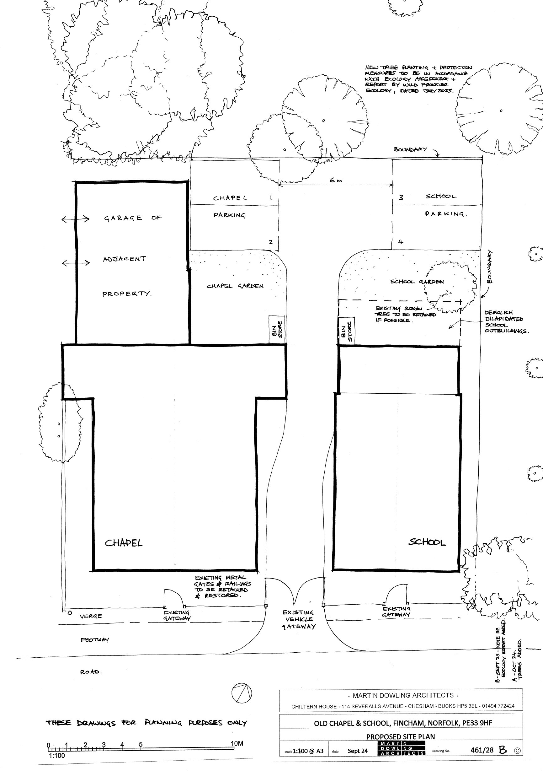
Conversion of disused chapel and school buildings into two self-contained dwellings.
Full Proposal
SELF BUILD: Conversion/change of use from disused methodist chapel and school buildings to two self contained dwellings.
Documents
AGENT CORRESPONDENCE
Correspondence
AGREEMENT TO PRE COMMENCEMENT CONDITIONS
Correspondence
APPLICATION FORM
Application Form
C1 FLOOD RISK
Correspondence
CHAPEL: EXISTING AND PROPOSED ROOF PLANS
Drawing
CHAPEL: EXISTING EAST ELEVATION
Drawing
CHAPEL: EXISTING GROUND PLAN
Drawing
CHAPEL: EXISTING NORTH ELEVATION
Drawing
CHAPEL: EXISTING SOUTH ELEVATION
Drawing
CHAPEL: EXISTING WEST ELEVATION
Drawing
CHAPEL: PROPOSED EAST ELEVATION
Drawing
CHAPEL: PROPOSED FIRST FLOOR PLAN
Drawing
CHAPEL: PROPOSED GROUND PLAN
Drawing
CHAPEL: PROPOSED NORTH ELEVATION
Drawing
CHAPEL: PROPOSED SOUTH ELEVATION
Drawing
CHAPEL: PROPOSED WEST ELEVATION
Drawing
CIL FORM ADDITIONAL INFORMATION
CIL Form
CIL LIABILITY NOTICE
CIL Correspondence
CONTAMINATED LAND SCREENING FORM
Correspondence
DESIGN AND ACCESS STATEMENT
Correspondence
ECOLOGY OFFICER - CLAIRE WIGGS
Consultee Comment
EMAIL ACK FORM 1
CIL Correspondence
EMAIL LIABILITY NOTICE
CIL Correspondence
ENVIRONMENTAL QUALITY - ASHLEY WHEELER
Consultee Comment
FINCHAM C1 FLOOD RISK
Correspondence
FINCHAM FLOOD RISK MAP
Correspondence
HISTORIC ENVIRONMENT OFFICER RESPONSE
Correspondence
INTERNAL DRAINAGE BOARD RESPONSE
Correspondence
INVALID LETTER (NOT INCORRECT FEE)
Invalid Letter
NCC HIGHWAYS CORRESPONDENCE
Consultee Comment
PARISH COUNCIL COMMENTS
Consultee Comment
PLANNING ADMIN CORRESPONDENCE
Correspondence
PLANNING ADMIN CORRESPONDENCE
Correspondence
REQUEST TO CONSULT
Correspondence
SCHOOL: EXISTING AND PROPOSED ROOF PLANS
Drawing
SCHOOL: EXISTING EAST ELEVATION
Drawing
SCHOOL: EXISTING GROUND PLAN
Drawing
SCHOOL: EXISTING NORTH ELEVATION
Drawing
SCHOOL: EXISTING SOUTH ELEVATION
Drawing
SCHOOL: EXISTING WEST ELEVATION
Drawing
SCHOOL: PROPOSED EAST ELEVATION
Drawing
SCHOOL: PROPOSED FIRST FLOOR PLAN
Drawing
SCHOOL: PROPOSED GROUND PLAN
Drawing
SCHOOL: PROPOSED NORTH ELEVATION
Drawing
SCHOOL: PROPOSED SOUTH ELEVATION
Drawing
SCHOOL: PROPOSED WEST ELEVATION
Drawing
SECTION 111 FORM
Correspondence
Take Action
Make your voice heard. Authorities need to hear from people who support new homes.