← Back to Borough Council of King's Lynn & West Norfolk

Status

Application Permitted Change of use
Received
03 Oct 2025
New dwellings
1

Summary

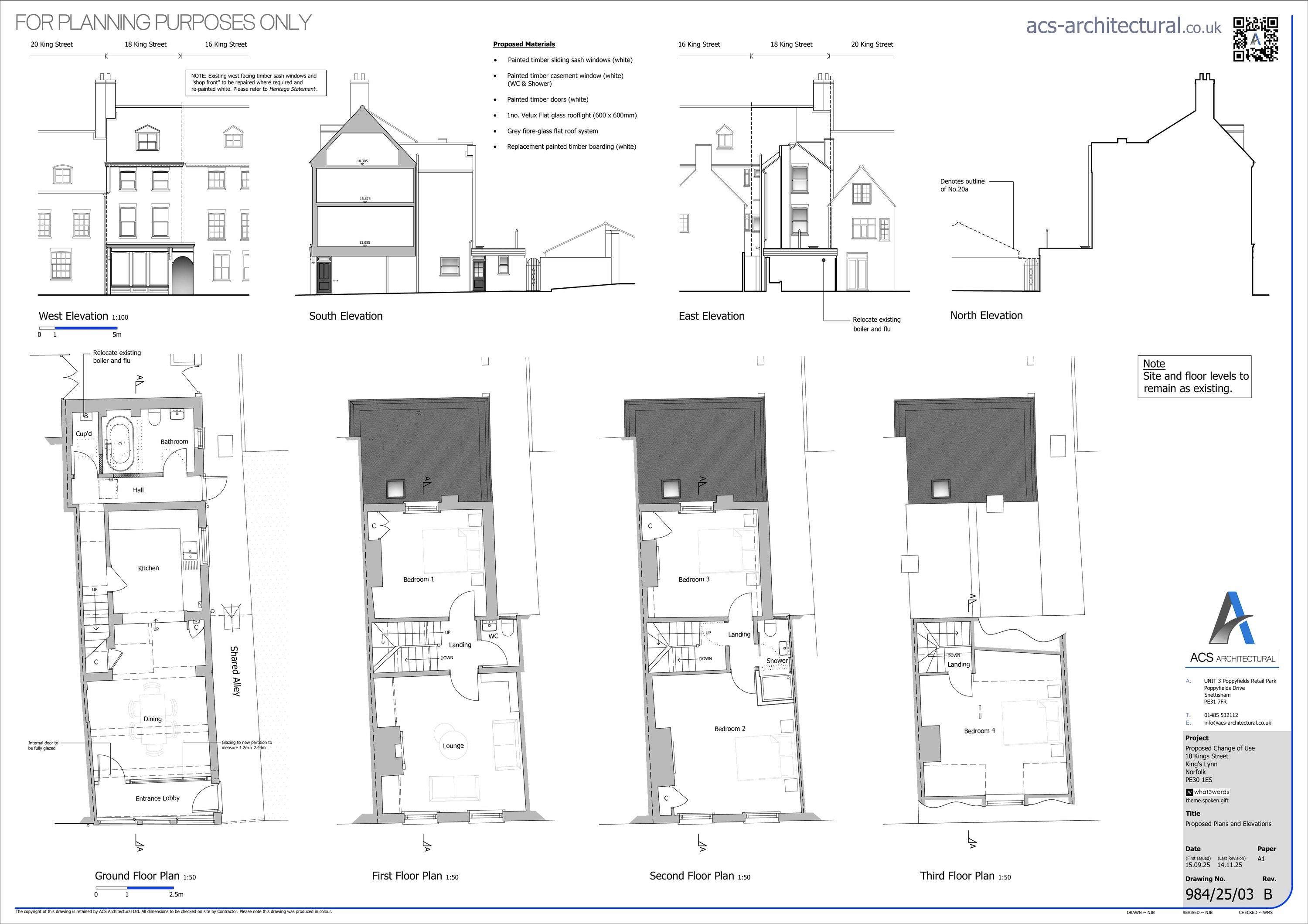
Proposed change of use from offices (Class E) to a single town house dwelling (Class C3).

Full Proposal

Proposed Change of Use of property from unoccupied offices (Class E) to Town House Dwelling (Class C3).

Documents

AGENT CORRESPONDENCE
Correspondence
Not archived · Council Link
AGENT CORRESPONDENCE
Correspondence
Not archived · Council Link
APPLICATION FORM
Application Form
Not archived · Council Link
ARCHITECT EMAIL
Correspondence
Not archived · Council Link
ASSISTANT CONSERVATION OFFICER CORRESPONDENCE
Correspondence
Not archived · Council Link
ASSISTANT CONSERVATION OFFICER JANE FORDER
Consultee Comment
Not archived · Council Link
CONSERVATION OFFICER CORRESPONDENCE
Correspondence
Not archived · Council Link
DECISION
Decision
Not archived · Council Link
DESIGN, ACCESS & HERITAGE
Report
Not archived · Council Link
DESIGN, ACCESS AND HERITAGE STATEMENT
Correspondence
Not archived · Council Link
EMERGENCY PLANNING - KEVIN KENT
Consultee Comment
Not archived · Council Link
ENV AGENCY EMAIL RESPONSE
Consultee Comment
Not archived · Council Link
ENV AGENCY RESPONSE
Consultee Comment
Not archived · Council Link
ENVIRONMENTAL QUALITY - ASHLEY WHEELER
Consultee Comment
Not archived · Council Link
EXISTING PLANS AND ELEVATIONS
Drawing
Not archived · Council Link
Revised Drawing
Archived · Council Link
FLOOD RISK ASSESSMENT
Report
Not archived · Council Link
FLOOD RISK PROFORMA
Correspondence
Not archived · Council Link
HISTORIC ENVIRONMENT SERVICES COMMENTS
Consultee Comment
Not archived · Council Link
LOCATION PLAN
Drawing
Not archived · Council Link
NCC HIGHWAYS CORRESPONDENCE
Consultee Comment
Not archived · Council Link
OFFICER CORRESPONDENCE
Correspondence
Not archived · Council Link
OFFICER CORRESPONDENCE
Correspondence
Not archived · Council Link
OFFICER REPORT
Report
Not archived · Council Link
PLANNING ADMIN CORRESPONDENCE
Correspondence
Not archived · Council Link
Revised Drawing
Archived · Council Link
REQUEST TO CONSULT NORFOLK HISTORIC ENVIRONMENT SERVICE
Correspondence
Not archived · Council Link
SCREENING ASSESSMENT FORM
Correspondence
Not archived · Council Link

Take Action

Make your voice heard. Authorities need to hear from people who support new homes.

✉️ Write Email in Support View on Council Portal