← Back to Borough Council of King's Lynn & West Norfolk

Status

Application Permitted Listed building
Received
03 Oct 2025
New dwellings
0

Summary

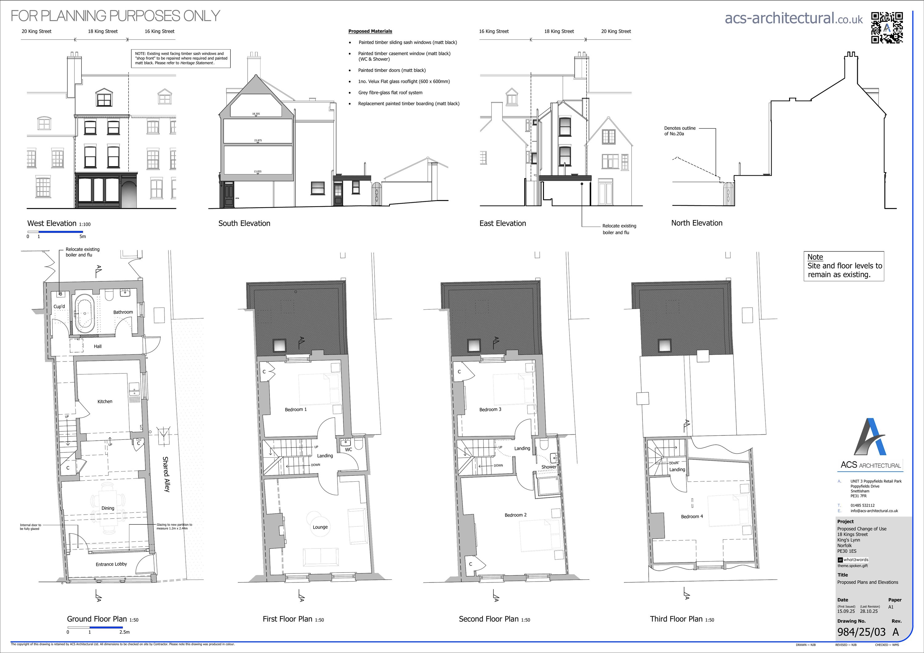
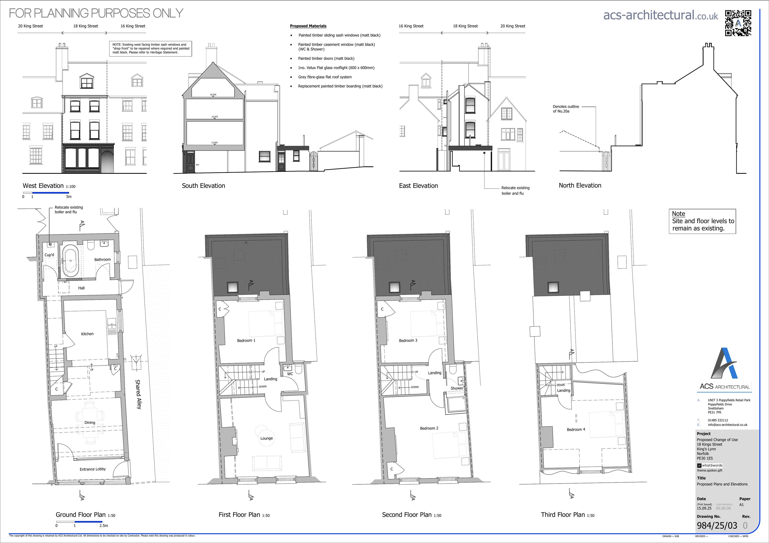
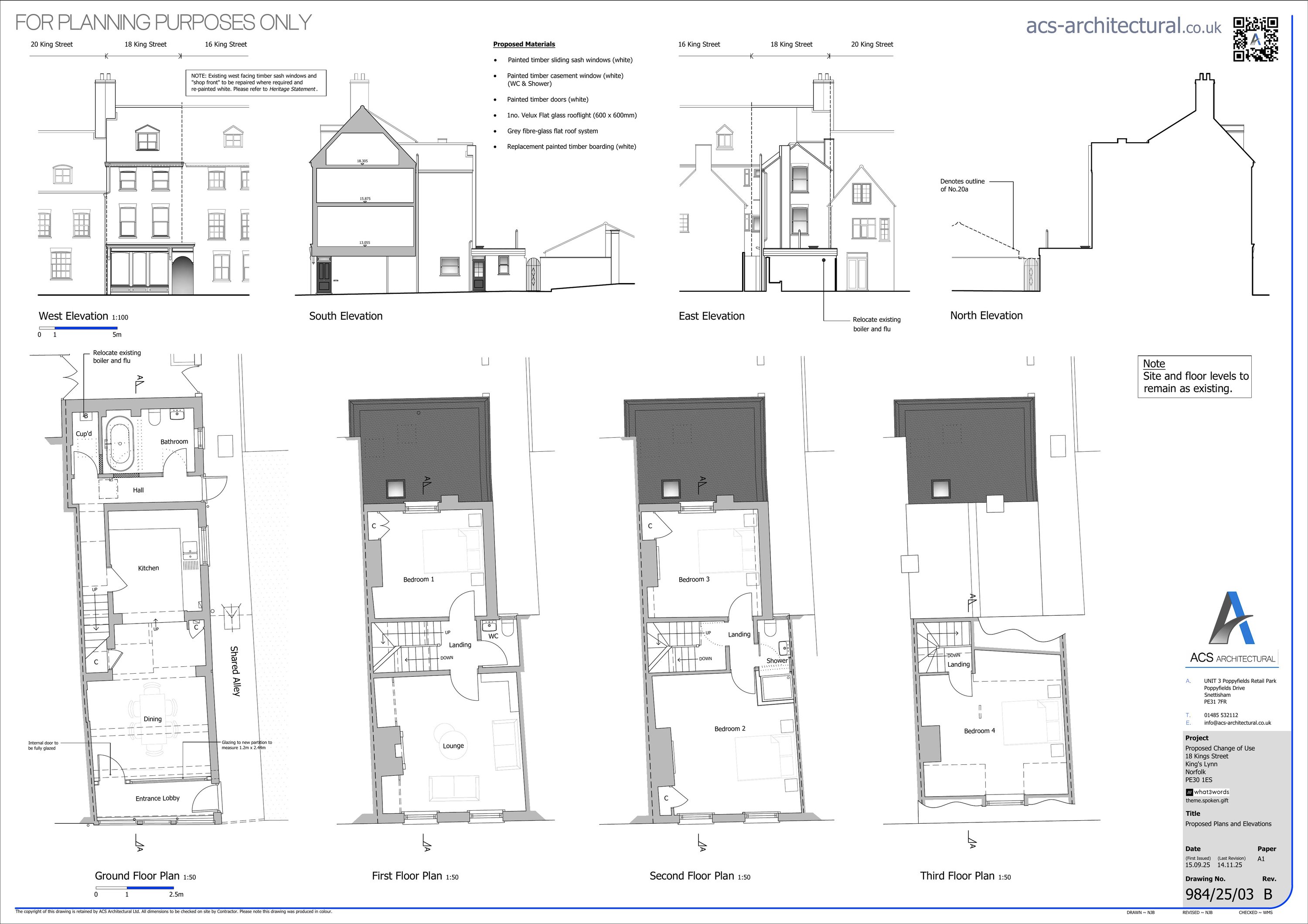
Change of use from unoccupied offices (Class E) to a single town house dwelling (Class C3).

Full Proposal

Listed Building Application: Proposed Change of Use of property from unoccupied offices (Class E) to Town House Dwelling (Class C3).

Documents

AGENT CORRESPONDENCE
Correspondence
Not archived · Council Link
AGENT CORRESPONDENCE
Correspondence
Not archived · Council Link
AGENT CORRESPONDENCE
Correspondence
Not archived · Council Link
APPLICATION FORM
Application Form
Not archived · Council Link
ASSISTANT CONSERVATION OFFICER CORRESPONDENCE
Correspondence
Not archived · Council Link
CONSERVATION OFFICER CORRESPONDENCE
Correspondence
Not archived · Council Link
DECISION
Decision
Not archived · Council Link
DESIGN, ACCESS & HERITAGE
Report
Not archived · Council Link
DESIGN, ACCESS AND HERITAGE STATEMENT
Correspondence
Not archived · Council Link
EXISTING PLANS AND ELEVATIONS
Drawing
Not archived · Council Link
FLOOD RISK ASSESSMENT
Report
Not archived · Council Link
FLOOD RISK PROFORMA
Correspondence
Not archived · Council Link
LOCATION PLAN
Drawing
Not archived · Council Link
OFFICER CORRESPONDENCE
Correspondence
Not archived · Council Link
OFFICER REPORT
Report
Not archived · Council Link
PLANNING ADMIN CORRESPONDENCE
Correspondence
Not archived · Council Link
SCREENING ASSESSMENT FORM
Correspondence
Not archived · Council Link

Take Action

Make your voice heard. Authorities need to hear from people who support new homes.

✉️ Write Email in Support View on Council Portal