← Back to Borough Council of King's Lynn & West Norfolk

Status

Awaiting decision Change of use
Received
13 Oct 2025
New dwellings
2

Full Proposal

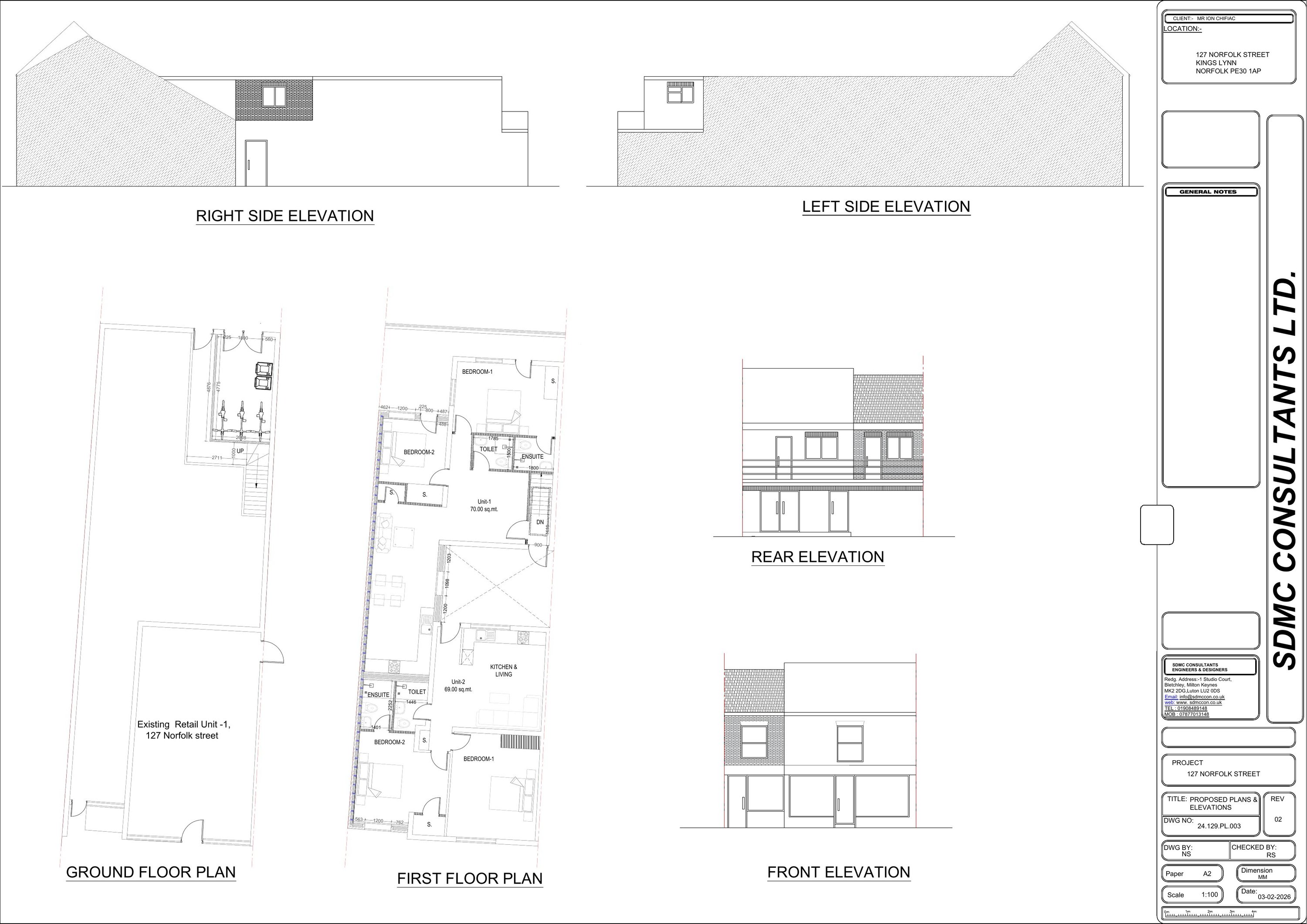
First floor extension and conversion of vacant upper floor office space (Class E) to create two two-bedroom (Class C3) self contained flats with associated refuse storage area

Documents

AGENT CORRESPONDENCE
Correspondence
Not archived · Council Link
AGENT CORRESPONDENCE
Correspondence
Not archived · Council Link
APPLICATION FORM
Application Form
Not archived · Council Link
APPLICATION FORM
Application Form
Not archived · Council Link
ASSISTANT CONSERVATION OFFICER JANE OSLER
Consultee Comment
Not archived · Council Link
DESIGN AND ACCESS STATEMENT
Correspondence
Not archived · Council Link
EMAIL - NEXA LAW
Correspondence
Not archived · Council Link
EMERGENCY PLANNING - KEVIN KENT
Consultee Comment
Not archived · Council Link
EXISTING AND PROPOSED ROOF PLAN
Drawing
Not archived · Council Link
EXISTING PLANS AND ELEVATIONS
Drawing
Not archived · Council Link
FLOOD RISK ASSESSMENT
Report
Not archived · Council Link
FORM 1 CIL ADDITIONAL INFORMATION
CIL Form
Not archived · Council Link
HOUSING DEVELOPMENT OFFICER - CLARE COBLEY
Consultee Comment
Not archived · Council Link
INVALID LETTER (NOT INCORRECT FEE)
Invalid Letter
Not archived · Council Link
LETTER TO BCKLWN
Correspondence
Not archived · Council Link
LETTER TO BCKLWN
Correspondence
Not archived · Council Link
LETTER TO MARCO MTS ENTERPRISE LTD
Correspondence
Not archived · Council Link
Drawing
Archived · Council Link
NCC HIGHWAYS CORRESPONDENCE
Consultee Comment
Not archived · Council Link
OBJECTION ARYA PROPERTIES
Public Comment
Not archived · Council Link
PHOTO 1
Photo
Not archived · Council Link
PHOTO 2
Photo
Not archived · Council Link
PHOTO 3
Photo
Not archived · Council Link
PHOTO 4
Photo
Not archived · Council Link
PHOTO 5
Photo
Not archived · Council Link
PHOTO 6
Photo
Not archived · Council Link
PLANNING ADMIN CORRESPONDENCE
Correspondence
Not archived · Council Link
PLANNING ADMIN EMAIL
Correspondence
Not archived · Council Link
PLANNING ADMIN EMAIL
Correspondence
Not archived · Council Link
PLANNING OFFICER EMAIL
Correspondence
Not archived · Council Link
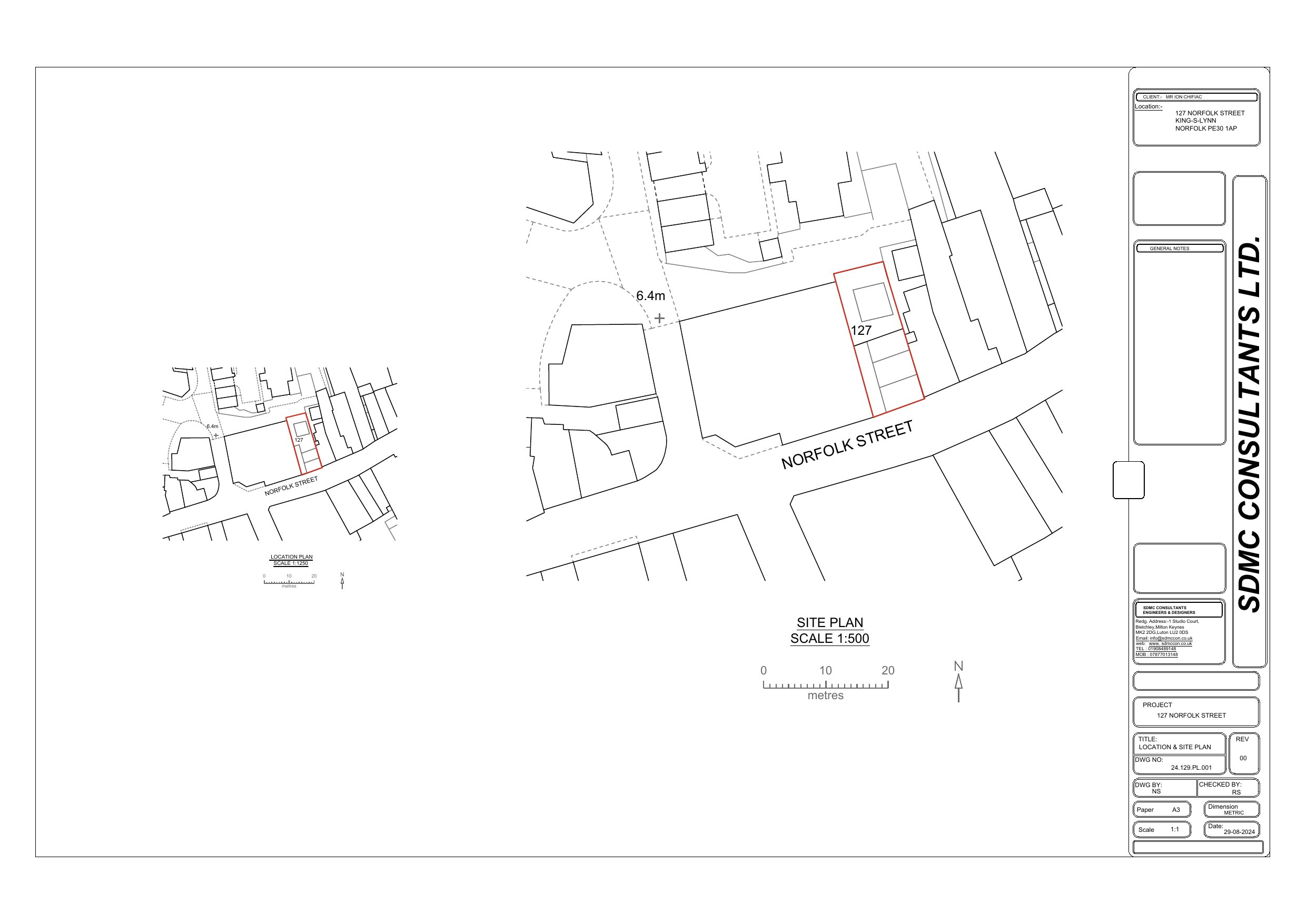
PROPOSED LOCATION PLAN
Drawing
Not archived · Council Link
Revised Drawing
Archived · Council Link
REAR ELEVATION
Drawing
Not archived · Council Link
SCREENING ASSESSMENT FORM
Correspondence
Not archived · Council Link
TECH SUPPORT OFFICER
Correspondence
Not archived · Council Link

Take Action

Make your voice heard. Authorities need to hear from people who support new homes.

✉️ Write Email in Support View on Council Portal