← Back to Borough Council of King's Lynn & West Norfolk

Status

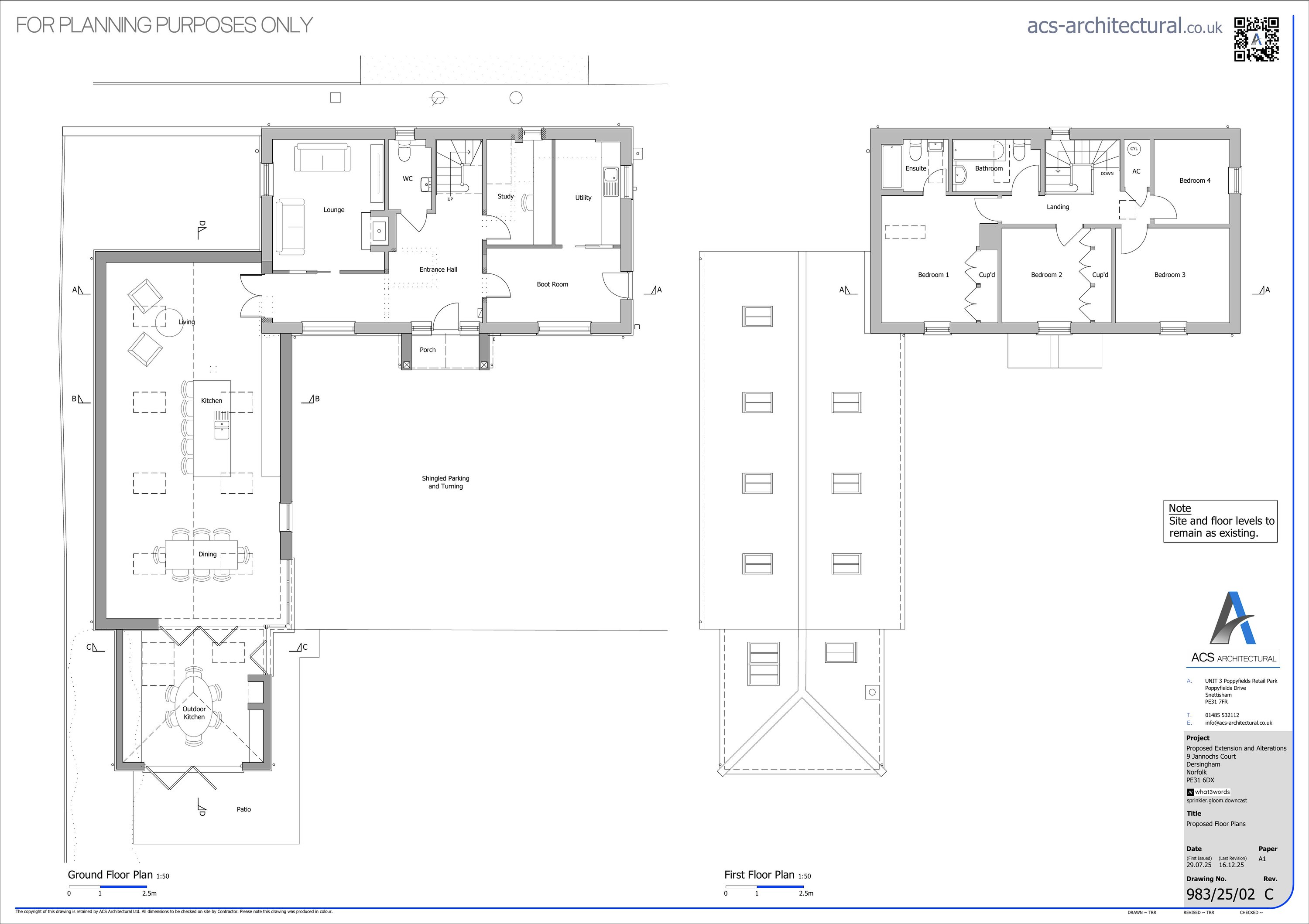
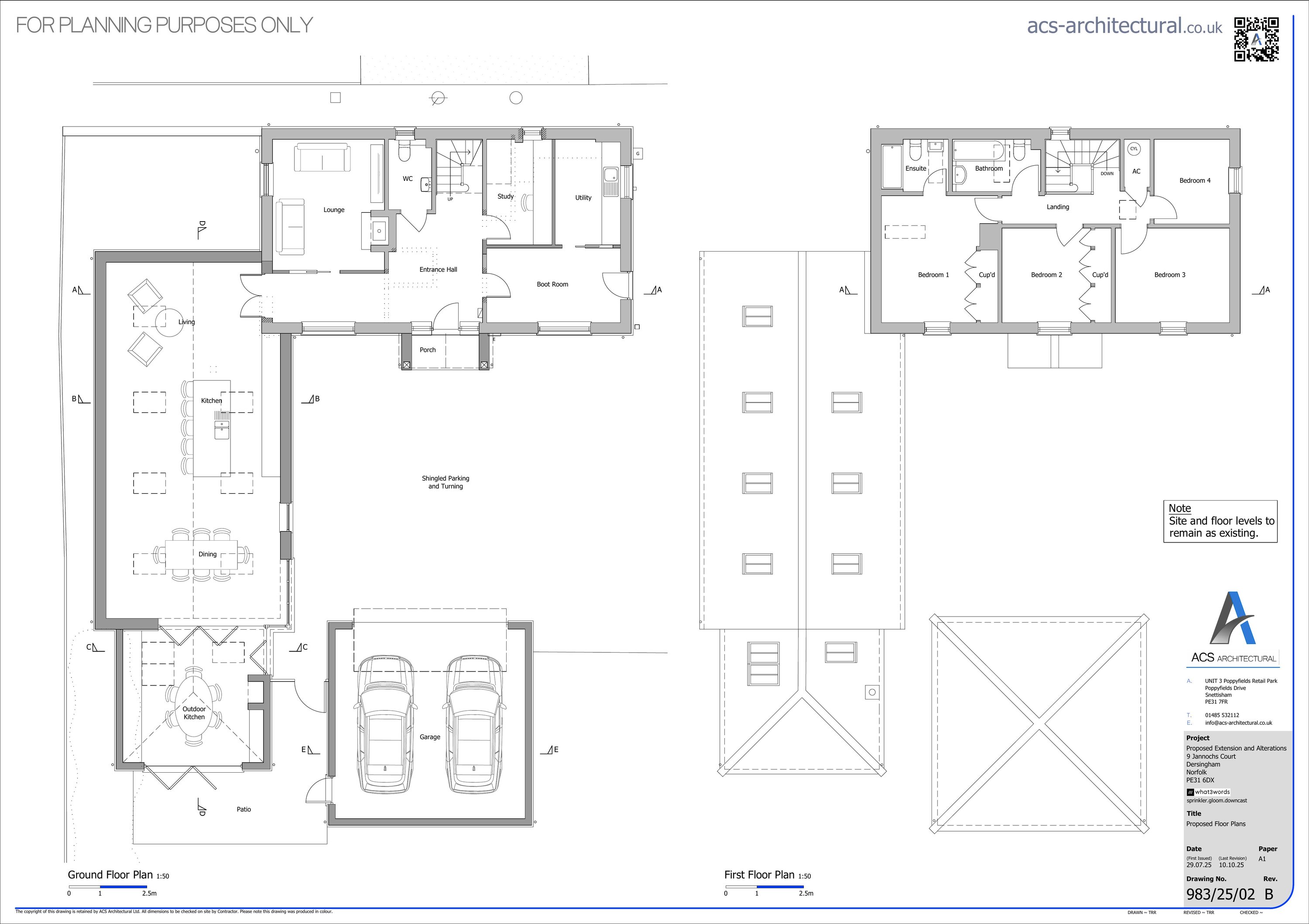
Application Permitted House extension
Received
14 Oct 2025
New dwellings
0

Full Proposal

HOUSEHOLDER- Proposed single storey extensions and alterations incorporating outdoor kitchen and covered porch.

Documents

AGENT CORRESPONDENCE
Correspondence
Not archived · Council Link
APPLICATION FORM
Application Form
Not archived · Council Link
ARCHITECT EMAIL
Correspondence
Not archived · Council Link
ASSISTANT CONSERVATION OFFICER JANE OSLER
Consultee Comment
Not archived · Council Link
DECISION
Decision
Not archived · Council Link
EXISTING PLANS, ELEVATIONS AND SECTIONS
Drawing
Not archived · Council Link
INVALID LETTER (NOT INCORRECT FEE)
Invalid Letter
Not archived · Council Link
LOCATION PLAN
Drawing
Not archived · Council Link
OFFICER REPORT
Report
Not archived · Council Link
PARISH COUNCIL COMMENTS
Consultee Comment
Not archived · Council Link
PROPOSED ELEVATIONS
Revised Drawing
Not archived · Council Link
PROPOSED ELEVATIONS AND SECTION
Drawing
Not archived · Council Link
Drawing
Archived · Council Link
Revised Drawing
Archived · Council Link
PROPOSED SECTIONS
Drawing
Not archived · Council Link
PROPOSED SECTIONS
Revised Drawing
Not archived · Council Link
Revised Drawing
Archived · Council Link
Drawing
Archived · Council Link
SFRA PROFORMA
Correspondence
Not archived · Council Link
TREE SURVEY SCHEDULE
Correspondence
Not archived · Council Link

Take Action

Make your voice heard. Authorities need to hear from people who support new homes.

✉️ Write Email in Support View on Council Portal