← Back to Borough Council of King's Lynn & West Norfolk
25/01715/F
Borough Council of King's Lynn & West Norfolk · IDOX
Status
Application Permitted
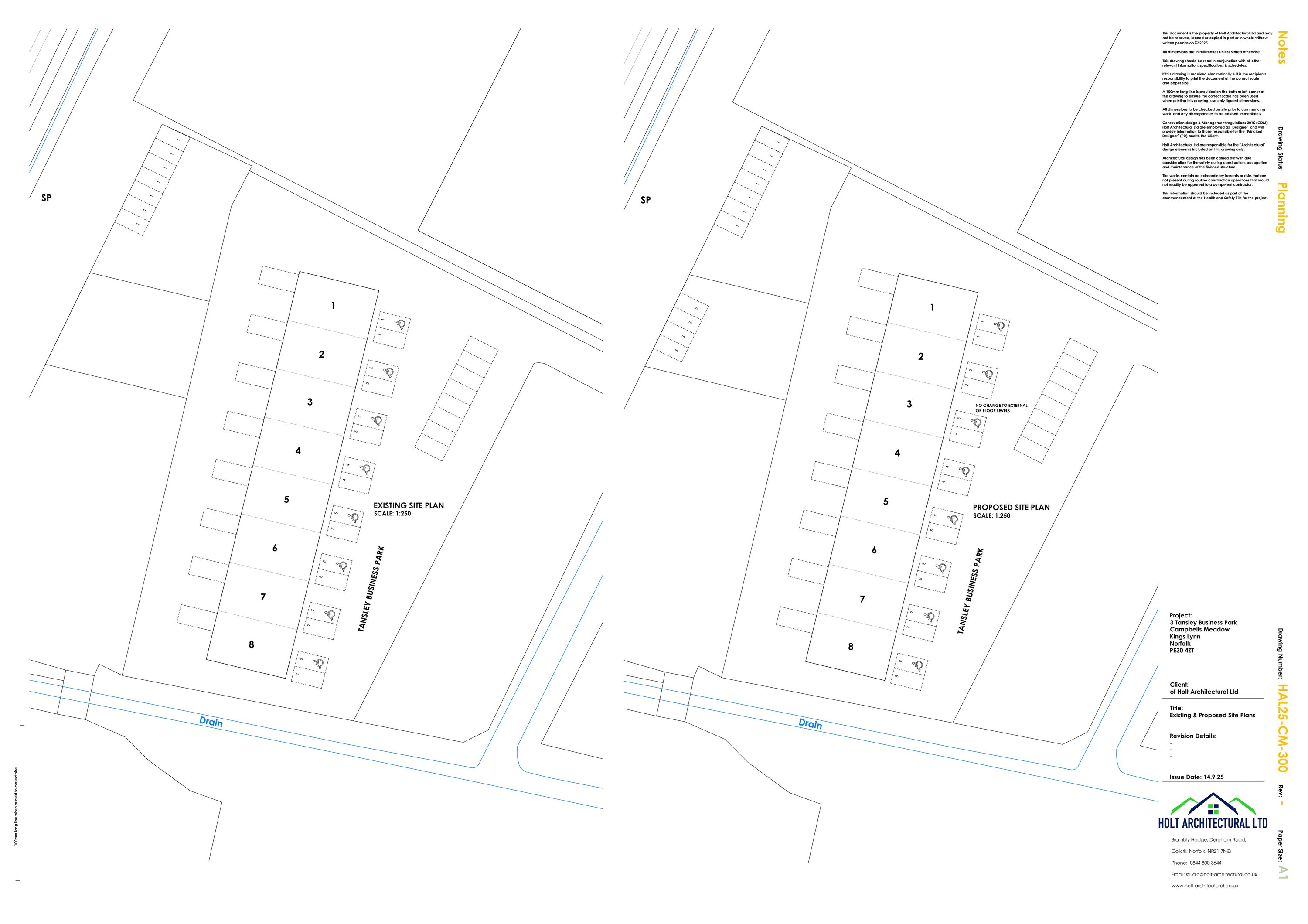
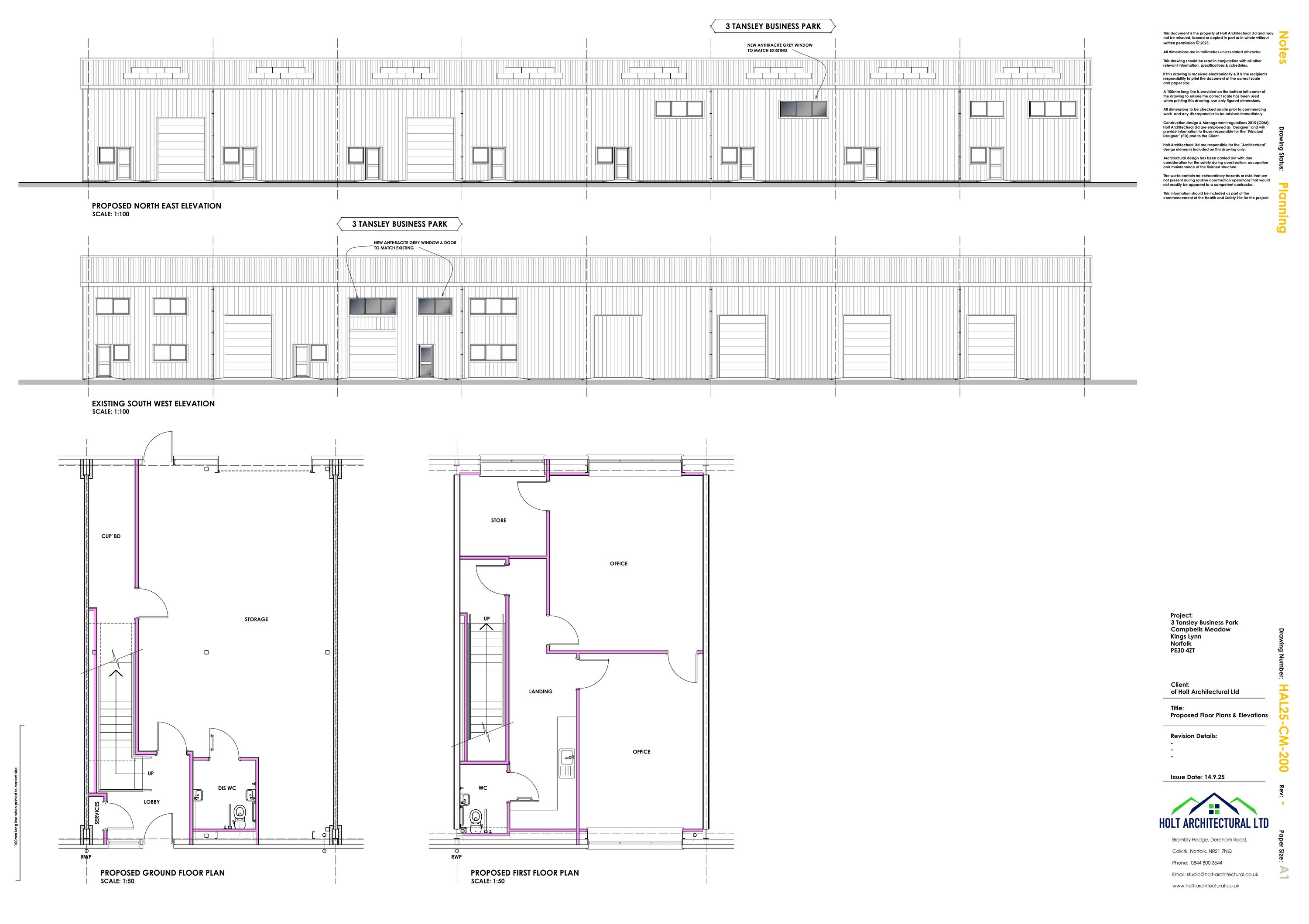
Change of use
Received
17 Oct 2025
New dwellings
0
Full Proposal
Change of use of first floor storage area (B2 use) to offices (use class E (excluding Ea)) including additional parking, windows and door.
Documents
Take Action
Make your voice heard. Authorities need to hear from people who support new homes.