← Back to Borough Council of King's Lynn & West Norfolk
Status
Application Permitted
Commercial
Summary
Conversion and extension creating convenience store, café, takeaway and five new dwellings.
Full Proposal
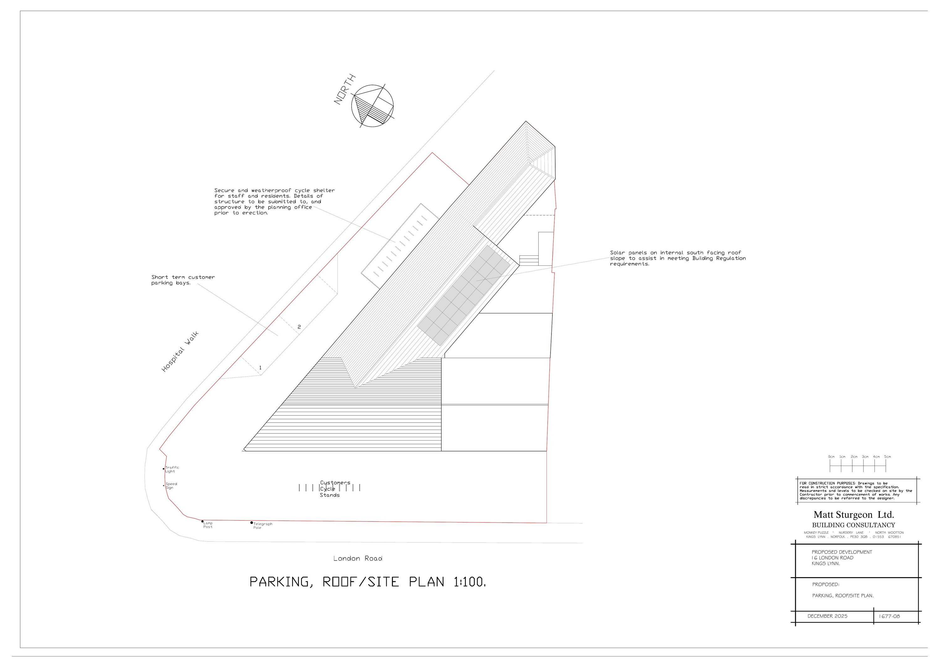
Conversion and Extension to form Convenience Store, Cafe, Food Takeaway and five new Dwellings
Documents
AGENT CORRESPONDENCE
Correspondence
AGENT CORRESPONDENCE
Correspondence
AGENT CORRESPONDENCE
Correspondence
AGENT CORRESPONDENCE
Correspondence
AGENT EMAIL
Correspondence
AGENT EMAIL
Correspondence
ANGLIAN WATER EMAIL
Correspondence
ANGLIAN WATER EMAIL
Correspondence
ANGLIAN WATER RESPONSE
Correspondence
APPENDIX 2 SCREENING ASSESSMENT
Correspondence
APPLICATION FORM
Application Form
ASSISTANT CONSERVATION OFFICER CORRESPONDENCE
Consultee Comment
ASSISTANT CONSERVATION OFFICER JANE OSLER
Consultee Comment
CIL FORM 1 ADDITIONAL INFO
CIL Form
CLLR HENEGHAN CORRESPONDENCE
Correspondence
DESIGN AND ACCESS STATEMENT
Correspondence
EMERGENCY PLANNING - KEVIN KENT
Consultee Comment
ENVIRONMENT AGENCY COMMENTS
Consultee Comment
ENVIRONMENTAL QUALITY - ASHLEY WHEELER
Consultee Comment
EOT AGREED
Correspondence
EOT AGREED
Correspondence
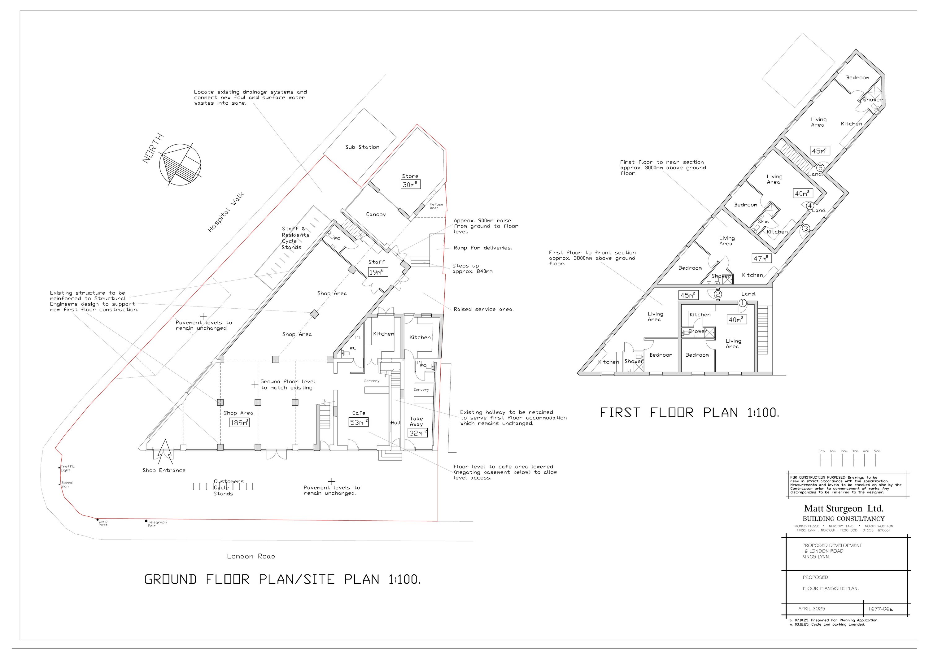
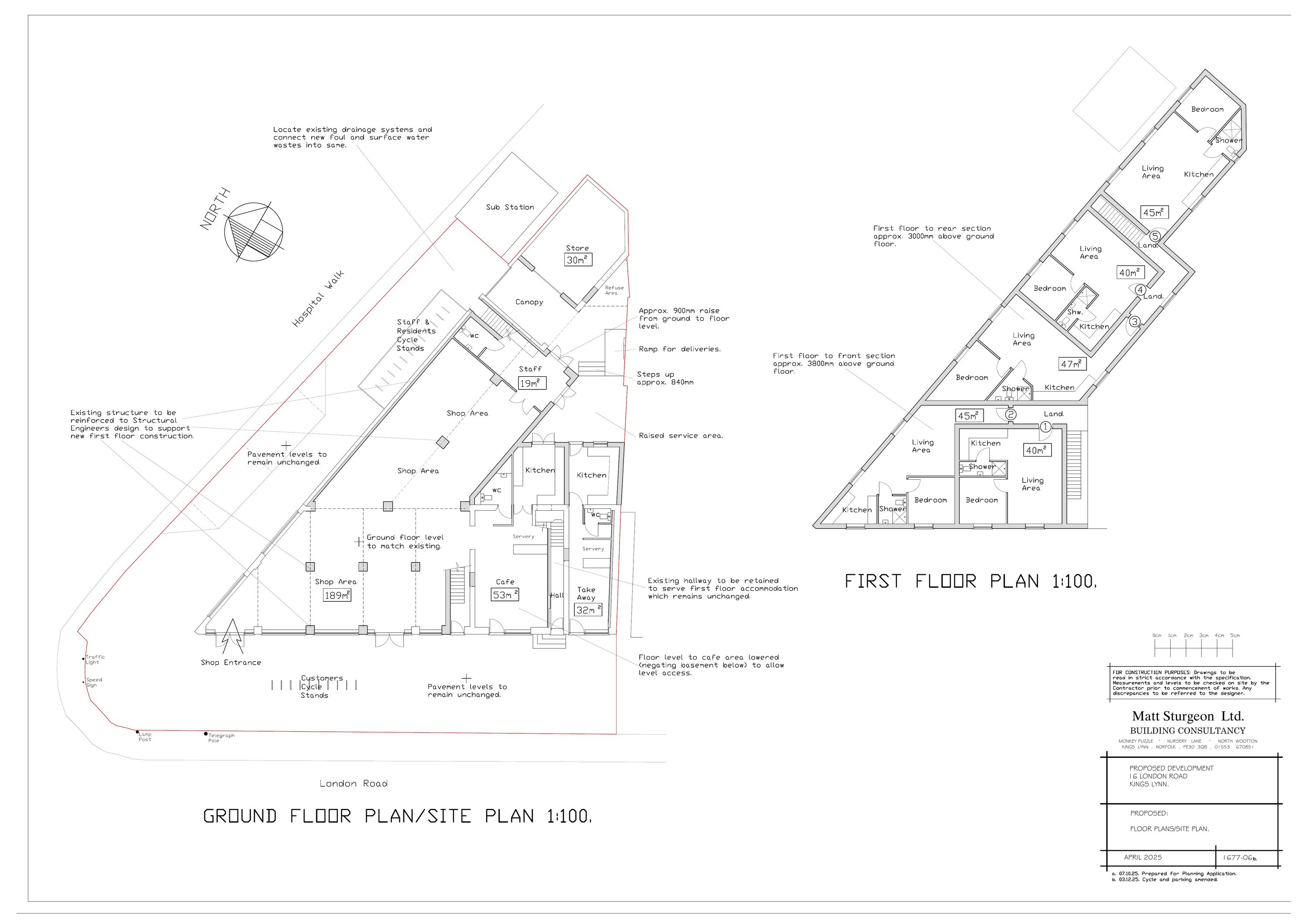
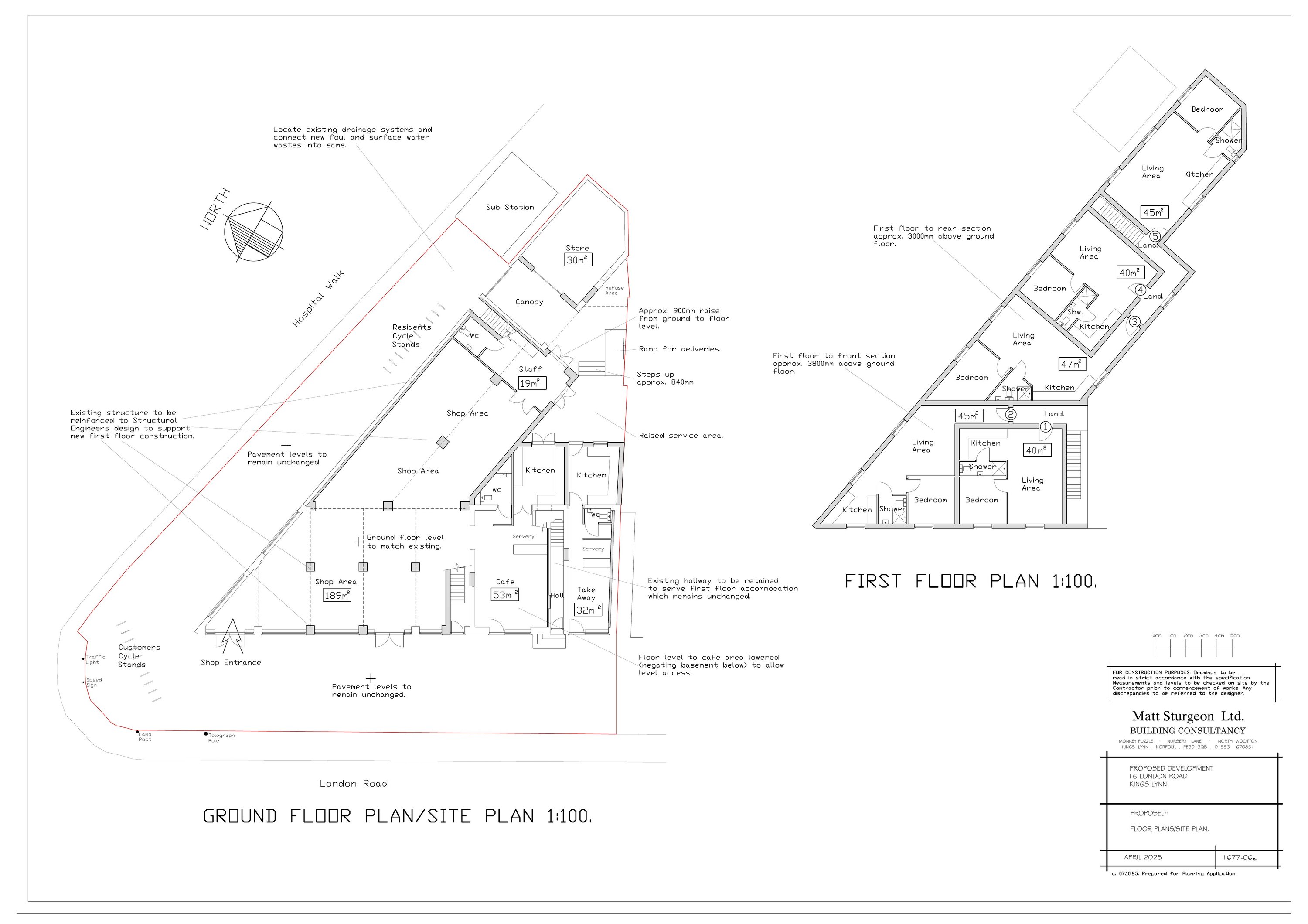
EXISTING ELEVATION AND SECTION
Drawing
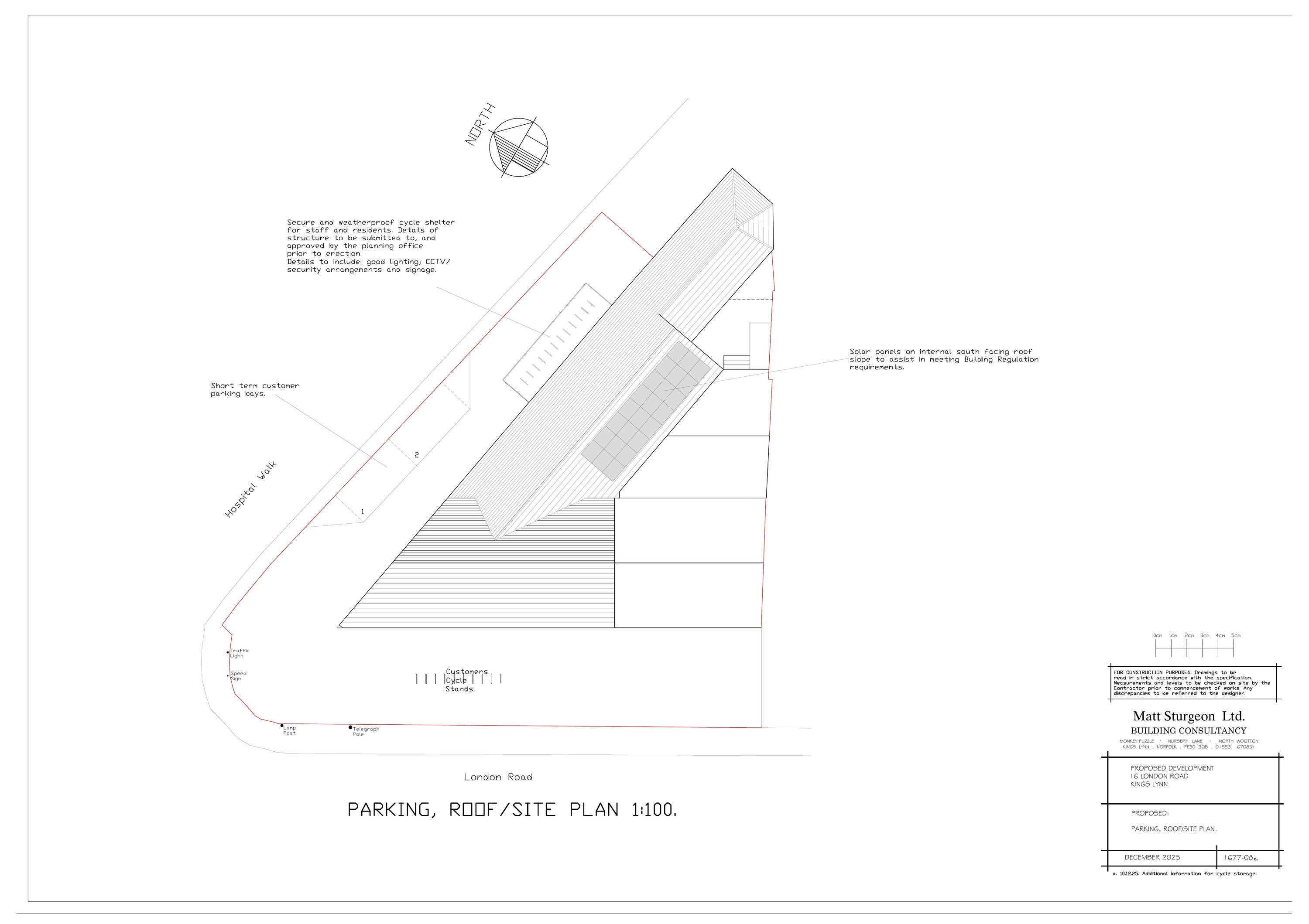
EXISTING FLOOR SITE AND LOCATON
Drawing
FLOOD RISK ASSESSMENT
Correspondence
HISTORIC ENVIRONMENT SERVICES COMMENTS
Consultee Comment
HISTORIC ENVIRONMENT SERVICES COMMENTS
Consultee Comment
INVALID LETTER (NOT INCORRECT FEE)
Invalid Letter
KINGS LYNN CIVIC SOCIETY COMMENTS
Consultee Comment
NCC COMMENTS
Consultee Comment
NCC HIGHWAYS CORRESPONDENCE
Consultee Comment
NCC HIGHWAYS CORRESPONDENCE
Correspondence
NORFOLK CONSTABULARY COMMENTS
Consultee Comment
PROPOSED ELEVATION
Drawing
PROPOSED: ELEVATIONS
Drawing
SECTION 111 FORM
Correspondence
Take Action
Make your voice heard. Authorities need to hear from people who support new homes.