← Back to Borough Council of King's Lynn & West Norfolk

Status

Application Permitted House extension
Received
05 Nov 2025
New dwellings
0

Full Proposal

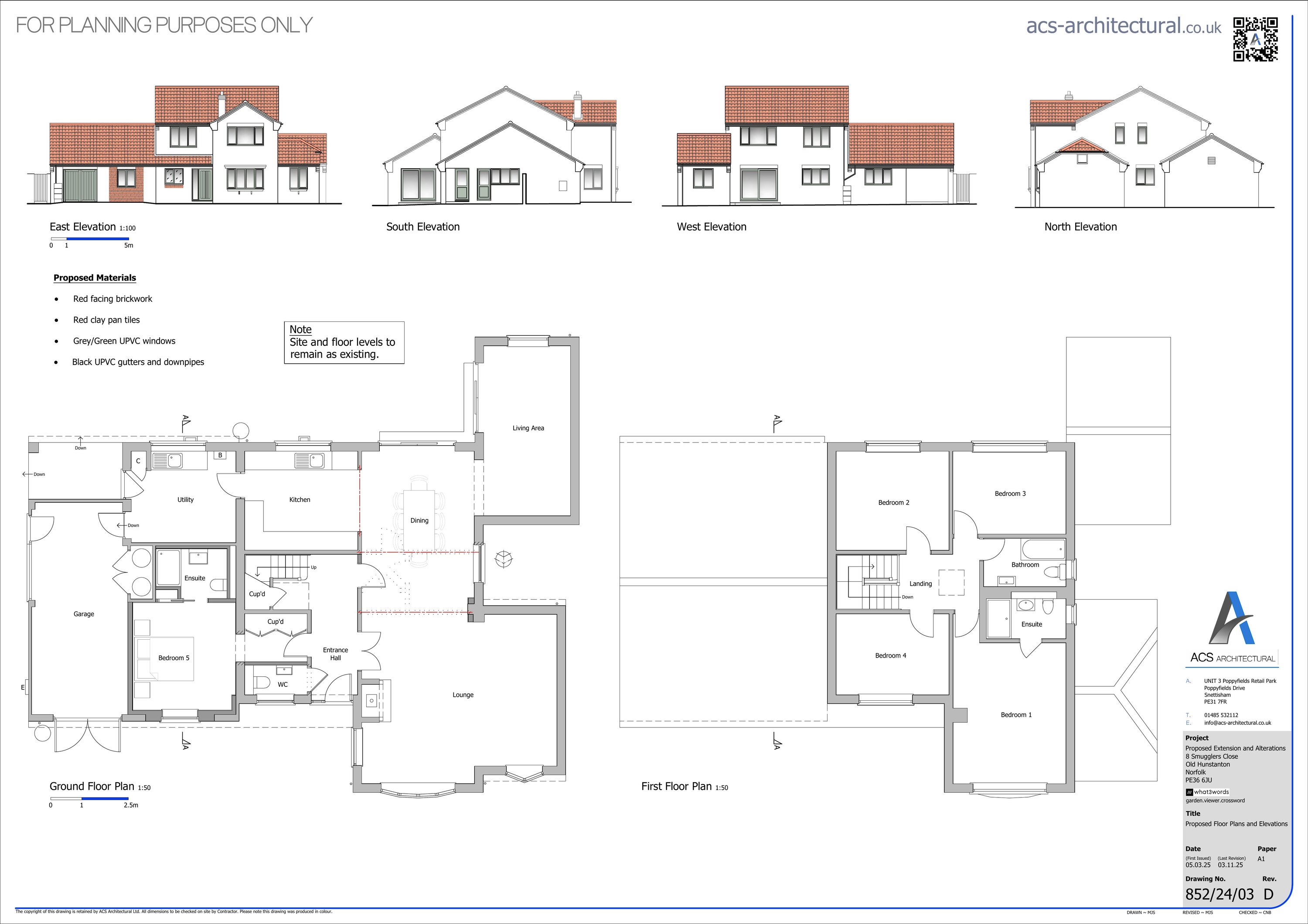
HOUSEHOLDER- Proposed part Garage conversion and internal alterations. Replacement of roof tiles, windows and doors.

Documents

APPLICATION FORM
Application Form
Not archived · Council Link
DECISION
Decision
Not archived · Council Link
EXISTING FLOOR PLANS
Drawing
Not archived · Council Link
LOCATION PLAN
Drawing
Not archived · Council Link
OFFICER REPORT
Report
Not archived · Council Link
OLD HUNSTONTON PARISH COUNCIL
Consultee Comment
Not archived · Council Link
PROW CORRESPONDENCE
Consultee Comment
Not archived · Council Link
SFRA PROFORMA
Correspondence
Not archived · Council Link
TECH SUPPORT OFFICER EMAIL
Correspondence
Not archived · Council Link

Take Action

Make your voice heard. Authorities need to hear from people who support new homes.

✉️ Write Email in Support View on Council Portal