← Back to Kingston upon Thames

Status

Pending Decision Change of use
Received
09 Sep 2025
New dwellings
0

Full Proposal

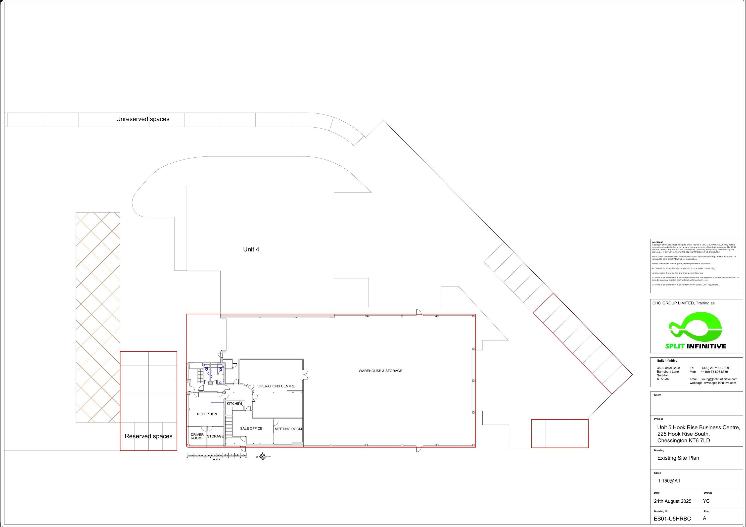
Change of use of ancillary mezzanine storage/office to minicab office, with no internal or external alterations.

Documents

Application Form
Application Form
Not archived · Council Link
Biodiversity Checklist
Supporting Documents
Not archived · Council Link
Existing Block Plan
Drawing
Not archived · Council Link
Existing First Floor Plan
Drawing
Not archived · Council Link
Existing Ground Floor Plan
Drawing
Not archived · Council Link
Drawing
Archived · Council Link
Fire Risk Assessment
Supporting Documents
Not archived · Council Link
Location Plan
Drawing
Not archived · Council Link
Planning Statement
Supporting Documents
Not archived · Council Link
Proposed Block Plan
Drawing
Not archived · Council Link
Proposed First Floor Plan
Drawing
Not archived · Council Link
Proposed Ground Floor Plan
Drawing
Not archived · Council Link
Drawing
Archived · Council Link
Validation Checklist
Supporting Documents
Not archived · Council Link

Take Action

Make your voice heard. Authorities need to hear from people who support new homes.

✉️ Write Email in Support View on Council Portal