← Back to Knowsley Council

Status

Awaiting decision Change of use
Received
n/a
New dwellings
3

Summary

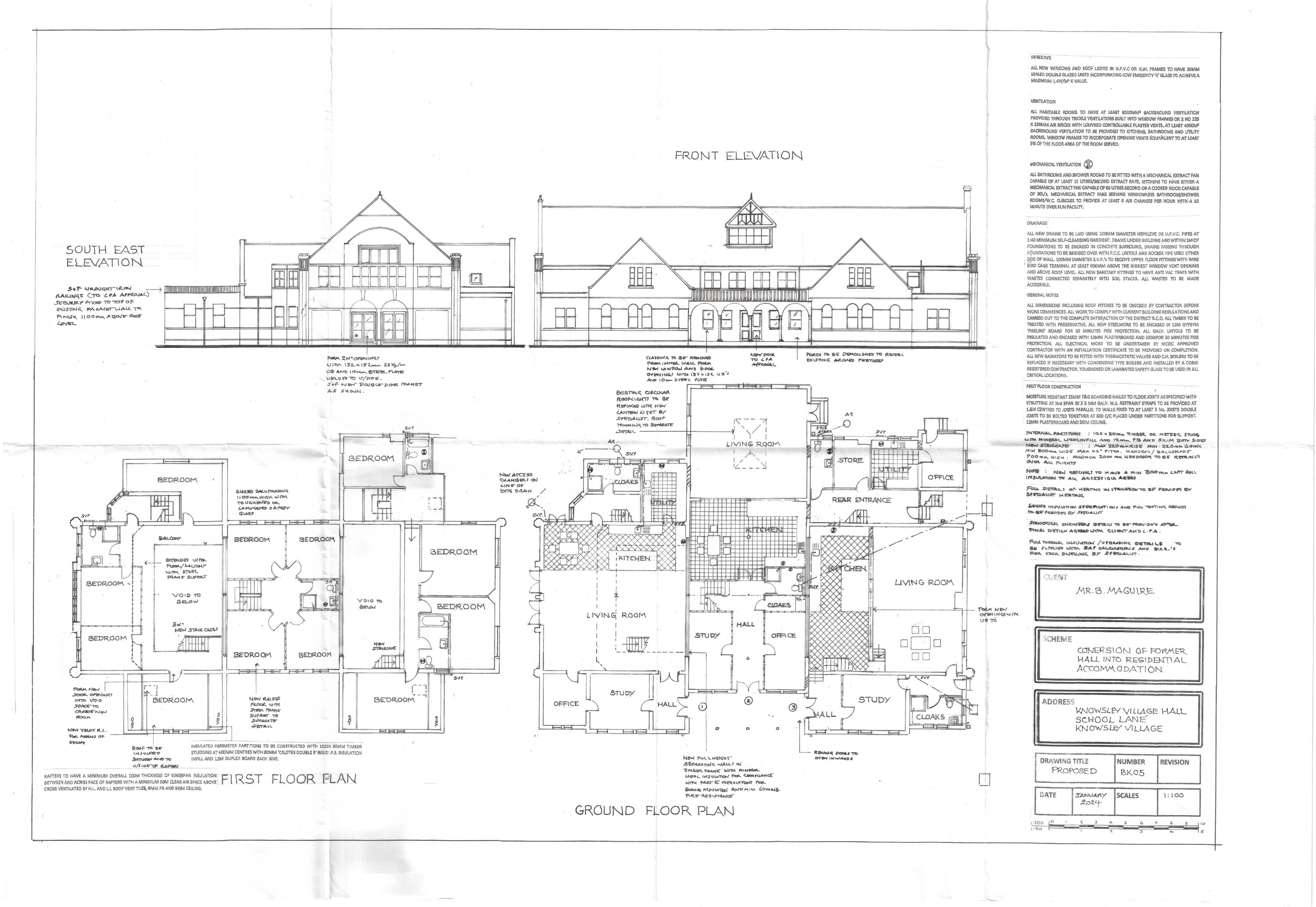
Convert village hall and caretaker flat into three dwellings with parking and external works.

Full Proposal

CHANGE OF USE FROM VILLAGE HALL/ CARETAKERS FLAT TO THREE DWELLINGS INCLUDING CREATION OF PARKING SPACES, ERECTION OF FENCING AND OTHER EXTERNAL WORKS

Documents

Agent Email 3 12 24
Supporting Documents
Not archived · Council Link
APPLICATION FORM
Forms
Not archived · Council Link
ARBORICULTURAL IMPLICATIONS PLAN
Supporting Documents
Not archived · Council Link
Bat Survey
Supporting Documents
Not archived · Council Link
Biodiversity Information Report
Supporting Documents
Not archived · Council Link
BNG Calculation tool
Supporting Documents
Not archived · Council Link
BNG Report
Supporting Documents
Not archived · Council Link
Car Parking Layout Unit 1 & 2
Plans
Not archived · Council Link
Car Parking Layout Unit 3
Plans
Not archived · Council Link
Car Parking Plans
Plans
Not archived · Council Link
Ecology Survey
Supporting Documents
Not archived · Council Link
Existing Plans and front and south east elevations
Plans
Not archived · Council Link
Heritage Statement
Supporting Documents
Not archived · Council Link
Heritage Statement - Updated
Supporting Documents
Not archived · Council Link
Historic Environment Record Information Report
Supporting Documents
Not archived · Council Link
Historic Environment Record Map
Supporting Documents
Not archived · Council Link
LOCATION PLAN
Location Plan
Not archived · Council Link
North West & Rear Elevation
Plans
Not archived · Council Link
Proposed Bin Store
Plans
Not archived · Council Link
Proposed South East and front elevations and floor plans
Plans
Not archived · Council Link
TREE CONSTRAINTS PLAN
Supporting Documents
Not archived · Council Link
Tree Map
Plans
Not archived · Council Link
TREE PROTECTION PLAN
Supporting Documents
Not archived · Council Link
TREE REMOVAL PLAN
Supporting Documents
Not archived · Council Link
Tree Survey, Arboricultural Impact Assessment, and Arboricultural Method Statement
Supporting Documents
Not archived · Council Link

Take Action

Make your voice heard. Authorities need to hear from people who support new homes.

✉️ Write Email in Support View on Council Portal