← Back to Knowsley Council

Status

Awaiting decision New housing
Received
n/a
New dwellings
35

Summary

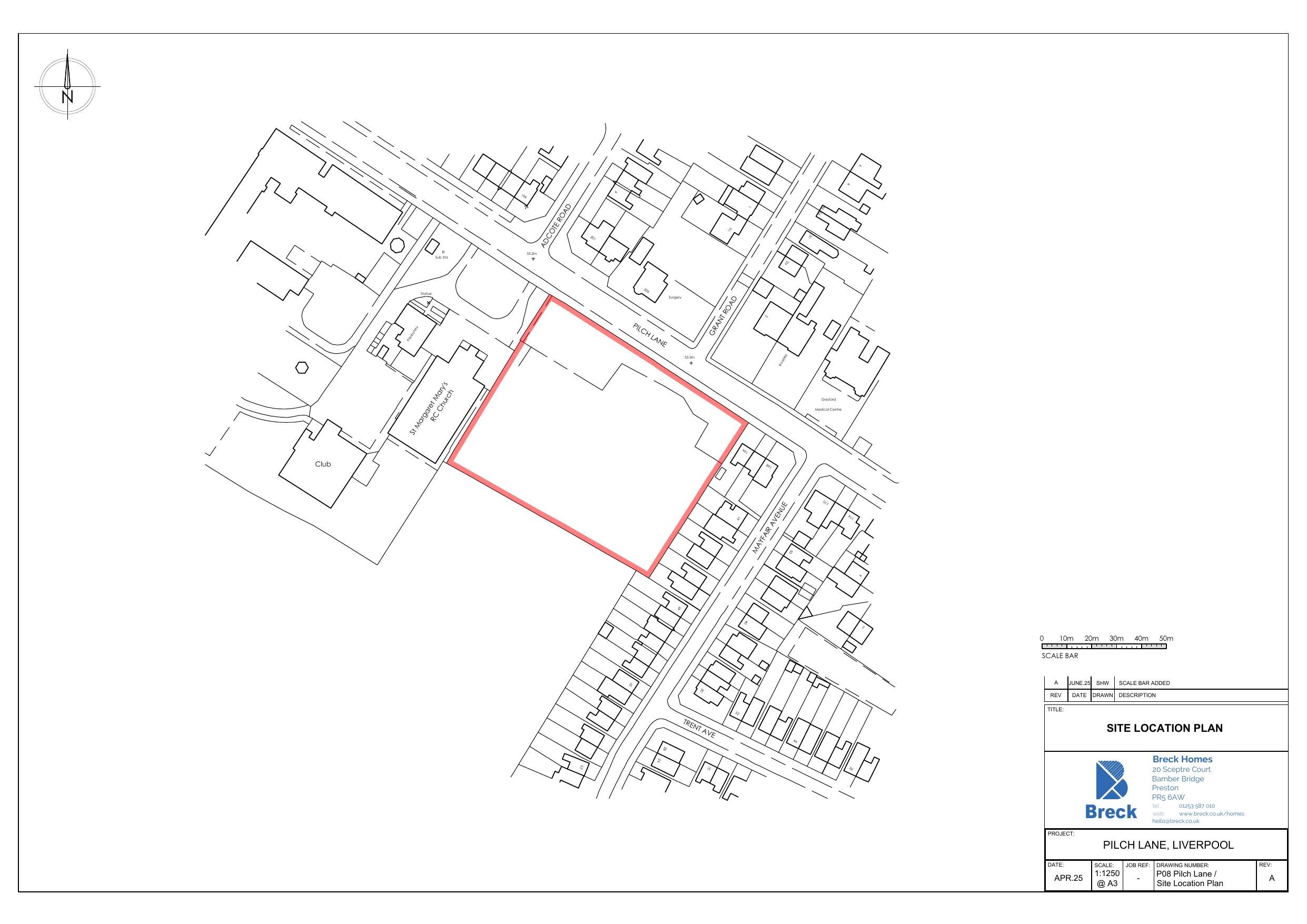
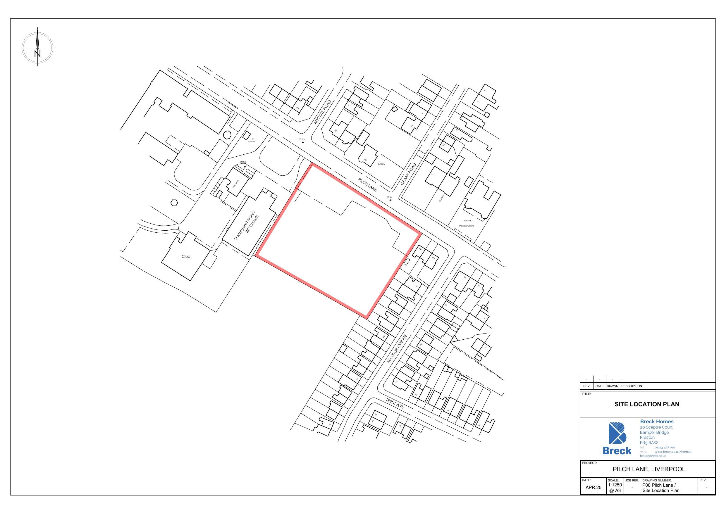
Erection of 35 affordable residential dwellings with associated infrastructure.

Full Proposal

ERECTION OF 35 NO. AFFORDABLE RESIDENTIAL DWELLINGS AND ASSOCIATED INFRASTRUCTURE

Documents

AMENDED BAT AND BIRD BOX PLAN
Plans
Not archived · Council Link
AMENDED BOUNDARY DETAILS
Plans
Not archived · Council Link
AMENDED CAR CHARGING PLAN
Plans
Not archived · Council Link
AMENDED CONSTRUCTION METHOD STATEMENT
Supporting Documents
Not archived · Council Link
AMENDED Construction Method Statement
Supporting Documents
Not archived · Council Link
AMENDED Environmental, Dust & Surface Water Management Plan
Supporting Documents
Not archived · Council Link
AMENDED MATERIALS PLAN
Plans
Not archived · Council Link
AMENDED Pilch Lane - Site Welfare Plan
Supporting Documents
Not archived · Council Link
AMENDED PROPOSED SITE LAYOUT PLAN
Superseded
Not archived · Council Link
AMENDED SLAB LEVEL PLAN
Plans
Not archived · Council Link
AMENDED STREET SCENE ELEVATIONS
Plans
Not archived · Council Link
BIODIVERSITY STATEMENT UPDATED
Supporting Documents
Not archived · Council Link
BIRD & BAT BOX PLAN
Plans
Not archived · Council Link
BIRD & BAT BOX PLAN
Superseded
Not archived · Council Link
BIRD & BAT BOX PLAN
Superseded
Not archived · Council Link
BIRD & BAT BOX PLAN
Superseded
Not archived · Council Link
BIRD & BAT BOX PLAN
Superseded
Not archived · Council Link
BNG BIOVERSITY STATEMENT
Supporting Documents
Not archived · Council Link
BNG CALCULATIONS
Supporting Documents
Not archived · Council Link
BNG METRIC UPDATED
Supporting Documents
Not archived · Council Link
BNG STATEMENT
Supporting Documents
Not archived · Council Link
BNG STATUTORY METRIC
Supporting Documents
Not archived · Council Link
BOUNDARY DETAILS
Superseded
Not archived · Council Link
BOUNDARY DETAILS
Plans
Not archived · Council Link
BOUNDARY DETAILS
Superseded
Not archived · Council Link
BOUNDARY DETAILS
Superseded
Not archived · Council Link
BOUNDARY TREATMENTS PLAN
Superseded
Not archived · Council Link
BOUNDARY TREATMENTS PLAN
Plans
Not archived · Council Link
BOUNDARY TREATMENTS PLAN
Superseded
Not archived · Council Link
BOUNDARY TREATMENTS PLAN
Superseded
Not archived · Council Link
CAR CHARGING PLAN
Plans
Not archived · Council Link
CAR CHARGING PLAN
Superseded
Not archived · Council Link
CAR CHARGING PLAN
Superseded
Not archived · Council Link
CAR CHARGING PLAN
Superseded
Not archived · Council Link
CONSTRUCTION METHOD STATEMENT
Supporting Documents
Not archived · Council Link
CONSTRUCTION METHOD STATEMENT - JAUNARY 2026
Supporting Documents
Not archived · Council Link
CYCLE & BIN STORES
Superseded
Not archived · Council Link
DESIGN AND ACCESS STATEMENT
Supporting Documents
Not archived · Council Link
DRAFT S106 AGREEMENT
Supporting Documents
Not archived · Council Link
DRAFT S106 AGREEMENT
Supporting Documents
Not archived · Council Link
DRAFT S106 AGREEMENT
Supporting Documents
Not archived · Council Link
DRAFT S106 LEGAL AGREEMENT
Supporting Documents
Not archived · Council Link
Drawing Register
Supporting Documents
Not archived · Council Link
Emergency Overland Flood Routing Plan.
Supporting Documents
Not archived · Council Link
ENERGY & SUSTAINABILITY STATEMENT
Supporting Documents
Not archived · Council Link
ENVIRONMENTAL, DUST & SURFACE WATER MANAGEMENT PLAN
Supporting Documents
Not archived · Council Link
Superseded
Archived · Council Link
Plans
Archived · Council Link
Superseded
Archived · Council Link
GARDEN AREA PLAN
Plans
Not archived · Council Link
GARDEN AREA PLAN
Plans
Not archived · Council Link
GARDEN AREA PLAN
Superseded
Not archived · Council Link
GARDEN AREA PLAN
Superseded
Not archived · Council Link
GARDEN AREA PLAN
Superseded
Not archived · Council Link
HIGHWAYS TECHNICAL NOTE SEPT 2025
Supporting Documents
Not archived · Council Link
HOUSE TYPE D - PLOTS 14 & 15
Plans
Not archived · Council Link
HOUSE TYPE F TERRACE OF 3
Plans
Not archived · Council Link
LANDSCAPE PROPOSALS
Plans
Not archived · Council Link
LANDSCAPING PLAN ANNOTATION UPDATED
Plans
Not archived · Council Link
MAISONETTE CYCLE & BIN STORES
Plans
Not archived · Council Link
MAISONETTE CYCLE & BIN STORES
Superseded
Not archived · Council Link
MASIONETTE CYCLE & BIN STORES
Superseded
Not archived · Council Link
MATERIALS DISTRIBUTION PLAN
Superseded
Not archived · Council Link
MATERIALS DISTRIBUTION PLAN
Plans
Not archived · Council Link
MATERIALS DISTRIBUTION PLAN
Superseded
Not archived · Council Link
MATERIALS DISTRIBUTION PLAN
Superseded
Not archived · Council Link
PHASE 1 GEO-ENVIRONMENTAL INVESTIGATION REPORT
Supporting Documents
Not archived · Council Link
PILCH LANE PROPOSED 100YR CALCS
Supporting Documents
Not archived · Council Link
PILCH LANE PROPOSED CALCS 100YR +CC
Supporting Documents
Not archived · Council Link
PILCH LANE PROPOSED CALCS 1YR 2YR & 30YR +CC REVC
Supporting Documents
Not archived · Council Link
PILCH LANE PROPOSED CALCS 1YR, 2YR AND 30 YR
Supporting Documents
Not archived · Council Link
PLANNING AND AFFORDABLE HOUSING STATEMENT
Supporting Documents
Not archived · Council Link
Preliminary Drainage Layout
Plans
Not archived · Council Link
PRELIMINARY DRAINAGE LAYOUT
Supporting Documents
Not archived · Council Link
PRELIMINARY DRAINAGE LAYOUT
Supporting Documents
Not archived · Council Link
PRELIMINARY ECOLOGICAL APPRAISAL
Supporting Documents
Not archived · Council Link
PRELIMINARY IMPERMEABLE AREAS LAYOUT
Supporting Documents
Not archived · Council Link
Preliminary Impermeable Areas Layout.
Supporting Documents
Not archived · Council Link
PROPOSED CALCS 2YR & 30 YR WITH SURCHARGED OUTFALL
Supporting Documents
Not archived · Council Link
PROPOSED HYDRAULIC CALCS 100YR + CC
Supporting Documents
Not archived · Council Link
PROPOSED HYDRAULIC CALCS 1YR, 2YR AND 30YR + CC
Supporting Documents
Not archived · Council Link
PROPOSED SITE LAYOUT
Superseded
Not archived · Council Link
PROPOSED SITE LAYOUT
Superseded
Not archived · Council Link
PROPOSED SITE LAYOUT
Plans
Not archived · Council Link
PROPOSED SITE LAYOUT
Superseded
Not archived · Council Link
REVISED BOUNDARY TREATMENTS PLAN
Plans
Not archived · Council Link
REVISED CMP ( NOV 2025)
Supporting Documents
Not archived · Council Link
REVISED CONSTRUCTION METHOD STATEMENT MAY 2025
Supporting Documents
Not archived · Council Link
REVISED LANDSCAPING SCHEME
Plans
Not archived · Council Link
REVISED SITE LAYOUT
Plans
Not archived · Council Link
REVISED SITE LAYOUT AMENDING NOTATION
Plans
Not archived · Council Link
REVISED SITE WELFARE PLAN ( NOV 2025)
Supporting Documents
Not archived · Council Link
REVISED SOCIAL VALUE STRATEGY 01.09.25
Supporting Documents
Not archived · Council Link
Location Plan
Archived · Council Link
Superseded
Archived · Council Link
Superseded
Archived · Council Link
SITE WELFARE PLAN
Supporting Documents
Not archived · Council Link
SLAB LEVEL PLAN
Plans
Not archived · Council Link
SOCIAL VALUE PLAN AND STRATEGY
Supporting Documents
Not archived · Council Link
STREET SCENE ELEVATIONS
Plans
Not archived · Council Link
STREET SCENE ELEVATIONS
Superseded
Not archived · Council Link
STREET SCENE ELEVATIONS
Superseded
Not archived · Council Link
STREET SCENE ELEVATIONS
Superseded
Not archived · Council Link
SUDS PROFORMA
Supporting Documents
Not archived · Council Link
SUSTAINABLE DRAINAGE STATEMENT
Supporting Documents
Not archived · Council Link
SWEPT PATH ANALYSIS OF FIRE TENDER
Superseded
Not archived · Council Link
SWEPT PATH ANALYSIS OF LARGE CAR
Superseded
Not archived · Council Link
SWEPT PATH ANALYSIS OF REFUSE VEHICLE
Superseded
Not archived · Council Link
TECHNICAL MEMORANDUM - NOISE
Supporting Documents
Not archived · Council Link
TECHNICAL MEMORANDUM - NOISE
Supporting Documents
Not archived · Council Link
TOPOGRAPHICAL LAND SURVEY
Plans
Not archived · Council Link
TOPOGRAPHICAL LAND SURVEY
Plans
Not archived · Council Link
TRANSPORT STATEMENT
Supporting Documents
Not archived · Council Link
TYPE C 2B3P 74 SEMI-DETACHED
Superseded
Not archived · Council Link
TYPE C 2B3P 74 SEMI-DETACHED
Superseded
Not archived · Council Link
TYPE C 2B3P 74 SEMI-DETACHED
Superseded
Not archived · Council Link
TYPE C/CC 2B3P 74 SEMI-DETACHED
Superseded
Not archived · Council Link
TYPE C/CC 2B3P 74 SEMI-DETACHED
Superseded
Not archived · Council Link
TYPE C/CC 2B3P 74 SEMI-DETACHED
Superseded
Not archived · Council Link
TYPE F 3B4P 86 SEMI-DETACHED
Superseded
Not archived · Council Link
TYPE F 3B4P 86 SEMI-DETACHED
Superseded
Not archived · Council Link
TYPE F 3B4P 86 SEMI-DETACHED
Superseded
Not archived · Council Link
TYPE I 3B6P 106 DETACHED
Superseded
Not archived · Council Link
TYPE I 3B6P 106 SEMI-DETACHED
Superseded
Not archived · Council Link
TYPE I 3B6P 106 SEMI-DETACHED
Superseded
Not archived · Council Link
TYPE K 4B6P 114 SEMI-DETACHED
Superseded
Not archived · Council Link
TYPE K 4B6P 114 SEMI-DETACHED
Superseded
Not archived · Council Link
TYPE K 4B6P 114 SEMI-DETACHED
Superseded
Not archived · Council Link
TYPE P1 & P2 1B2P 50 & 1B2P 57 MAISONETTES TERRACE OF 03 (6 BLOCK)
Superseded
Not archived · Council Link
TYPE P1 & P2 1B2P 50 & 1B2P 57 MAISONETTES TERRACE OF 04 (08 BLOCK)
Superseded
Not archived · Council Link
TYPE P1 & P2 1B2P 50 & 1B2P 57 MASIONETTES TERRACE OF 03 (6 BLOCK)
Superseded
Not archived · Council Link
TYPE P1 & P2 1B2P 50 & 1B2P 57 MASIONETTES TERRACE OF 03 (6 BLOCK)
Superseded
Not archived · Council Link
TYPE P1 & P2 1B2P 50 & 1B2P 57 MASIONETTES TERRACE OF 04 (08 BLOCK)
Superseded
Not archived · Council Link
TYPE P1 & P2 1B2P 50 & 1B2P 57 MASIONETTES TERRACE OF 04 (08 BLOCK)
Superseded
Not archived · Council Link
UPDATED Slab Level Plan
Plans
Not archived · Council Link
UPDATED - Garden Area Plan
Plans
Not archived · Council Link
UPDATED - Materials Distribution Plan
Plans
Not archived · Council Link
UPDATED -DETATCHED HOUSE TYPE I
Plans
Not archived · Council Link
UPDATED BIRD AND BAT BOX PLAN
Plans
Not archived · Council Link
UPDATED Boundary Treatments Plan
Plans
Not archived · Council Link
UPDATED Car Charging Plan
Plans
Not archived · Council Link
UPDATED ELEVATIONS Type P1 & P2 - 1b2p 50-57 Maisonettes Terrace of 04
Plans
Not archived · Council Link
UPDATED Maisonette Bin & Cycle Stores
Plans
Not archived · Council Link
UPDATED Maisonettes Terrace of 03 -
Plans
Not archived · Council Link
UPDATED Maisonettes Terrace of 04 -
Plans
Not archived · Council Link
UPDATED Materials Distribution Plan
Plans
Not archived · Council Link
UPDATED SEMI DETACHED HOUSE TYPE F
Plans
Not archived · Council Link
UPDATED Slab Level Plan
Plans
Not archived · Council Link
UPDATED STREET SCENE ELEVATIONS
Plans
Not archived · Council Link
UPDATED STREET SCENE ELEVATIONS
Plans
Not archived · Council Link
UU CONSULTEE COMMENTS DESIGNERS RESPONSE
Supporting Documents
Not archived · Council Link
UU RESPONSE TO APPLICANT 13.06.25
Supporting Documents
Not archived · Council Link
WASTE MANAGEMENT STRATEGY
Supporting Documents
Not archived · Council Link

Take Action

Make your voice heard. Authorities need to hear from people who support new homes.

✉️ Write Email in Support View on Council Portal