← Back to Knowsley Council

Status

Awaiting decision New housing
Received
n/a
New dwellings
7

Full Proposal

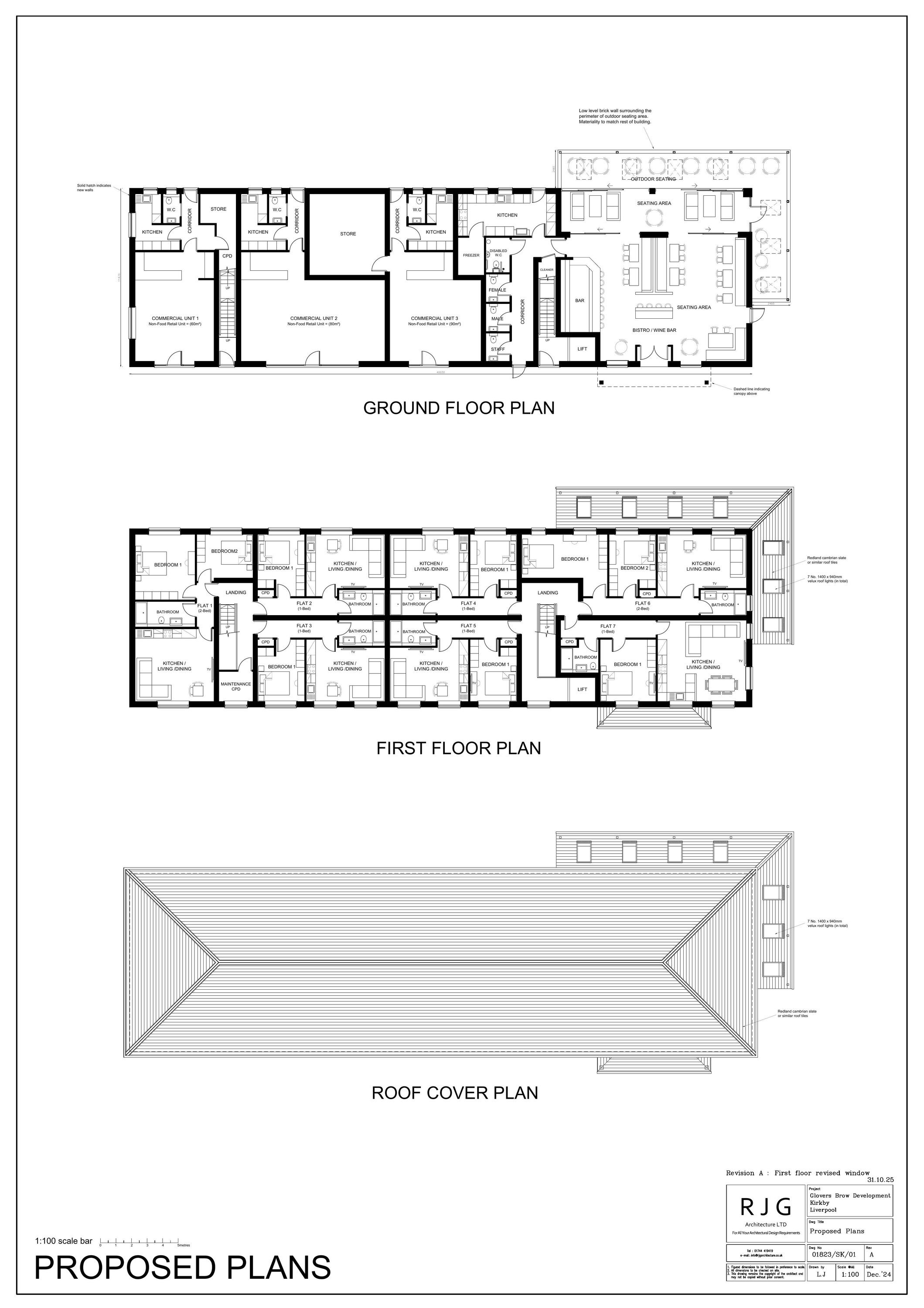
ERECTION TWO STOREY MIXED USE DEVELOPMENT COMPRISING OF 7NO. FIRST FLOOR FLATS (5NO ONE BED FLATS AND 2NO TWO BED FLATS) , 3NO. COMMERCIAL UNITS (USE CLASS Ea) AT GROUND FLOOR AND 1NO BISTRO/BAR (USE CLASS Eb) AT GROUND FLOOR WITH ASSOCIATED CAR PARKING, CYCLE STORAGE, BIN STORAGE AND LANDSCAPING (DEMOLITION OF TELECOMMUNICATIONS EQUIPMENT)

Documents

APPLICATION FORM
Forms
Not archived · Council Link
Arboriculture Impact Assessment And Method Statement
Supporting Documents
Not archived · Council Link
BNG - STATUTORY BIODIVERSITY METRIC CALCULATION
Supporting Documents
Not archived · Council Link
BNG - STATUTORY BIODIVERSITY METRIC CONDITION ASSESSMENT
Supporting Documents
Not archived · Council Link
BNG BASELINE HABITATE PLAN
Supporting Documents
Not archived · Council Link
CYCLE AND BIN STORE PLANS AND ELEVATIONS
Plans
Not archived · Council Link
DESIGN AND ACCESS STATEMENT
Superseded
Not archived · Council Link
DESIGN AND ACCESS STATEMENT
Supporting Documents
Not archived · Council Link
EXISTING AND PROPOSED SITE SECTIONS (NORTH AND SOUTH)
Plans
Not archived · Council Link
EXISTING BLOCK PLAN
Supporting Documents
Not archived · Council Link
GROUND INVESTIGATION REPORT
Supporting Documents
Not archived · Council Link
HERITAGE STATEMENT
Supporting Documents
Not archived · Council Link
KEG STORE - PLANS AND ELEVATIONS
Plans
Not archived · Council Link
LIGHTING DESIGN REPORT
Superseded
Not archived · Council Link
LIGHTING DESIGN REPORT
Supporting Documents
Not archived · Council Link
LOCATION PLAN
Superseded
Not archived · Council Link
LOCATION PLAN
Superseded
Not archived · Council Link
LOCATION PLAN
Location Plan
Not archived · Council Link
NEW LIGHTING PLAN
Supporting Documents
Not archived · Council Link
NOISE ASSESSMENT
Supporting Documents
Not archived · Council Link
NOISE CONTROL ASSESSMENT
Superseded
Not archived · Council Link
Preliminary Ecological Appraisal
Supporting Documents
Not archived · Council Link
PROPOSED BLOCK PLAN
Superseded
Not archived · Council Link
PROPOSED ELEVATIONS
Superseded
Not archived · Council Link
PROPOSED ELEVATIONS
Plans
Not archived · Council Link
PROPOSED ELEVATIONS
Superseded
Not archived · Council Link
Superseded
Archived · Council Link
PROPOSED SITE / BLOCK PLAN
Plans
Not archived · Council Link
SEQUENTIAL ASSESSMENT
Supporting Documents
Not archived · Council Link
SEQUENTIAL ASSESSMENT
Superseded
Not archived · Council Link
SITE SECTIONS - Sheet 1 OF 1
Plans
Not archived · Council Link
TOPOGRAPHICAL SURVEY - Sheet 1 of 1
Plans
Not archived · Council Link
TRANSPORT STATEMENT WITH SWEPT PATHWAY ANALYSIS
Supporting Documents
Not archived · Council Link
View associated documents
External Link
Not archived · Council Link

Take Action

Make your voice heard. Authorities need to hear from people who support new homes.

✉️ Write Email in Support View on Council Portal