← Back to Knowsley Council

Status

Awaiting decision Change of use
Received
n/a
New dwellings
0

Full Proposal

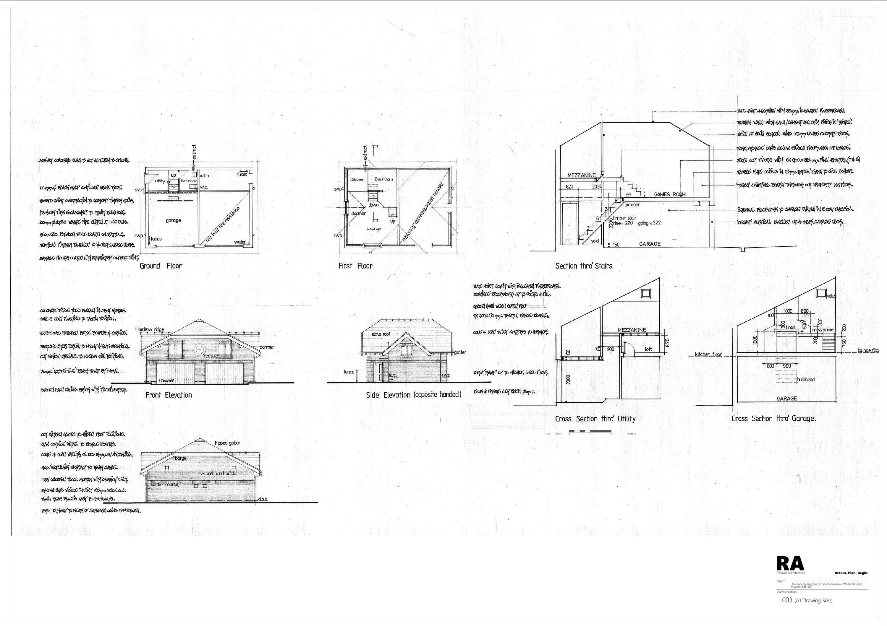
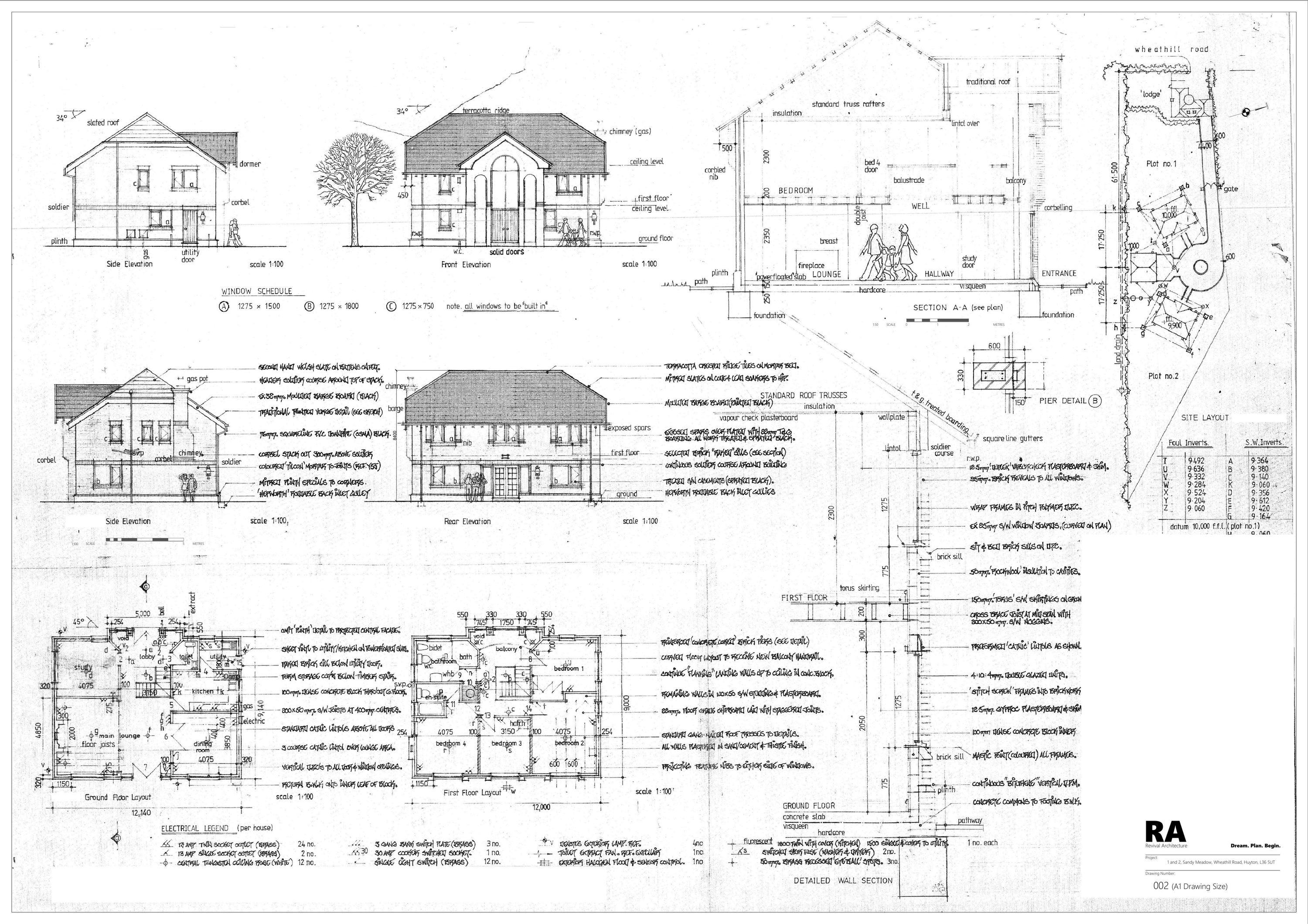
CHANGE OF USE FROM 3NO. DWELLINGS & 2 SELF CONTAINED APARTMENTS (USE CLASS C3) TO AN ADULT CARE FACILITY FOR A MAXIMUM OF 12NO. PERSONS (USE CLASS C2)

Documents

APPLICATION FORM
Forms
Not archived · Council Link
EMAIL FROM AGENT PROVIDING ADDITIONAL INFORMATION TO THE SUMITTED PLANNING STATEMENT
Supporting Documents
Not archived · Council Link
LOCATION PLAN
Location Plan
Not archived · Council Link
LOCATION PLAN
Superseded
Not archived · Council Link
View associated documents
External Link
Not archived · Council Link

Take Action

Make your voice heard. Authorities need to hear from people who support new homes.

✉️ Write Email in Support View on Council Portal