← Back to Lake District National Park Authority

Status

Application Withdrawn New housing
Received
22 Jan 2025
New dwellings
2

Summary

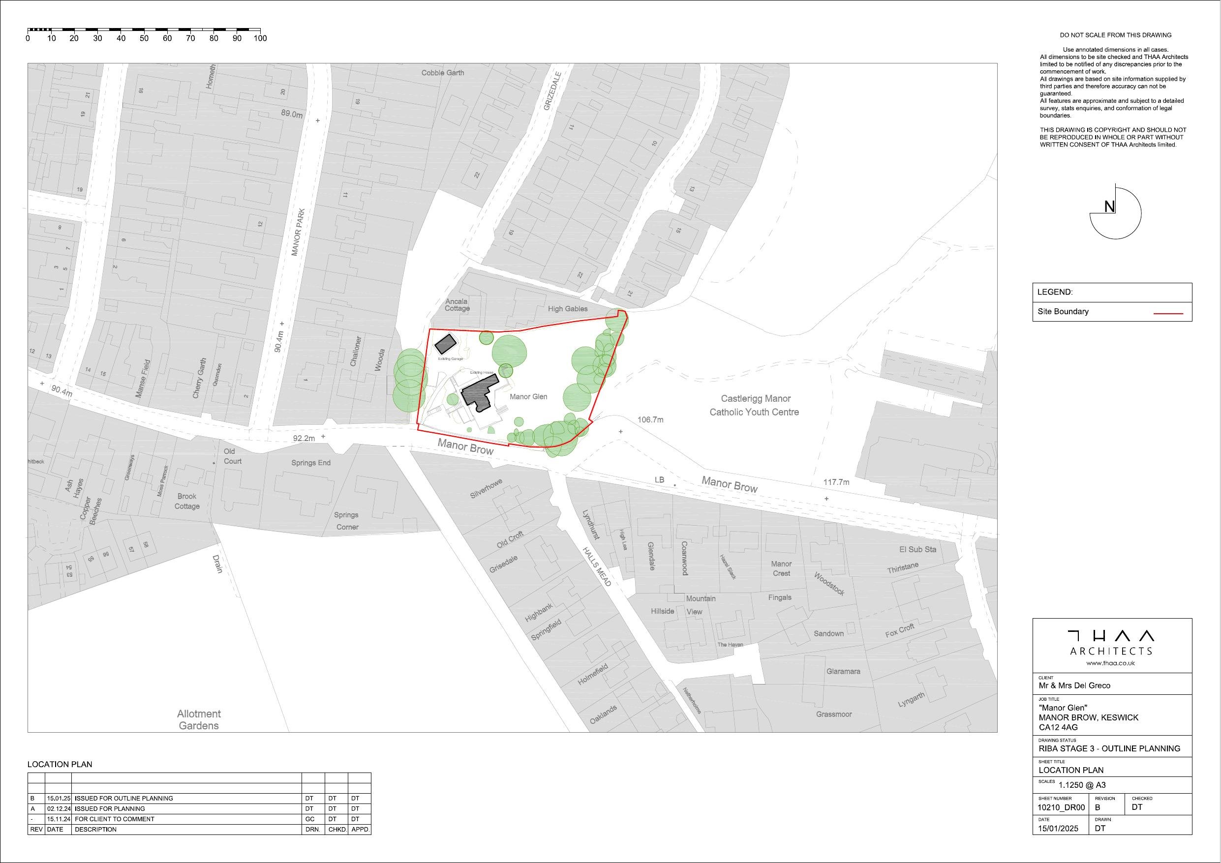
Outline for two new self-build 3-bed dwellings, retention of existing house, new access and garages.

Full Proposal

Outline application for a residential development comprising of the retention of an existing 3-bedroom 2 storey dwelling and the removal of the ground floor northeast utility room and carport to improve vehicular access and the erection of a new detached garage. The construction of two self-build/custom-build 3-bedroom 2 storey dwellings with integral garages. Construction of a new site access off Manor Brow and associated vision splays. Construction of a new access road and turning head serving Manor Glen (existing dwelling) and self-build/custom-build Plots 1 & 2. Formation of parking areas for each plot. Associated external works, construction of bin holding areas and limited tree removal with some matters reserved.

Documents

3D Visual
Other supporting information
Not archived · Council Link
Application form - redacted
Application form
Not archived · Council Link
Arboricultural Report - redacted
Other supporting information
Not archived · Council Link
Cellweb Technical Support Information
Other supporting information
Not archived · Council Link
Comments by Keswick Town Council
Consultee response
Not archived · Council Link
Construction method statement
Other supporting information
Not archived · Council Link
Design Access and Heritage Statement - Part 1
Design & access statement
Not archived · Council Link
Design Access and Heritage Statement - Part 2
Design & access statement
Not archived · Council Link
Draft Section 106 Agreement
Other supporting information
Not archived · Council Link
Drainage Strategy Report
Other supporting information
Not archived · Council Link
Existing house demolition ground floor plan
Plan
Not archived · Council Link
Existing house elevations
Plan
Not archived · Council Link
Existing house first floor plan
Plan
Not archived · Council Link
Existing house ground floor plan
Plan
Not archived · Council Link
Existing house roof plan
Plan
Not archived · Council Link
Plan
Archived · Council Link
Existing site section
Plan
Not archived · Council Link
Letter of representation
Comment
Not archived · Council Link
Letter of representation
Comment
Not archived · Council Link
Letter of representation
Comment
Not archived · Council Link
Letter of representation
Comment
Not archived · Council Link
Letter of representation
Comment
Not archived · Council Link
Letter of representation
Comment
Not archived · Council Link
Letter of representation
Comment
Not archived · Council Link
Letter of representation
Comment
Not archived · Council Link
Letter of representation
Comment
Not archived · Council Link
Natural England's comments - Revised
Consultee response
Not archived · Council Link
Natural England's comments - Superseded
Consultee response
Not archived · Council Link
Nutrient Neutrality Mitigation Strategy
Other supporting information
Not archived · Council Link
Plot 1 illustrative proposed elevations - North and East
Plan
Not archived · Council Link
Plot 1 illustrative proposed elevations - South and West
Plan
Not archived · Council Link
Plot 1 illustrative proposed sections
Plan
Not archived · Council Link
Plot 2 illustrative proposed elevations - North and East
Plan
Not archived · Council Link
Plot 2 illustrative proposed elevations - South and West
Plan
Not archived · Council Link
Plot 2 illustrative proposed sections
Plan
Not archived · Council Link
Proposed first floor plan - Existing house
Plan
Not archived · Council Link
Proposed ground floor plan - Existing house
Plan
Not archived · Council Link
Proposed house elevations - Existing house
Plan
Not archived · Council Link
Proposed roof plan - Existing house
Plan
Not archived · Council Link
Plan
Archived · Council Link
Superseded
Archived · Council Link
Reply by Environmental Health
Consultee response
Not archived · Council Link
Reply by Highways & LLFA 10.2.2025
Consultee response
Not archived · Council Link
Reply by Highways & LLFA 24.2.2025
Consultee response
Not archived · Council Link
Reply by Planning, Cumberland Council
Consultee response
Not archived · Council Link
Reply by United Utilities
Consultee response
Not archived · Council Link
Shadow habitat regulations assessment
Other supporting information
Not archived · Council Link
Site location plan
Archived · Council Link
Technical Information
Other supporting information
Not archived · Council Link
Topographic Survey
Plan
Not archived · Council Link
Tree Constraints Plan
Plan
Not archived · Council Link
Tree Protection Plan
Plan
Not archived · Council Link

Take Action

Make your voice heard. Authorities need to hear from people who support new homes.

✉️ Write Email in Support View on Council Portal