← Back to Lake District National Park Authority

Status

Valid Change of use
Received
24 Mar 2025
New dwellings
3

Summary

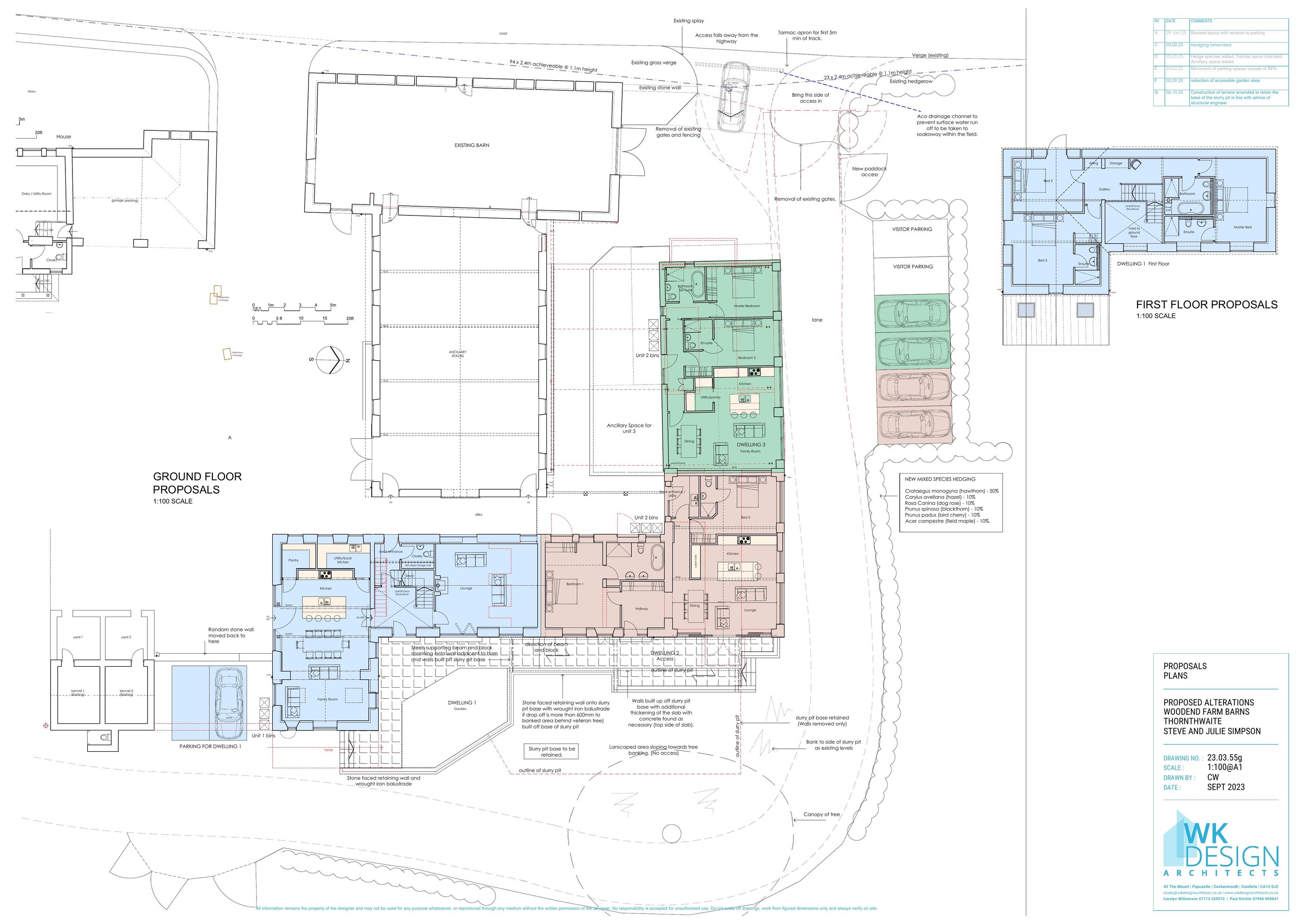
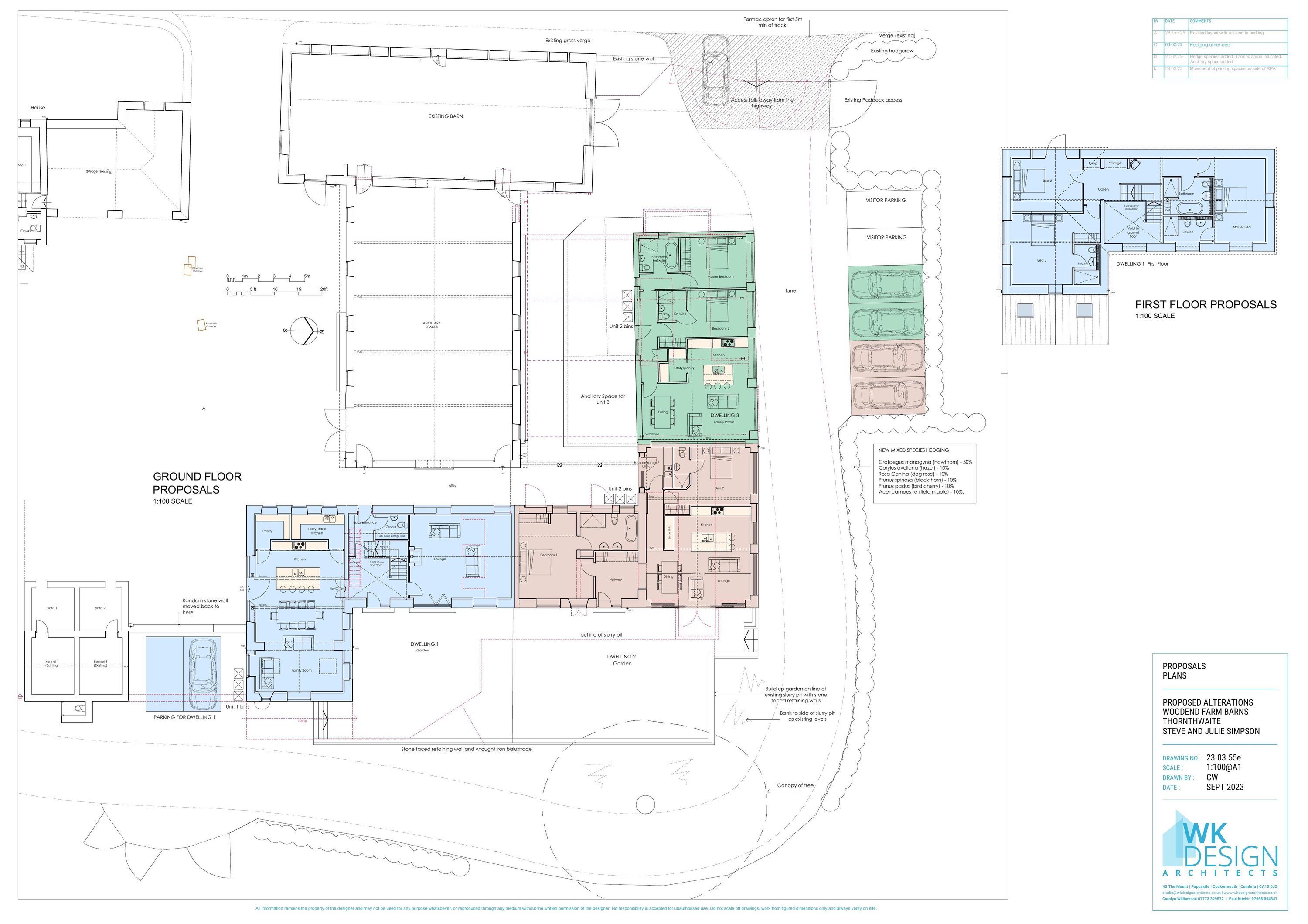
Conversion of redundant barns into three local-occupancy dwellings with solar array and pond.

Full Proposal

Conversion of redundant barns into 3 dwellings (Local occupancy), solar array and pond

Documents

Application form
Application form
Not archived · Council Link
Biodiversity gain plan
Biodiversity Net Gain
Not archived · Council Link
Biodiversity metric calculation tool
Biodiversity Net Gain
Not archived · Council Link
Brochure
Other supporting information
Not archived · Council Link
Construction Environmental Management Plan
Other supporting information
Not archived · Council Link
Drainage documentation
Other supporting information
Not archived · Council Link
existing elevations
Plan
Not archived · Council Link
existing plans
Plan
Not archived · Council Link
Heritage, design & access statement
Design & access statement
Not archived · Council Link
Non-mains drainage questionnaire
Other supporting information
Not archived · Council Link
Nutrient calculator
Superseded
Not archived · Council Link
Nutrient Calculator
Other supporting information
Not archived · Council Link
Nutrient Neutrality Strategy
Superseded
Not archived · Council Link
Nutrient Neutrality Strategy
Other supporting information
Not archived · Council Link
Proposed elevations
Plan
Not archived · Council Link
Plan
Archived · Council Link
Superseded
Archived · Council Link
protected species survey
Bat survey
Not archived · Council Link
PTP brochure
Other supporting information
Not archived · Council Link
PTP PIA certificate
Other supporting information
Not archived · Council Link
Reply by Environmental Health
Consultee response
Not archived · Council Link
Reply by Highways & LLFA
Consultee response
Not archived · Council Link
Reply by Highways & LLFA (24.10.2025)
Consultee response
Not archived · Council Link
Reply by Housing Team, Cumberland Council
Consultee response
Not archived · Council Link
Reply by Natural England
Consultee response
Not archived · Council Link
Reply by Parish Council
Consultee response
Not archived · Council Link
Site location and block plan
Site location plan
Not archived · Council Link
solar report
Other supporting information
Not archived · Council Link
speed survey
Other supporting information
Not archived · Council Link
Tree survey
Other supporting information
Not archived · Council Link

Take Action

Make your voice heard. Authorities need to hear from people who support new homes.

✉️ Write Email in Support View on Council Portal