← Back to Lake District National Park Authority

Status

Decided New housing
Received
14 Oct 2025
New dwellings
2

Summary

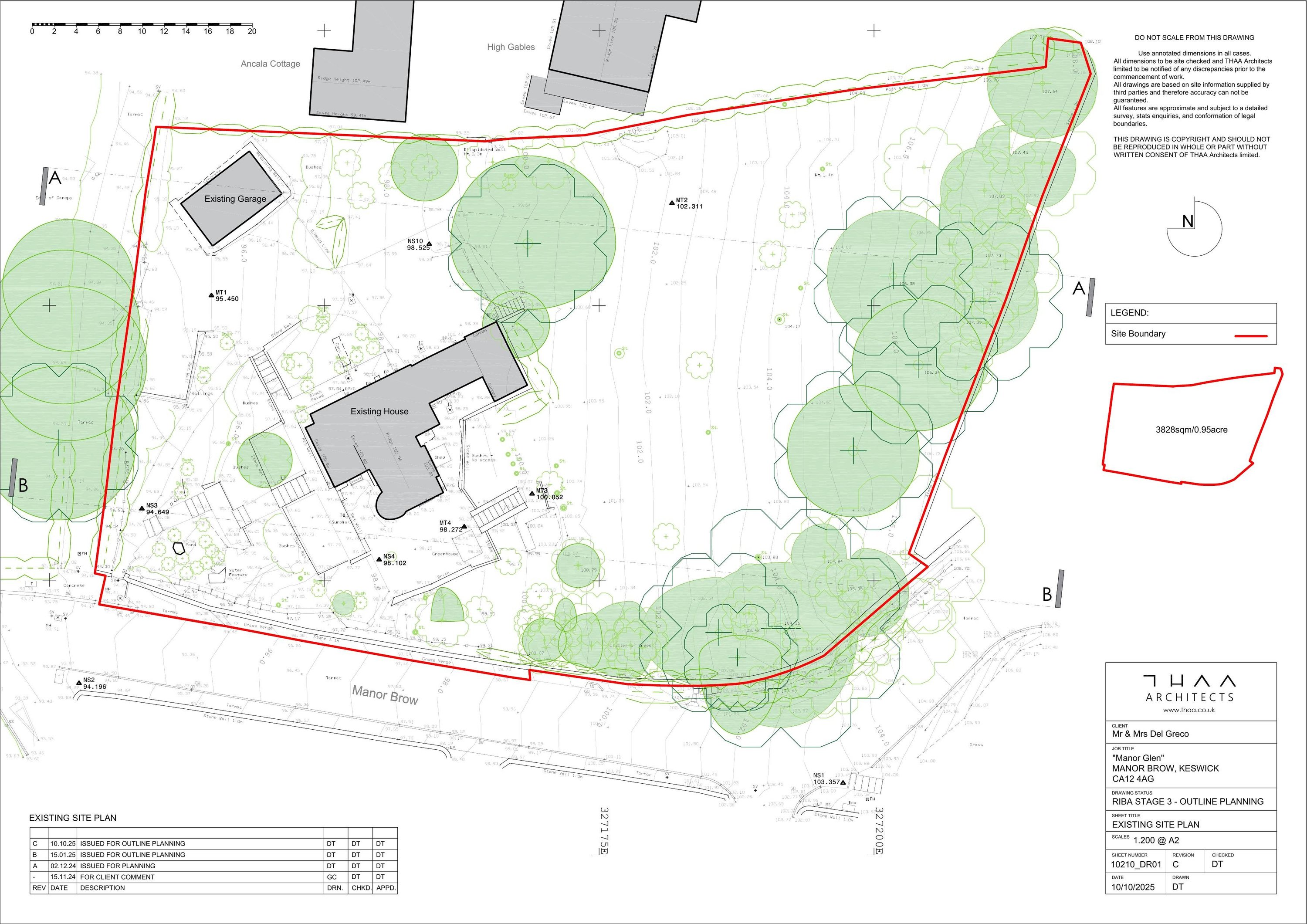
Outline for two new self-build 3-bed houses, retained existing dwelling and access works.

Full Proposal

Outline application for a residential development comprising of the retention of an existing 3-bedroom 2 storey dwelling and the removal of the ground floor northeast utility room and carport to improve vehicular access and the erection of a new detached double garage. The construction of two self-build/custom-build 3-bedroom 2 storey dwellings with garages. Construction of a new site access off Manor Brow and associated vision splays. Construction of a new access road and turning head serving Manor Glen (existing dwelling) and self-build/custom-build Plots 1 & 2. Formation of parking areas for each plot. Associated external works, construction of bin holding areas and limited tree removal with some matters reserved.

Documents

Application Form
Application form
Not archived · Council Link
Building Control Completion Certificate - redacted
Other supporting information
Not archived · Council Link
Construction method statement
Other supporting information
Not archived · Council Link
Decision Notice
Decision notice
Not archived · Council Link
draft Section 106 agreement
Other supporting information
Not archived · Council Link
Drainage strategy report
Other supporting information
Not archived · Council Link
Existing house demo ground roof plan
Plan
Not archived · Council Link
Existing house elevations
Plan
Not archived · Council Link
Existing house first floor plan
Plan
Not archived · Council Link
Existing house grounf floor plan
Plan
Not archived · Council Link
Existing house proposed elevations
Plan
Not archived · Council Link
Existing house proposed first floor plan
Plan
Not archived · Council Link
Existing house proposed ground floor plan
Plan
Not archived · Council Link
Existing house proposed roof plan
Plan
Not archived · Council Link
Existing house roof plan
Plan
Not archived · Council Link
Plan
Archived · Council Link
Existing site sections
Plan
Not archived · Council Link
Flood & Development Management comments
Consultee response
Not archived · Council Link
Heritage, design and access statement
Design & access statement
Not archived · Council Link
Letter of representation
Comment
Not archived · Council Link
Letter of representation
Comment
Not archived · Council Link
Letter of representation
Comment
Not archived · Council Link
Letter of representation
Comment
Not archived · Council Link
Letter of representation
Comment
Not archived · Council Link
Nutrient Neutrality mitigation strategy
Other supporting information
Not archived · Council Link
Nutrient Neutrality Shadow habitat regulations assessment
Other supporting information
Not archived · Council Link
Officer's report
Delegated report
Not archived · Council Link
Proposed plot 1 elevations - sheet 1 of 2
Plan
Not archived · Council Link
Proposed plot 1 elevations - sheet 2 of 2
Plan
Not archived · Council Link
Proposed plot 2 elevations - sheet 1 of 2
Plan
Not archived · Council Link
Proposed plot 2 elevations - sheet 2 of 2
Plan
Not archived · Council Link
Plan
Archived · Council Link
Proposed site sections
Plan
Not archived · Council Link
Reply by Environmental Health
Consultee response
Not archived · Council Link
Reply by Highways & LLFA
Consultee response
Not archived · Council Link
Reply by Highways & LLFA (21.11.2025)
Consultee response
Not archived · Council Link
Reply by Natural England
Consultee response
Not archived · Council Link
Reply by Natural England 10.12.2025
Consultee response
Not archived · Council Link
Reply by Town Council
Consultee response
Not archived · Council Link
Reply by United Utilities
Consultee response
Not archived · Council Link
Sewage Treatment Plant Completion Certificate - redacted
Other supporting information
Not archived · Council Link
Sewage Treatment Plant Service Agreement - redacted
Other supporting information
Not archived · Council Link
Site location plan
Archived · Council Link
Topographic survey
Plan
Not archived · Council Link
Transport assessment
Other supporting information
Not archived · Council Link
Tree constraints plan
Ecological survey (other)
Not archived · Council Link
Tree protection plan
Ecological survey (other)
Not archived · Council Link
Tree survey
Ecological survey (other)
Not archived · Council Link

Take Action

Make your voice heard. Authorities need to hear from people who support new homes.

✉️ Write Email in Support View on Council Portal