← Back to Lake District National Park Authority

Status

Valid New housing
Received
07 Aug 2025
New dwellings
10

Summary

Residential development of 10 dwellings including five local occupancy units.

Full Proposal

Residential development of 10 dwellings, including 5 local occupancy units, and associated infrastructure

Documents

Application Form
Application form
Not archived · Council Link
Archaeological assessment
Other supporting information
Not archived · Council Link
BNG metric calculator 16.9.2025
Biodiversity Net Gain
Not archived · Council Link
BNG report 16.9.2025
Biodiversity Net Gain
Not archived · Council Link
Cumbria Police comments
Consultee response
Not archived · Council Link
Drainage details
Plan
Not archived · Council Link
Drainage details
Plan
Not archived · Council Link
Drainage documentation
Other supporting information
Not archived · Council Link
Drainage information
Other supporting information
Not archived · Council Link
drainage plan
Plan
Not archived · Council Link
Drainage plan
Plan
Not archived · Council Link
Drainage report
Other supporting information
Not archived · Council Link
energy statement 16.9.2025
Other supporting information
Not archived · Council Link
heritage, design & access statement 16.9.2025
Design & access statement
Not archived · Council Link
highways details
Plan
Not archived · Council Link
Historic England's comments
Consultee response
Not archived · Council Link
Letter of representation
Comment
Not archived · Council Link
Letter of representation
Comment
Not archived · Council Link
Letter of representation
Comment
Not archived · Council Link
location plan
Site location plan
Not archived · Council Link
location plan
Site location plan
Not archived · Council Link
No 1 barn conversion proposed plan 16.9.2025
Plan
Not archived · Council Link
Nutrient Neutrality Assessment 16.9.2025
Other supporting information
Not archived · Council Link
Nutrient Neutrality Assessment 16.9.2025
Other supporting information
Not archived · Council Link
Nutrient Neutrality Assessment 16.9.2025
Other supporting information
Not archived · Council Link
nutrient neutrality calculator 16.9.2025
Other supporting information
Not archived · Council Link
Nutrient statement
Other supporting information
Not archived · Council Link
Nutrient statement
Other supporting information
Not archived · Council Link
Nutrient statement
Other supporting information
Not archived · Council Link
Nutrient statement
Other supporting information
Not archived · Council Link
Nutrient statement
Other supporting information
Not archived · Council Link
Proposed elevations - social housing
Plan
Not archived · Council Link
Proposed elevations & floor plan - no. 4
Plan
Not archived · Council Link
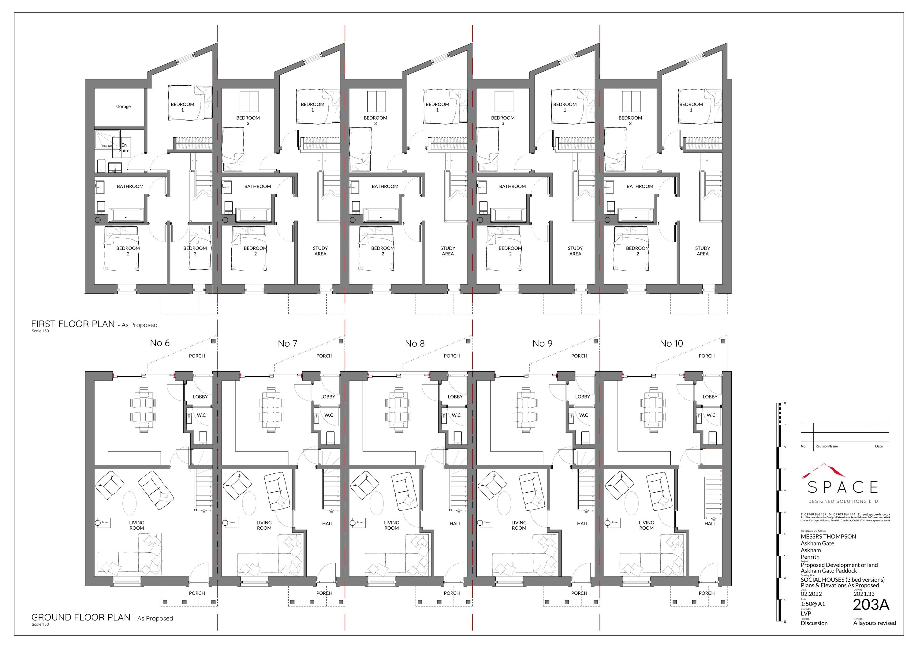
proposed floor plan - social housing
Plan
Not archived · Council Link
Plan
Archived · Council Link
Reply by Cumbria Fire & Rescue Service
Consultee response
Not archived · Council Link
Reply by Environmental Health
Consultee response
Not archived · Council Link
Reply by Highways & LLFA
Consultee response
Not archived · Council Link
Reply by Natural England
Consultee response
Not archived · Council Link
Reply by Parish Council
Consultee response
Not archived · Council Link
Reply by United Utilities
Consultee response
Not archived · Council Link
reply from Westmorland & Furness Council 13.10.2025
Comment
Not archived · Council Link
Shadow HRA 16.9.2025
Other supporting information
Not archived · Council Link
Tree survey
Other supporting information
Not archived · Council Link

Take Action

Make your voice heard. Authorities need to hear from people who support new homes.

✉️ Write Email in Support View on Council Portal