← Back to Lambeth

Status

Awaiting decision Change of use
Received
20 Aug 2024
New dwellings
2

Full Proposal

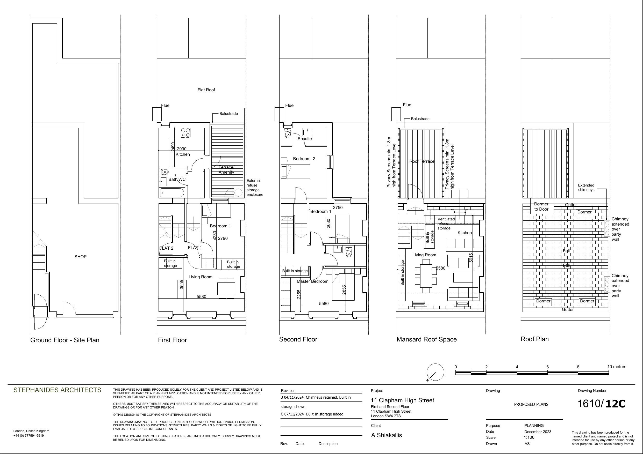
Reconfiguration and conversion of the upper floors into 2 residential units, together with the erection of a mansard roof extension including a roof terrace to the rear outrigger, the replacement of the side window with a door to access a roof terrace to the first floor, plus the replacement timber windows at the first and second floor levels.

Documents

+ SITE PHOTOS
Plans - Superseded
Not archived · Council Link
COMMUNITY INFRASTRUCTURE LEVY - COMPLETED FORM
Supporting Docs
Not archived · Council Link
DESIGN AND ACCESS STATEMENT
Design & Access Statement
Not archived · Council Link
EXISTING ELEVATIONS + SECTION
Plans
Not archived · Council Link
EXISTING FLOORPLANS
Plans
Not archived · Council Link
LOCATION PLAN
Plans - Superseded
Not archived · Council Link
LOCATION PLAN AND SITE PHOTOS
Plans - Revised
Not archived · Council Link
MANSARD ROOF PROPOSAL
Planning Statement
Not archived · Council Link
PROPOSED ELEVATION AND SECTION PLANS
Plans - Revised
Not archived · Council Link
PROPOSED ELEVATION PLANS
Plans - Superseded
Not archived · Council Link
PROPOSED ELEVATIONS + SECTION
Plans - Superseded
Not archived · Council Link
PROPOSED FLOOR AND ROOF PLANS
Plans - Revised
Not archived · Council Link
Plans - Superseded
Archived · Council Link
Plans - Superseded
Archived · Council Link
PROPOSED FLOORPLANS
Plans - Superseded
Not archived · Council Link
PROPOSED MANSARD ROOF PLANS
Plans - Revised
Not archived · Council Link
PROPOSED MANSARD ROOF PLANS
Plans - Superseded
Not archived · Council Link
PROPOSED MANSARD ROOF PLANS
Plans - Superseded
Not archived · Council Link
PROPOSED SASH WINDOW DETAILS
Plans
Not archived · Council Link
REDACTED
Application Form
Not archived · Council Link
THE LOCATION PLAN
Plans - Superseded
Not archived · Council Link

Take Action

Make your voice heard. Authorities need to hear from people who support new homes.

✉️ Write Email in Support View on Council Portal