← Back to Lambeth

Status

Awaiting decision New housing
Received
15 Sep 2024
New dwellings
1

Full Proposal

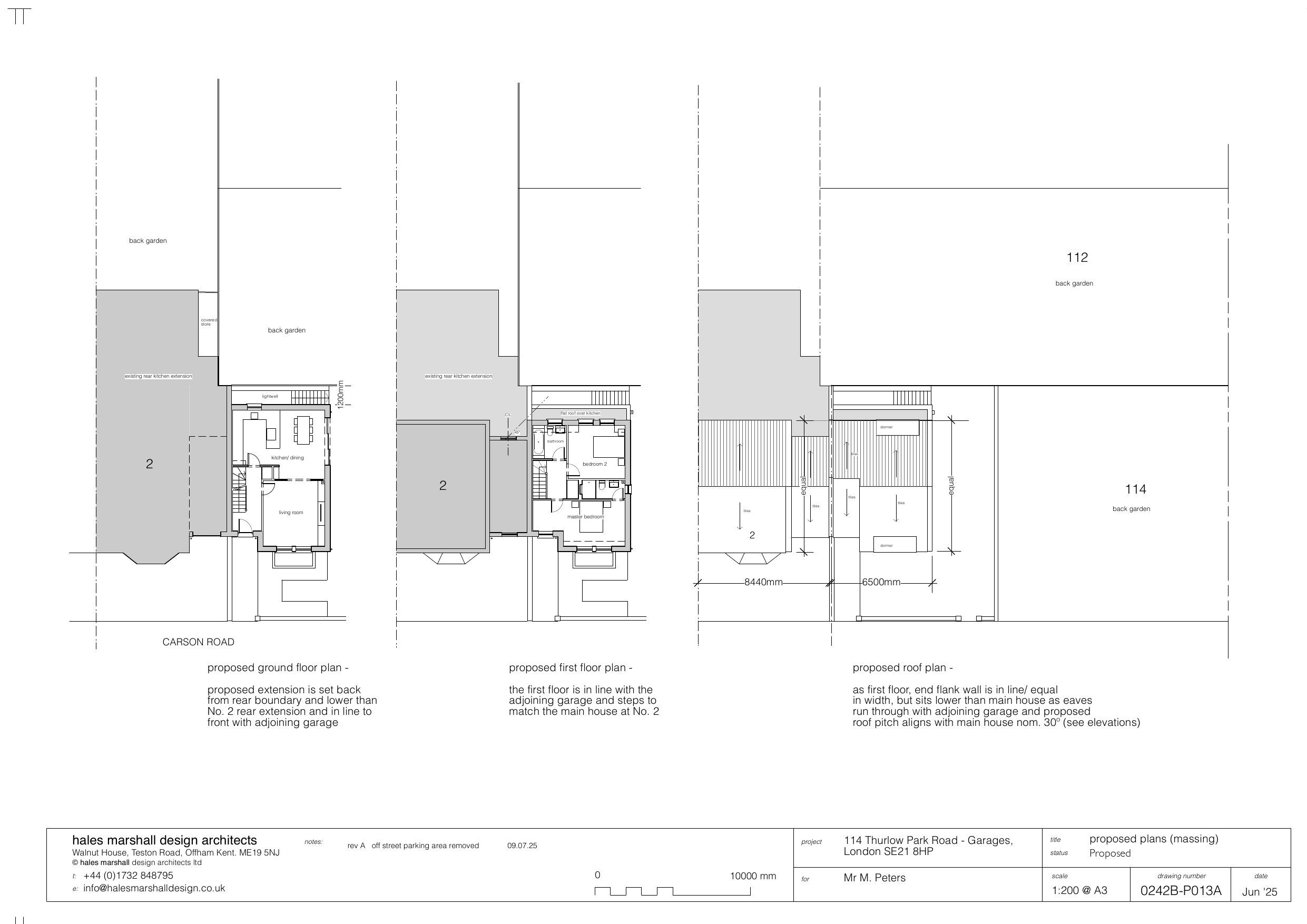
Demolition of existing rear double garage and replacement with a 2 storey plus basement dwelling house

Documents

0242B-P013
Plans
Not archived · Council Link
APPLICATION FORM - WITHOUT PERSONAL DATA
Application Form
Not archived · Council Link
BASEMENT IMPACT ASSESSMENT REV 2
Supporting Docs
Not archived · Council Link
BASEMENT IMPACT ASSESSMENT REV 2
Supporting Docs
Not archived · Council Link
D AND A STATEMENT REV A
Documents - Revised
Not archived · Council Link
DAYLIGHT/SUNLIGHT STUDY
Plans
Not archived · Council Link
EXISTING PLANS
Plans
Not archived · Council Link
FIRE SAFETY NOTES
Supporting Docs
Not archived · Council Link
HERITAGE STATEMENT
Supporting Docs
Not archived · Council Link
Plans - Revised
Plans - Revised
Not archived · Council Link
Plans - Revised
Plans - Revised
Not archived · Council Link
Plans - Revised
Plans - Revised
Not archived · Council Link
Plans - Superseded
Archived · Council Link
Plans - Superseded
Archived · Council Link
Plans - Revised
Archived · Council Link
Plans - Superseded
Archived · Council Link
SUNLIGHT PLANNING ADVICE NOTE
Supporting Docs
Not archived · Council Link
THE LOCATION PLAN
OS Map
Not archived · Council Link

Take Action

Make your voice heard. Authorities need to hear from people who support new homes.

✉️ Write Email in Support View on Council Portal