← Back to Lambeth

Status

Awaiting decision Change of use
Received
18 Jan 2025
New dwellings
1

Summary

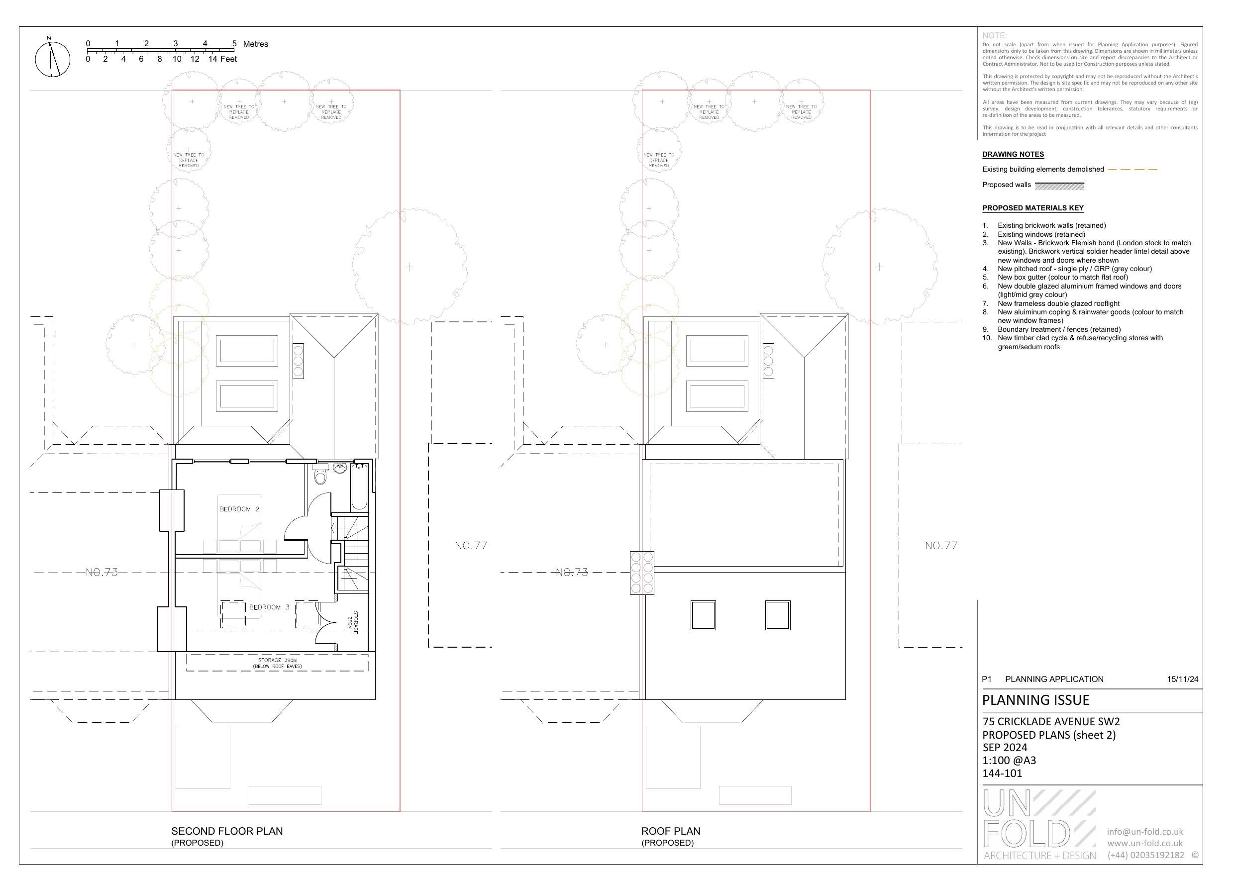
Convert single dwelling into two self-contained flats with rear extension, bin and bicycle stores.

Full Proposal

Conversion of the existing single dwellinghouse into two self-contained flats (Use Class C3), together with the erection of a single storey ground floor rear extension, alterations to the existing ground floor rear elevation, and provision of bin and bicycle stores in the front garden.

Documents

APPLICATION FORM - WITHOUT PERSONAL DATA
Application Form
Not archived · Council Link
COMMUNITY INFRASTRUCTURE LEVY - COMPLETED FORM
Application Form
Not archived · Council Link
DESIGN AND ACCESS STATEMENT
Design & Access Statement
Not archived · Council Link
EXISTING ELEVATIONS (SHEET 1)
Plans
Not archived · Council Link
EXISTING PLANS (SHEET 1)
Plans
Not archived · Council Link
EXISTING PLANS (SHEET 2
Plans
Not archived · Council Link
FIRE STATEMENT
Supporting Docs
Not archived · Council Link
PROPOSED ELEVATIONS (SHEET 1
Plans
Not archived · Council Link
SITE & LOCATION PLANS
OS Map
Not archived · Council Link
THE LOCATION PLAN
OS Map
Not archived · Council Link

Take Action

Make your voice heard. Authorities need to hear from people who support new homes.

✉️ Write Email in Support View on Council Portal