← Back to Lambeth

Status

Decided House extension
Received
14 Feb 2025
New dwellings
0

Planning Inspectorate

Appeal: Decided Dismissed
Ref3368672
TypePlanning Appeal
Decision22 Oct 2025

Summary

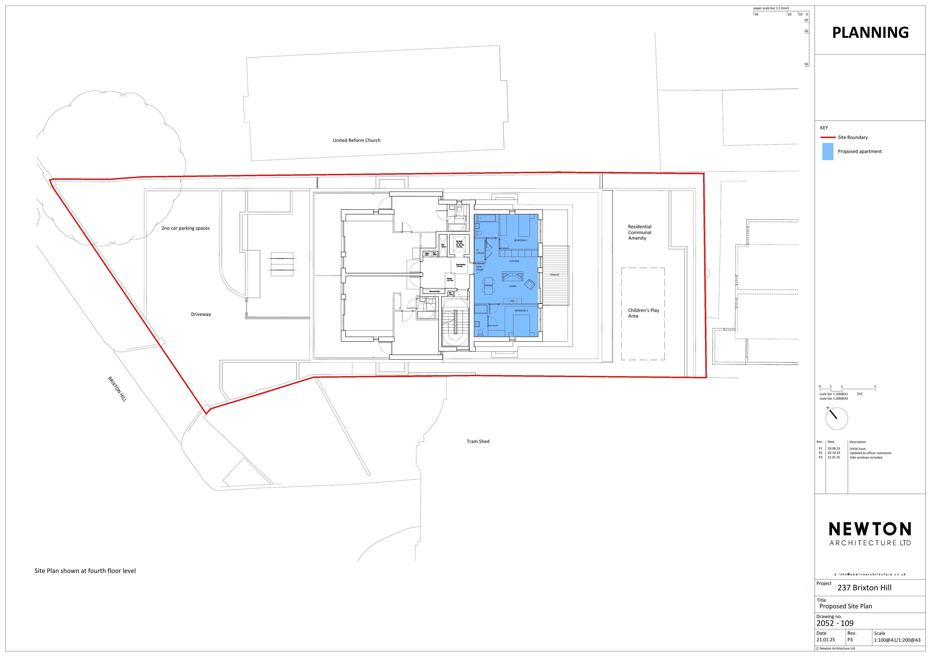
Fourth-floor single-storey extension to provide a two-bedroom residential unit with obscured privacy screen.

Full Proposal

Erection of a single storey extension to the fourth floor to provide a two-bed residential unit, with an obscured glazed privacy screen.

Documents

+ HERITAGE STATEMENT
Planning Statement
Not archived · Council Link
01 APPEAL FORM - 1177415 REDACTED
Appeal documents - redacted
Not archived · Council Link
Appeal Decision - redacted
Appeal Decision - redacted
Not archived · Council Link
APPELLANT'S FINAL COMMENTS
Appeal documents - redacted
Not archived · Council Link
APPELLANTS STATEMENT OF CASE - 2-BED
Appeal documents - redacted
Not archived · Council Link
APPLICATION DOCUMENTS
Appeal documents - redacted
Not archived · Council Link
APPLICATION FORM - WITHOUT PERSONAL DATA
Application Form
Not archived · Council Link
DAYLIGHT/SUNLIGHT REPORT (NEIGHBOURING PROPERTIES)
Supporting Docs
Not archived · Council Link
Decision Notice
Decision Notice
Not archived · Council Link
DESIGN AND ACCESS STATEMENT
Design & Access Statement
Not archived · Council Link
EXISTING BLOCK PLAN
Plans
Not archived · Council Link
EXISTING FOURTH FLOOR PLAN
Plans
Not archived · Council Link
EXISTING GROUND FLOOR PLAN
Plans
Not archived · Council Link
EXISTING NE AND SE ELEVATIONS
Plans
Not archived · Council Link
EXISTING NW AND SW ELEVATIONS
Plans
Not archived · Council Link
EXISTING ROOF PLAN
Plans
Not archived · Council Link
EXISTING SECTIONS AA AND BB
Plans
Not archived · Council Link
Plans
Archived · Council Link
EXISTING TYPICAL FLOOR PLAN (1ST, 2ND & 3RD FLOORS)
Plans
Not archived · Council Link
LPA - STATEMENT OF CASE
Appeal documents - redacted
Not archived · Council Link
LPA'S STATEMENT OF CASE
Appeal documents - redacted
Not archived · Council Link
OFFICER REPORT
Delegated Register
Not archived · Council Link
PROPOSED BLOCK PLAN
Plans
Not archived · Council Link
PROPOSED FOURTH FLOORPLAN
Plans
Not archived · Council Link
PROPOSED GROUND FLOOR PLAN
Plans
Not archived · Council Link
PROPOSED NE AND SE ELEVATIONS
Plans
Not archived · Council Link
PROPOSED NW + SW ELEVATIONS
Plans
Not archived · Council Link
PROPOSED ROOF PLAN
Plans
Not archived · Council Link
PROPOSED SECTIONS AA AND BB
Plans
Not archived · Council Link
Plans
Archived · Council Link
PROPOSED TYPICAL FLOOR PLAN (1ST, 2ND AND 3RD FLOORS) PLAN
Plans
Not archived · Council Link
THE LOCATION PLAN
OS Map
Not archived · Council Link

Take Action

Make your voice heard. Authorities need to hear from people who support new homes.

✉️ Write Email in Support View on Council Portal