← Back to Lambeth

Status

Awaiting decision Change of use
Received
01 Apr 2025
New dwellings
1

Summary

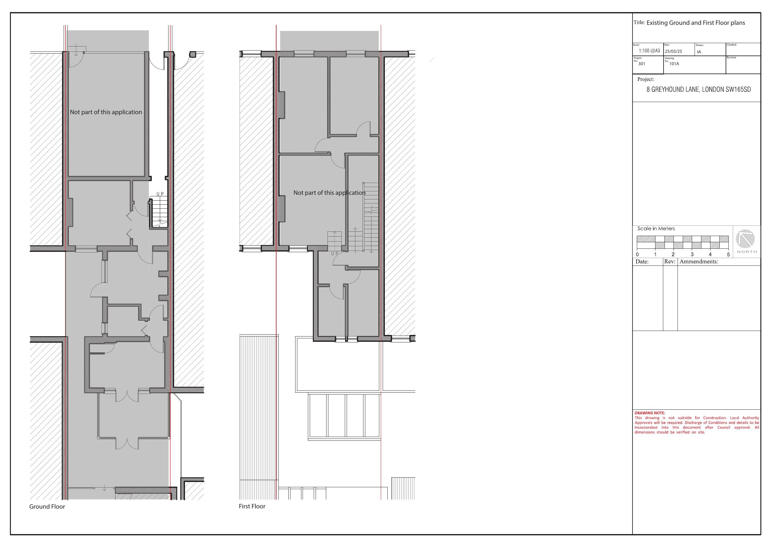
Retrospective conversion of one two-storey flat into two flats (net gain one).

Full Proposal

Retrospective permission for the conversion of a 2-storey flat to 2 flats.

Documents

COMMUNITY INFRASTRUCTURE LEVY - COMPLETED FORM
Supporting Docs
Not archived · Council Link
Plans - Revised
Archived · Council Link
EXISTING FLOOR PLANS
Plans - Superseded
Not archived · Council Link
Plans - Revised
Plans - Revised
Not archived · Council Link
Plans - Superseded
Archived · Council Link

Take Action

Make your voice heard. Authorities need to hear from people who support new homes.

✉️ Write Email in Support View on Council Portal