← Back to Lambeth

Status

Awaiting decision Change of use
Received
11 May 2025
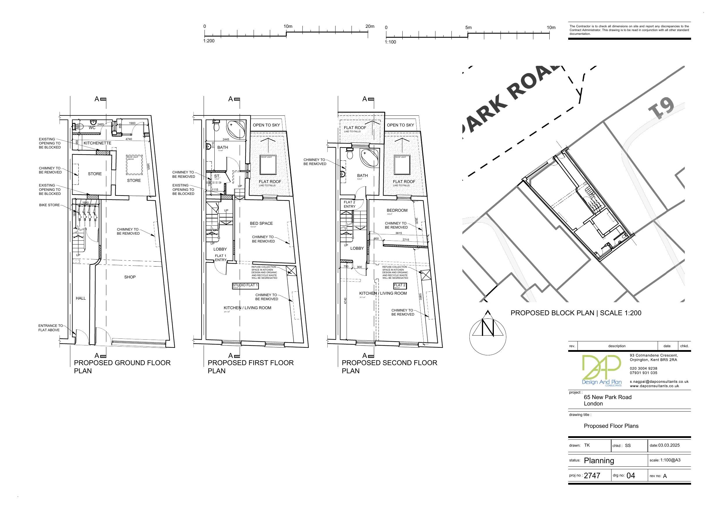
New dwellings
2

Summary

Convert upper floors into two residential units with mansard roof extension and cycle store.

Full Proposal

Conversion of the upper floors into two residential units, together with the erection of a mansard roof extension including two windows to the front and rear, a new roof and a roof light to the ground floor shop addition and the provision of cycle store.

Documents

+ EXISTING BLOCK PLAN
OS Map
Not archived · Council Link
+ HERITAGE STATEMENT
Planning Statement
Not archived · Council Link
COMMUNITY INFRASTRUCTURE LEVY - COMPLETED FORM
Supporting Docs
Not archived · Council Link
EXISTING ELEVATIONS
Plans
Not archived · Council Link
EXISTING FLOORPLANS
Plans
Not archived · Council Link
PROPOSED ELEVATIONS
Plans - Revised
Not archived · Council Link
PROPOSED ELEVATIONS
Plans
Not archived · Council Link
PROPOSED ELEVATIONS
Plans - Revised
Not archived · Council Link
Plans - Revised
Archived · Council Link
Plans - Revised
Archived · Council Link
Plans - Revised
Archived · Council Link
PROPOSED FLOORPLANS + BLOCK PLAN
Plans
Not archived · Council Link
REDACTED
Application Form
Not archived · Council Link

Take Action

Make your voice heard. Authorities need to hear from people who support new homes.

✉️ Write Email in Support View on Council Portal