← Back to Lambeth

Status

Awaiting decision Change of use
Received
09 Jul 2025
New dwellings
0

Summary

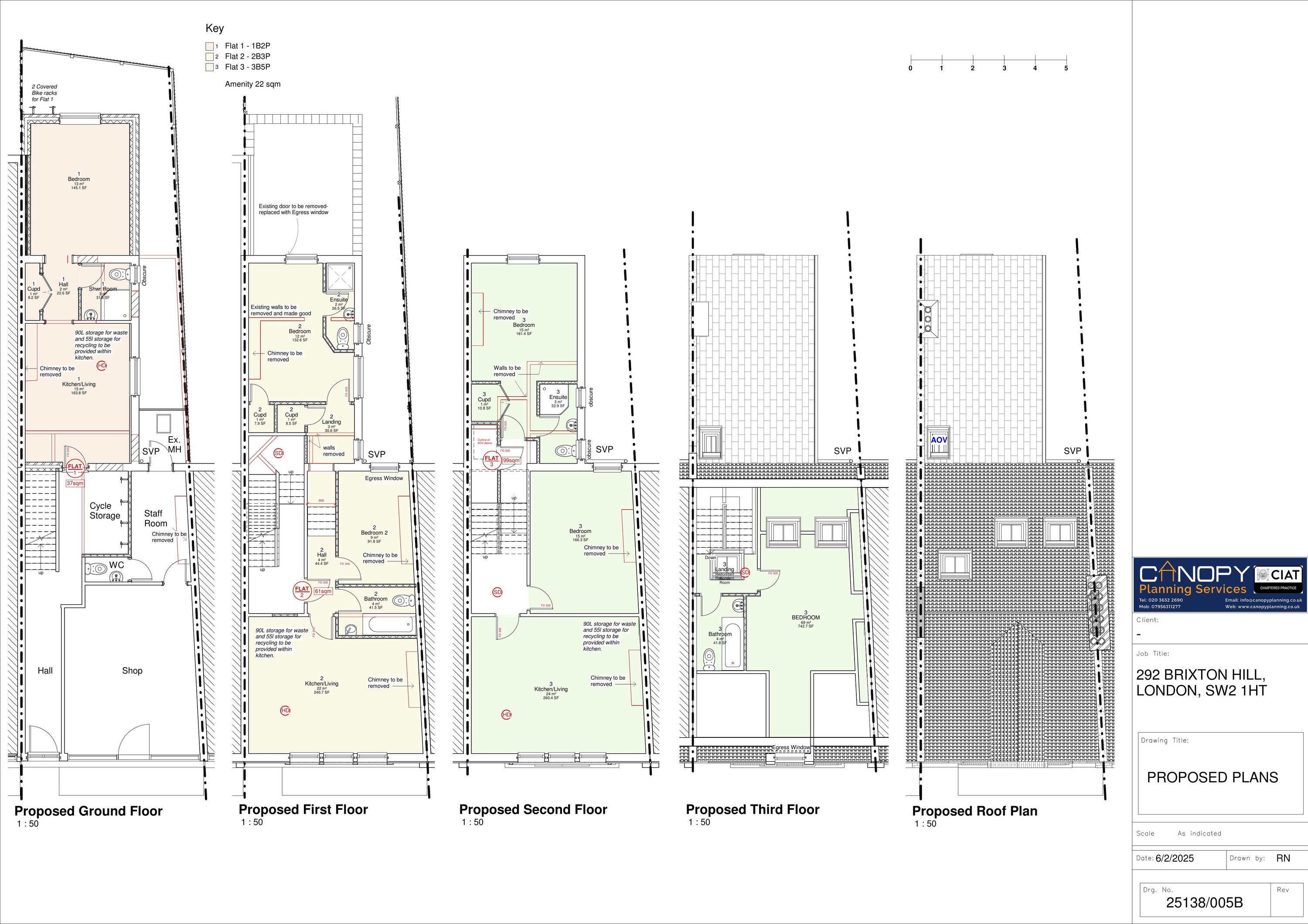
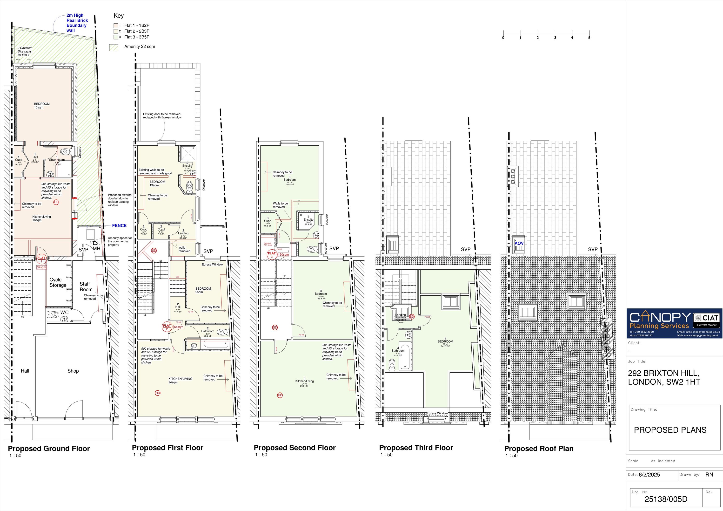
Convert rear ground-floor retail to a self-contained flat; rear extension and reconfigure upper flats into two flats.

Full Proposal

Partial change of use of the ground floor retail (Use Class E) at the rear to a self-contained flat (Use Class 3) including the erection of a single storey ground floor rear extension. Conversion of the upper flats into 2 self-contained flats involving alteration to side and rear fenestration, the installation of 2 x roof lights to the rear roof slope and the provision of cycle storage.

Documents

+ HERITAGE STATEMENT
Design & Access Statement
Not archived · Council Link
APPLICATION FORM - WITHOUT PERSONAL DATA
Application Form
Not archived · Council Link
EXISTING BLOCK PLAN
Plans
Not archived · Council Link
EXISTING PLANS AND ELEVATIONS
Plans
Not archived · Council Link
EXISTING SECTION
Plans
Not archived · Council Link
FIRE SAFETY STATEMENT
Supporting Docs
Not archived · Council Link
PHOTOGRAPHS
Photo
Not archived · Council Link
Planning Statement
Planning Statement
Not archived · Council Link
PROPOSED BLOCK PLAN
Plans
Not archived · Council Link
Plans - Revised
Archived · Council Link
Plans - Revised
Archived · Council Link
PROPOSED SECTION
Plans
Not archived · Council Link
PROPOSED SECTION
Plans - Revised
Not archived · Council Link
PROPOSED SECTION
Plans - Revised
Not archived · Council Link
THE LOCATION PLAN
OS Map
Not archived · Council Link

Take Action

Make your voice heard. Authorities need to hear from people who support new homes.

✉️ Write Email in Support View on Council Portal