← Back to Lambeth

Status

Awaiting decision Change of use
Received
06 Nov 2025
New dwellings
5

Summary

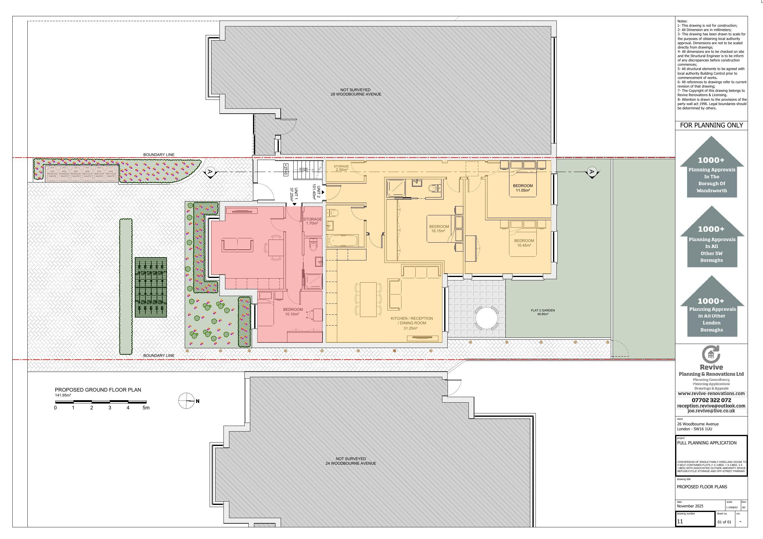
Convert single-family house into five self-contained flats with cycle and refuse storage.

Full Proposal

Conversion of a single family dwelling house to 5 self-contained flats (1x3-bed, 1x2-bed, 3x1 bed) with associated outside amenity space, refuse/cycle storage.

Documents

APPLICATION FORM - WITHOUT PERSONAL DATA
Application Form
Not archived · Council Link
COMMUNITY INFRASTRUCTURE LEVY - COMPLETED FORM
Supporting Docs
Not archived · Council Link
DAYLIGHT OR SUNLIGHT ASSESSMENT
Supporting Docs
Not archived · Council Link
DESIGN AND ACCESS STATEMENT
Design & Access Statement
Not archived · Council Link
DRAFT DECISION
Decision Notice
Not archived · Council Link
EXISTING FLOOR PLANS AND ELEVATIONS
Plans
Not archived · Council Link
FIRE STATEMENT
Supporting Docs
Not archived · Council Link
Plans - Revised
Archived · Council Link
REVISED PLANNING STATEMENT
Documents - Revised
Not archived · Council Link
THE LOCATION PLAN
OS Map
Not archived · Council Link
TITLE SHEET
Supporting Docs
Not archived · Council Link

Take Action

Make your voice heard. Authorities need to hear from people who support new homes.

✉️ Write Email in Support View on Council Portal